ChangeOfUse Rammetillatelse Enebolig

Bruksendring fra bod til soverom med fasadeendring i Åbyfaret 12B

📍 Åbyfaret 12A , 1392 VETTRE

Nøkkelinfo

Sakstype
Bruksendring
Bygningstype
Enebolig
Bruksareal
6 m²
Boenheter
1
Kommune
Asker
Fylke
Akershus
Gnr / Bnr
60 / 75
Saksnummer
26/533
Fase
Rammetillatelse

Om byggesaken

Bruksendring av et rom i en enebolig fra bod til soverom med et nytt rømningsvindu som oppfyller krav til størrelse og plassering. Det nye soverommet får et areal på 6,27 m², oppgradert fra tidligere bod på 4,34 m², inkludert noe kommunikasjonsareal. Det skal monteres et nytt vindu med karmmål ca. 70 cm bredt og 120 cm høyt, og glassareal på 50 x 100 cm, som tilfredsstiller krav til rømningsvinduer. Vindusbyttet medfører en fasadeendring, men vinduet blir plassert slik at det ikke er synlig fra adkomstveien. Det er ikke gjort andre bygningsmessige endringer i byggets struktur eller areal. Prosjektet omfatter også nødvendige tekniske tilpasninger for å oppfylle byggtekniske forskrifter.

Produkter og materialer

Tømrer Innvendig ombygging

Endring av romfunksjon fra bod til soverom, inkludert tilpasning av gulv, vegger og tak i rommet

Innvendig arbeid for å tilpasse bod til soverom

Vinduer Rømningsvindue

🧱 tre eller tilsvarende

Antall: 1

Karm ca. 70 cm bred og 120 cm høy, glass 50 cm bred og 100 cm høy, oppfyller krav til rømningsvinduer (minst 150 cm sum bredde og høyde, minst 50 cm bredt og 60 cm høyt, kan åpnes og er praktisk tilgjengelig)

Nytt rømningsvindue som skal erstatte eksisterende vindu i bod for å oppfylle rømningskrav ved bruksendring til soverom

Fasade Fasadeendring ved vindusbytte

🧱 trepanel

Antall: 1

Fasadeendring for å montere nytt vindu i samme retning som eksisterende, vinduet blir ikke synlig fra adkomstvei

Endring av fasade for å tilpasse nytt rømningsvindue

Elektro Elektrisk installasjon

Mulig tilpasning av elektrisk anlegg i rommet ved endret bruk

Elektriske arbeider for å oppfylle krav til soverom

Maling Innvendig maling

Overflatebehandling av vegger og tak etter ombygging

Maling og overflatebehandling i det nye soverommet

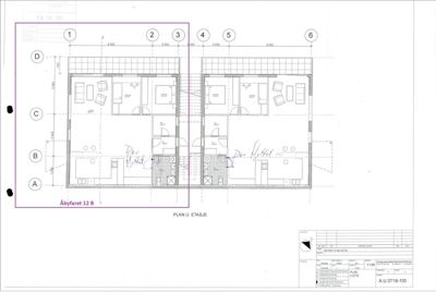
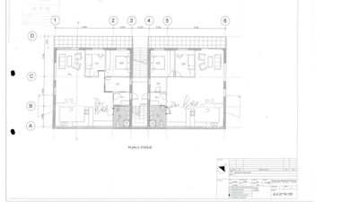
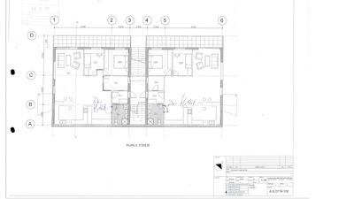
Plantegning

Enebolig 120.5 m²

Etasje 0 120.5 m²

Rom Areal Vinduer Dører
Stue U01 44.4 m² 1 1
Kjøkken U02 12.0 m² 0 1
Soverom U03 12.3 m² 1 1
Soverom U04 8.7 m² 1 1
Bad U05 4.6 m² 0 1
Gang U06 4.1 m² 0 2
Vaskerom U07 4.1 m² 0 1
Teknisk rom U08 4.1 m² 0 1
Soverom U09 12.3 m² 1 1
Soverom U10 8.7 m² 1 1
Stue U11 44.4 m² 1 1
Kjøkken U12 12.8 m² 0 1
Bad U13 4.6 m² 0 1
Vaskerom U14 4.3 m² 0 1

Åbyfaret 12 B 144.0 m²

Etasje 0 144.0 m²

Rom Areal Vinduer Dører
Stue 001 48.4 m² 1 1
Kjøkken 002 12.0 m² 0 1
Bad 003 4.1 m² 0 1
Gang 004 12.0 m² 0 2
Soverom 005 12.0 m² 1 1
Soverom 006 12.0 m² 1 1
Vaskerom 007 4.5 m² 0 1
Teknisk rom 008 3.0 m² 0 1

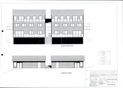
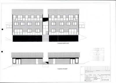
Fasader

Enebolig

Nord-Vest
Materiale
Tre
Taktype
Saltak
Takmat.
Tegl
Vinduer
12
Dører
3
Balkonger
2
Synlige etasjer
3
Syd-Vest
Materiale
Tre
Taktype
Saltak
Vinduer
3
Dører
1
Balkonger
1
Synlige etasjer
2
Nord-Øst
Materiale
Tre
Taktype
Saltak
Vinduer
3
Dører
1
Balkonger
1
Synlige etasjer
2
Syd-Øst
Materiale
Tre
Taktype
Saltak
Takmat.
Tegl
Vinduer
10
Dører
2
Synlige etasjer
1
Spalte
Materiale
Tre
Taktype
Saltak
Vinduer
1
Dører
2
Balkonger
2
Synlige etasjer
3
Ukjent
Materiale
Tre
Taktype
Saltak
Vinduer
1
Dører
2
Synlige etasjer
2

Hendelser

10.04.2026 60/75/0/2 Åbyfaret 12B - Tillatelse uten ansvarsrett - Bruksendring fra bod til soverom
23.03.2026 60/75/0/2 Åbyfaret 12B - Supplerende dokumentasjon
27.02.2026 60/75/0/2 Åbyfaret 12B - Ufullstendig søknad - Bruksendring fra bod til soverom
19.02.2026 60/75/2 Åbyfaret 12B - Søknad om tiltak uten ansvarsrett - Bruksendring fra bod til soverom