Alle byggesaker 6106 treff

Fotografi av en eksisterende hvit, tømmerhytte med tak og røykpipe.
NewConstruction Enebolig

Riving og nybygg av bryggerhus i Ombergveien 49B, Fredrikstad

Nyoppføring av bryggerhus på 115 m² fordelt på to etasjer, med samme volum, høyde og plassering som eksisterende bygg. …

πŸ“ Ombergveien 49A Fredrikstad
Et luftfoto eller satellittbilde av en bygning med adresse Bings gate 20, som er inkludert i en brannrapport.
ChangeOfUse Tomannsbolig

Sammenslåing og fasadeendring på tomannsbolig i Bings gate 20, Fredrikstad

To boenheter i andre etasje av en toetasjes murgård i funkisstil fra 1937 slås sammen til en større enhet. Loftet ombyg…

πŸ“ Bings gate 20 Fredrikstad
Etasjeplan for 1. etasje av Hus C, som viser romfordeling, dører, vinduer og innredning.
NewConstruction Leilighetsbygg

Oppføring av bolig- og næringsbygg med parkeringskjeller i Storveien 77

Prosjektet omfatter oppføring av to boligbygg og ett næringsbygg med felles parkeringskjeller på eiendommen Storveien 7…

πŸ“ Storveien 77 Fredrikstad
3D-visualisering av en hytte i et naturlig landskap (furuskog, svaberg, lyng, fjellknauser) med utsikt mot vest og morgensolen.
NewConstruction Fritidsbolig

Ny fritidsbolig med ombygging av anneks på Kaholmen 7, Fredrikstad

Ny fritidsbolig på 66,5 m² BRA oppføres på Kaholmen 7 i Fredrikstad kommune, med ombygging av eksisterende anneks på 13…

πŸ“ Kaholmen 114 Fredrikstad
Fotografi av en ferdig bygning (fugletårn) på midlertidig plassering.
NewConstruction Other

Permanent plassering av fugletårn i Havnevei 4, Fredrikstad

Ny permanent plassering av fugletårn på eiendom Borg Havnevei 4, 6, 8, 11, 14, 15, 18 i Fredrikstad kommune. Fugletårne…

πŸ“ Øraveien 27 Fredrikstad
Tegning som viser fasader (Sør og Vest) og et typisk snitt av en bolig.
NewConstruction Enebolig

Gjenoppføring av enebolig i Haugetangveien 9A, Fredrikstad

Ny enebolig på 202 m² fordelt på flere plan bygges som gjenoppføring etter brannskade. Boligen har saltak med teglstein…

πŸ“ Haugetangveien 8 Fredrikstad
Et utklipp fra et skråfoto som viser Fjeldberg rusinstitusjon og omgivelsene.
ChangeOfUse Naeringsbygg

Oppføring og bruksendring til rusinstitusjon på Fjeldberg 9A-E, Fredrikstad

Prosjektet omfatter etablering av Fjeldberg kvinnesenter, en rusinstitusjon for voldsutsatte kvinner i aktiv rusmiddelb…

πŸ“ Cicignongata 1 Fredrikstad
Fotografi av to personer som monterer en røykledning (piperehabilitering) på et tak.
Rehabilitation Other

Rehabilitering av pipe i Orions vei 12, Fredrikstad

Rehabilitering av eksisterende pipe i enebolig på Orions vei 12 med innsetting av stålrørssystem bestående av stabilrør…

πŸ“ Orions vei 12 Fredrikstad
3D-visualisering av en bygning sett fra en vinkel, som viser fasade og takkonstruksjon.
NewConstruction Garasje

Ny dobbelgarasje i Storemyrveien 3, Fredrikstad

Ny frittliggende dobbelgarasje på 67,9 m² med saltak og flatt tak på deler av bygget, oppført på eiendommen Storemyrvei…

πŸ“ Storemyrveien 3 Fredrikstad
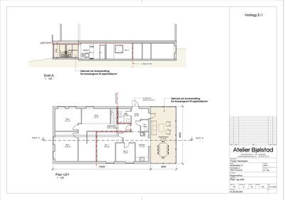
Etasjeplan (Plan U01) med romfordeling, dimensjoner og snittlinjer, samt en tilhørende snittegning (Snitt A).
ChangeOfUse Enebolig

Bruksendring og brannskilleendring i enebolig, Anisveien 3

Bruksendring av bassengrom til oppholdsrom i underetasjen i en enebolig på 120,5 m² i Anisveien 3. Prosjektet inkludere…

πŸ“ Anisveien 3 Fredrikstad
3D-visualisering (rendering) av en bygning sett fra to ulike vinkler. Bildene viser fasade, materialvalg og omgivelser.
NewConstruction Offentlig

Ny flerbruksarena og pumpestasjon i Dokka 2, Fredrikstad

Arena Fredrikstad er en ny flerbruksarena med en publikumskapasitet på 3150 tilskuere, inkludert en treningshall for br…

πŸ“ Dokka 2 Fredrikstad
Fotografi av en eksisterende bygning (Stabburveien 18) sett fra gaten.
ChangeOfUse Offentlig

Bruksendring til politistasjon i Stabburveien 18, Fredrikstad

Bruksendring av ca. 2413 m² av eksisterende kontor- og administrasjonsbygg i Stabburveien 18 til politistasjon for nærp…

πŸ“ Stabburveien 18 Fredrikstad
Fasadetegning som viser ny fasade for Ryen Storgt. 10 AS, med fargelegging og detaljer for vinduer og inngang.
FacadeChange Other

Fasadeendring med ny inngang i Storgata 10, Fredrikstad

Ny fasadeendring på næringsbygg i Storgata 10 i Fredrikstad med etablering av en ny inngangsdør direkte fra gaten til k…

πŸ“ Storgata 10 Fredrikstad
Fotografier av en kystlinje med hus og vegetasjon sett fra vannet.
Extension Enebolig

Tilbygg og carport på enebolig i Lervikveien 99, Fredrikstad

Prosjektet omfatter oppføring av et tilbygg til eksisterende enebolig i Lervikveien 99, Fredrikstad, med et samlet bruk…

πŸ“ Lervikveien 99 Fredrikstad
3D-visualisering (rendering) av en husfasade sett fra foran, inkludert terreng og omgivende trær.
Extension Enebolig

Tilbygg med vinterhage på Vraktangen 5, Fredrikstad

Ny frittliggende vinterhage på 25 m² BYA og 20,6 m² BRA tilknyttet en eksisterende enebolig på Vraktangen 5. Tilbygget …

πŸ“ Vraktangen 5 Fredrikstad
3D-visualisering (rendering) av en nybyggende industribygning sett fra utsiden. Bildet viser fasade, omgivelser, kjøretøy og personer for å illustrere bygningens utseende.
NewConstruction Naeringsbygg

Oppføring og rehabilitering av bygg og anlegg i Hvaler kommune

Prosjektet omfatter flere tiltak i Hvaler kommune, inkludert oppføring av to nye næringsbygg på Lammenes med totalt ca.…

Fredrikstad
Fotografi av et bygge- eller anleggsområde ved vannet med grus, en grøft og en bygning i bakgrunnen.
Extension Fritidsbolig

Tilbygg, ny bod og terrengarbeider på hytte, Stangerholmveien 62

Prosjektet omfatter et tilbygg på 2 m² til eksisterende hytte, riving av en eksisterende bod og oppføring av ny bod med…

πŸ“ Stangerholmveien 62 Fredrikstad
3D-visualisering (rendering) av et nytt tilbygg sett fra nordsiden, inkludert eksisterende hytte og svalgang.
Extension Fritidsbolig

Tilbygg og fasadeendring på hytte med anneksflytting, Østre Faratangen 37

Prosjektet omfatter et nytt tilbygg på inntil 50 m² til en eksisterende fritidsbolig (hytte) på Østre Faratangen 37, me…

πŸ“ Vestre Faratangen 64 Fredrikstad
🅿️
ChangeOfUse Garasje

Bruksendring og ny takterrasse med carport i Ove Ramms Gate 17

Prosjektet omfatter bruksendring av eksisterende bygningsmasse samt oppføring av en ny takterrasse og en carport/garasj…

πŸ“ Ove Ramms gate 17 Fredrikstad
Fotografi av en hvit villa under oppussing eller vedlikehold, med stålrekkverk og en del av en vei i forgrunnen.
Other Other

Ny utvendig vann- og avløpsanlegg i Gluppeveien 4, Fredrikstad

Ny utvendig vann- og avløpsanlegg etableres for eiendommen Gluppeveien 4 i Fredrikstad. Prosjektet omfatter ny stikkled…

πŸ“ Gluppeveien 4 Fredrikstad
3D-visualisering av en blå hytte med trapp og dør
Extension Other

Oppføring av vindfang ved inngangspartiet, Bydalsveien 32

Ny oppføring av et mindre vindfang på ca. 3 m² over eksisterende trapp ved inngangspartiet på boligen i Bydalsveien 32.…

πŸ“ Bydalsveien 32 Fredrikstad
En tegning som viser fasaden på en hytte sett fra siden. Tegningen illustrerer takform, vinduer, en skorstein og en veranda. Det er også en rød linje og tekst som viser 'Original plassering vinduer i dag'.
FacadeChange Enebolig

Fasadeendring og bruksendring på enebolig i Spinellveien 29B

Eneboligen på Spinellveien 29B gjennomgår fasadeendringer med utskifting og forstørrelse av flere vinduer på fasadene n…

πŸ“ Spinellveien 29B Fredrikstad
Tegning som viser fire utsnitt av en bygning sett fra ulike sider (vest, øst, sør, nor).
Extension Enebolig

Tilbygg og utvidelse av inngangsparti i Sundløkkaveien 66

Ny utvidelse av inngangspartiet på eksisterende enebolig i Sundløkkaveien 66 med et tilbygg på ca. 14,8 m² i 1. etasje.…

πŸ“ Sundløkkaveien 66 Fredrikstad
Illustrasjon som viser hvordan en rektangulær hette over tak skal monteres på ulike taktyper.
Extension Enebolig

Tilbygg, bruksendring og fasadeendring på enebolig i Haugefjellveien 42

Ny tilbygg på enebolig i Haugefjellveien 42 med et bebygd areal på 95,5 m² og veranda på 17 m². Tilbygget strekker seg …

πŸ“ Haugefjellveien 42 Fredrikstad