ChangeOfUse Soeknad Enebolig

Bruksendring og fasadeendring i Enebolig, Anchersens vei 21

📍 Anchersens vei 21

Nøkkelinfo

Sakstype
Bruksendring
Bygningstype
Enebolig
Bruksareal
345 m²
Boenheter
1
Kommune
Drammen
Fylke
Buskerud
Saksnummer
26/09935
Fase
Søknad

Om byggesaken

Bruksendring av kjelleretasjen i en enebolig fra tilleggsdel til hoveddel medfører etablering av nye vinduer i kjeller for dagslys og rømningsvei, samt mindre fasadeendringer i loftsetasje. Det utføres også mindre terrengjusteringer for å bedre utearealene og parkering på egen tomt. Bygningen er en to-etasjes enebolig med kjeller, totalt ca. 345 m² (kjeller 123,5 m², bolig 221,3 m²). Fasaden er i tre med saltak og flatt tak, og det finnes flere vinduer og balkonger. Tiltaket endrer ikke bebygd areal, men forbedrer funksjonalitet og sikkerhet i kjelleretasjen.

Produkter og materialer

Fasade Fasadeendringer i kjeller og loft

🧱 Tre

Mindre fasadeendringer i form av nye vinduer og justeringer

Fasadeendringer for å tilpasse nye vinduer og terrengjusteringer

Grunnarbeid Mindre terrengjusteringer

Terrengjusteringer for bedre uteareal og parkering, uten vesentlige inngrep

Oppretting av ujevnt terreng og tilpasning av uteareal for parkering og bruk

VVS Oppgradering av bad og tekniske rom i kjeller

Bad på 6,3 m² og teknisk rom på 1,5 m² i kjeller oppgraderes

VVS-arbeider for bad og teknisk rom i kjeller ved bruksendring

Tømrer Innvendige arbeider i kjeller

Oppgradering av kjeller til hoveddel med nye rom og rømningsvei

Innvendig oppgradering og tilpasning av kjelleretasjen til boligstandard

Gulv Gulvbelegg i kjeller og øvrige etasjer

🧱 Parkett/Fliser

Oppgradering av gulv i kjeller og øvrige rom i bolig

Nye gulvflater i kjeller og bolig ved bruksendring og oppgradering

Rekkverk Rømningsvei og trapper

Antall: 1

Eksisterende trapp i kjeller oppgraderes for rømningsvei

Sikring av rømningsvei med rekkverk og trapp i kjeller

Vinduer Endringer på eksisterende vinduer i loftsetasje

🧱 Tre/Aluminium

Antall: 3

Mindre endringer på vinduer i loftsetasje

Justeringer av vinduer i loftsetasje som del av fasadeendring

Vinduer Nye kjellervinduer for rømningsvei og dagslys

🧱 Tre/Aluminium med 3-lags energiglass

Antall: 4

Nye vinduer i kjeller for rømningsvei og dagslys i henhold til TEK17

Etablering av nye vinduer i kjeller for å oppfylle krav til rømningsvei og dagslys

Elektro Elektrisk installasjon i kjeller og fasadeendringer

Oppgradering av elektrisk anlegg i kjeller og nye vinduer

Elektriske arbeider knyttet til bruksendring og fasadeendringer

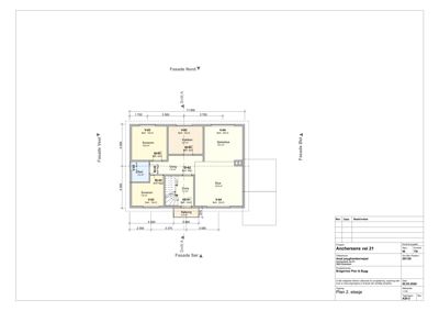
Plantegning

Kjeller 123.5 m²

Etasje 0 123.5 m²

Rom Areal Vinduer Dører
Soverom V-02 10.2 m² 1 1
Soverom V-02 8.0 m² 1 1
Stuehall V-02 9.2 m² 1 1
Gang ID-01 8.9 m² 0 2
Entre ID-01 7.7 m² 0 1
Stue V-01 20.8 m² 2 1
Tekn. rom ID-01 1.5 m² 0 1
Bad V-01 6.3 m² 0 1
Ekstra rømningsvei YD-02 9.3 m² 0 1
Ikke innredet Ikke innredet 0.0 m² 0 0
Ikke utgravd Ikke utgravd 0.0 m² 0 0

Enebolig 221.3 m²

Etasje 1 120.5 m²

Rom Areal Vinduer Dører
Soverom V-03 10.8 m² 1 1
Soverom V-03 7.6 m² 1 1
Stue V-04 18.7 m² 2 1
Kjøkken V-03 9.1 m² 1 1
Spisestue V-04 12.2 m² 1 1
Bad V-05 3.2 m² 0 1
Gang ID-02 7.2 m² 0 4
Entre ID-02 7.6 m² 0 2
Garasje GD-01 16.1 m² 1 1
Terrasse YD-01 12.0 m² 0 1
Soverom 101 10.7 m² 1 1
Kjøkken 102 8.2 m² 1 1
Spisestue 103 11.8 m² 1 1
Stue 104 19.8 m² 1 1
Barn 105 8.0 m² 0 1
Gang 106 0.0 m² 0 2
Entré 107 0.0 m² 0 1
Bad 108 0.0 m² 0 1
Garasje 109 0.0 m² 0 1

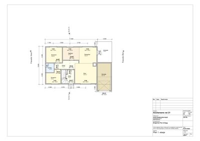
Etasje 2 100.8 m²

Rom Areal Vinduer Dører
Soverom V-03 10.8 m² 1 1
Kjøkken V-03 8.7 m² 1 1
Spisestue V-04 12.2 m² 1 1
Bad V-05 3.2 m² 0 1
Soverom V-03 7.6 m² 1 1
Stue V-04 18.9 m² 1 1
Gang ID-02 7.2 m² 0 3
Entre ID-02 7.7 m² 0 2
Balkong YD-01 2.1 m² 0 1
Soverom 201 10.7 m² 1 1
Kjøkken 202 8.2 m² 1 1
Spisestue 203 11.8 m² 1 1
Stue 204 19.8 m² 1 1
Gang 205 8.0 m² 0 2
Barn 206 8.0 m² 0 1

Hovedbygg 108.0 m²

Etasje 0 108.0 m²

Rom Areal Vinduer Dører
Ved 1 001 10.0 m² 0 1
Gang 002 10.0 m² 0 2
Disp 003 10.0 m² 0 1
Ved 2 004 10.0 m² 0 1
Døt 005 5.0 m² 0 1
Brisk 006 5.0 m² 0 1
Bod 007 5.0 m² 0 1
Vask 008 5.0 m² 0 1
Mat 1 009 5.0 m² 0 1
Mat 2 010 5.0 m² 0 1

Takplan 110.0 m²

Etasje 0 110.0 m²

Rom Areal Vinduer Dører
Bod ID-03 7.3 m² 0 1
Lofstue ID-03 20.1 m² 2 1

Fasader

Enebolig

Nord
Materiale
Tre
Taktype
Flatt tak
Vinduer
8
Dører
1
Balkonger
1
Synlige etasjer
2
Vest
Materiale
Tre
Taktype
Saltak
Vinduer
3
Dører
0
Balkonger
1
Synlige etasjer
2
Sør
Materiale
Tre
Taktype
Flatt tak
Vinduer
4
Dører
1
Balkonger
1
Synlige etasjer
2
Øst
Materiale
Tre
Taktype
Saltak
Vinduer
1
Dører
1
Balkonger
1
Synlige etasjer
2
Sør-Øst
Materiale
Tre
Taktype
Saltak
Vinduer
3
Dører
1
Synlige etasjer
2
Nordøst
Materiale
Tre
Taktype
Saltak
Vinduer
6
Dører
0
Balkonger
1
Synlige etasjer
2

2-mannsbolig

Sørvest
Materiale
Tre
Taktype
Flatt tak
Vinduer
4
Dører
1
Balkonger
1
Synlige etasjer
2
Nordvest
Materiale
Tre
Taktype
Saltak
Vinduer
4
Dører
0
Synlige etasjer
2

Hendelser

08.04.2026 Anchersens vei 21, melding om mottatt søknad søknad
07.04.2026 Anchersens vei 21 Søknad om tillatelse i ett trinn 20/128 søknad