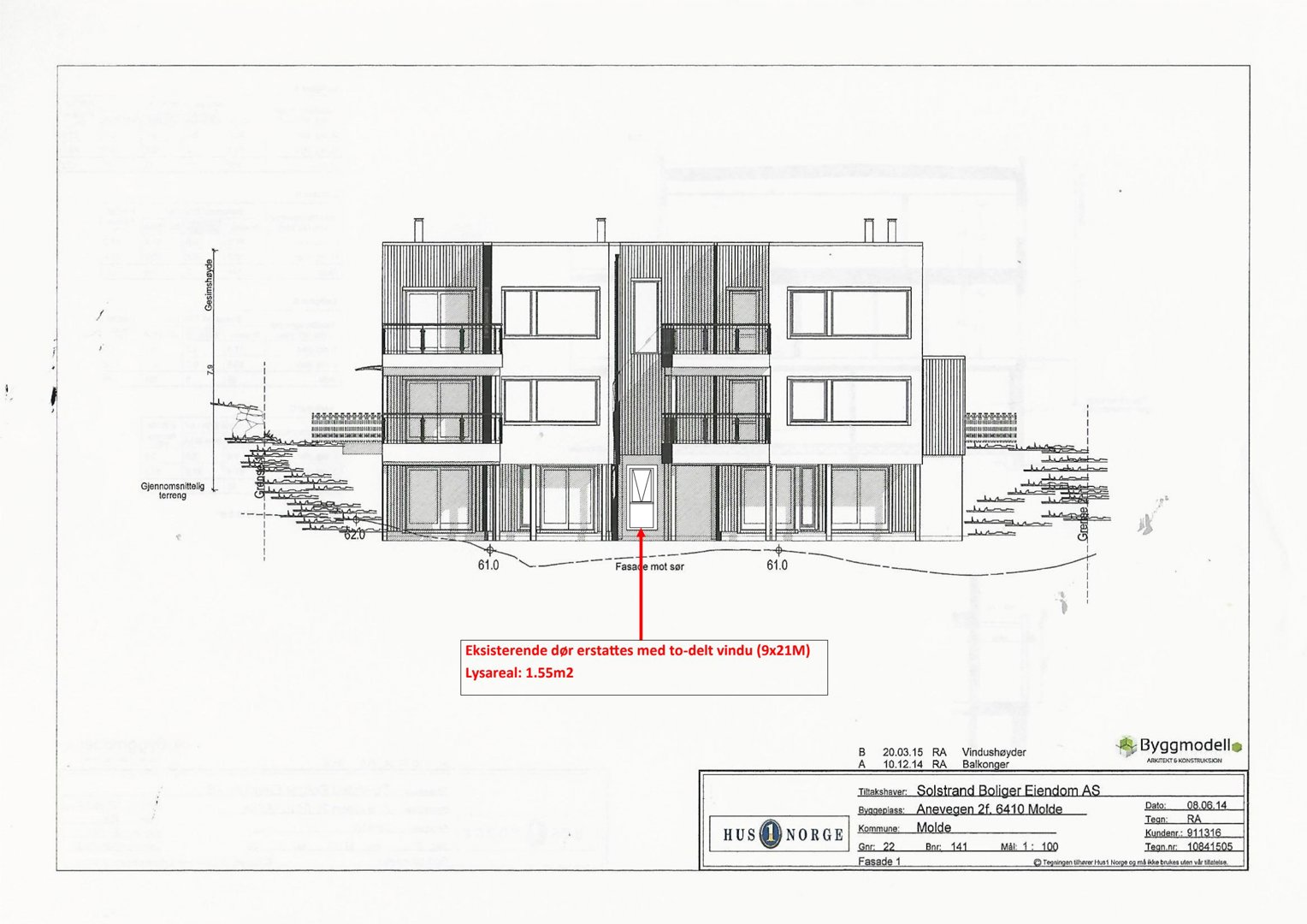
Facade
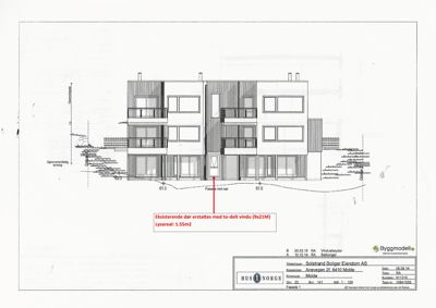
Fasadetegning som viser bygningens utseende fra fronten, med mål, vindusoppsett og en merknad om å erstatte en dør.
1 / 9
ChangeOfUse
Ferdigattest
Enebolig
Bruksendring fra bod til soverom i Anevegen 2F, Molde
📍 Anevegen 2F , 6410 MOLDE
Nøkkelinfo
- Sakstype
- Bruksendring
- Bygningstype
- Enebolig
- Bruksareal
- 12 m²
- Boenheter
- 1
- Kommune
- Molde
- Fylke
- Møre og Romsdal
- Gnr / Bnr
- 22 / 141
- Saksnummer
- 25/07577
- Fase
- Ferdigattest
Om byggesaken
Bruksendring av en eksisterende bod på 11,7 m² til et soverom i en tomannsbolig i Anevegen 2F, Molde. Prosjektet inkluderer fjerning av eksisterende dør og erstatning med et to-delt vindu (9x21M) med lysareal på 1,55 m². Det etableres ny åpning i bærevegg av betong for dør til soverommet. Arbeidet utføres innenfor eksisterende bygningsmasse uten endring av byggets ytre form eller plassering. Elektriske panelovner benyttes som varmekilde i rommet. Prosjektet er i tråd med gjeldende kommuneplan og har fått tillatelse fra kommunen.
Produkter og materialer
Vinduer
To-delt vindu
Antall: 1
9x21M, lysareal 1.55 m²
Erstatning av eksisterende dør med to-delt vindu i soverommet
Tømrer
Innvendige konstruksjoner
Arbeid med åpning i bærevegg og tilpasning av rom
Utførelse av konstruksjonsendringer for bruksendring
Maling
Innvendig maling
Overflatebehandling av nye og berørte flater i rommet
Elektro
Elektriske panelovner
Elektriske panelovner som varmekilde i rommet
Oppvarming av det nye soverommet
Dører
Innvendig dør i bærevegg av betong
🧱 Betong vegg med ny åpning
Antall: 1
Ny åpning i bærevegg for dør til soverom
Ny døråpning i bærevegg for tilgang til soverom
Isolasjon
Veggisolasjon
Isolasjon i vegger ved åpning i bærevegg og ved vindusmontering
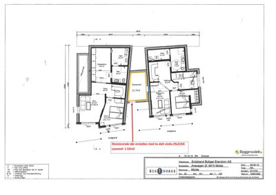
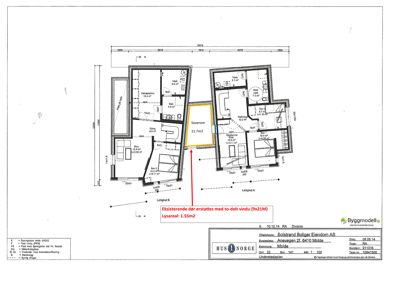
Plantegning
Leilighet 237.5 m²
Etasje 0 120.5 m²
| Rom | Areal | Vinduer | Dører |
|---|---|---|---|
| Stue 101 | 14.8 m² | 1 | 1 |
| Gang 102 | 9.5 m² | 0 | 2 |
| Sov 2 103 | 12.2 m² | 1 | 1 |
| Velværels/trim 104 | 15.0 m² | 1 | 1 |
| Vask 105 | 8.6 m² | 0 | 1 |
| Bad 106 | 5.4 m² | 0 | 1 |
| Sport/redskap 107 | 12.0 m² | 0 | 1 |
| Hall/trapp 108 | 12.2 m² | 0 | 1 |
| Gjesterom 109 | 13.0 m² | 1 | 1 |
| Sov 1 110 | 12.5 m² | 1 | 1 |
| Bad/vask 111 | 7.3 m² | 0 | 1 |
| Vask 112 | 5.1 m² | 0 | 1 |
| Sov 2 113 | 8.7 m² | 1 | 1 |
Etasje 1 117.0 m²
| Rom | Areal | Vinduer | Dører |
|---|---|---|---|
| Stue 101 | 14.8 m² | 1 | 1 |
| Sov 2 102 | 12.2 m² | 1 | 1 |
| Gang 103 | 9.5 m² | 0 | 2 |
| Velvære/trim 104 | 15.0 m² | 1 | 1 |
| Bad 105 | 5.4 m² | 0 | 1 |
| Vask 106 | 6.6 m² | 0 | 1 |
| Soverom 107 | 11.7 m² | 0 | 1 |
| Gjestestue/Stue 108 | 13.0 m² | 1 | 1 |
| Sov 1 109 | 12.5 m² | 1 | 1 |
| Sov 2 110 | 8.7 m² | 1 | 1 |
| Bad/vask 111 | 7.3 m² | 0 | 1 |
| Vask 112 | 5.1 m² | 0 | 1 |
| Hall/trapp 113 | 12.2 m² | 0 | 1 |
| Gang Gang | 9.5 m² | 0 | 2 |
| Stue Stue | 14.8 m² | 1 | 1 |
| Soverom 2 Sov 2 | 12.2 m² | 1 | 1 |
| Velværelse/Trim Velværel/trim | 15.0 m² | 1 | 1 |
| Bad Bad | 5.4 m² | 0 | 1 |
| Vaskerom Vask | 6.6 m² | 0 | 1 |
| Soverom Soverom | 11.7 m² | 1 | 1 |
| Gjestestue/Stue Gjestestue/Stue | 13.0 m² | 1 | 1 |
| Soverom 1 Sov 1 | 12.5 m² | 1 | 1 |
| Gang/Trappehall Hall/trapp | 12.2 m² | 0 | 1 |
| Bad/Vaskerom Bad/vask | 7.3 m² | 0 | 1 |
Fasader
Hovedbygg
Sør
- Materiale
- Tre
- Høyde
- 7.8 m
- Vinduer
- 10
- Dører
- 1
- Balkonger
- 3
- Synlige etasjer
- 3
Enebolig
Sør
- Høyde
- 7.8 m
- Vinduer
- 10
- Dører
- 1
- Balkonger
- 3
- Synlige etasjer
- 3
Hendelser
14.04.2026
25/07577-4 22/141/0/0 Anevegen 2F, bruksendring fra bod til soverom - søknad om ferdigattest
25.08.2025
25/07577-3 22/141, Anevegen 2F, Tillatelse til bruksendring fra bod til soverom
23.07.2025
25/07577-1 Anevegen 2F Søknad om tillatelse i ett trinn 22/141