ChangeOfUse Rammetillatelse Enebolig

Bruksendring og tilbygg til enebolig på Åsvegen 359

📍 Åsvegen 359 , 2030 NANNESTAD

Nøkkelinfo

Sakstype
Bruksendring
Bygningstype
Enebolig
Boenheter
2
Kommune
Nannestad
Fylke
Akershus
Gnr / Bnr
14 / 20
Saksnummer
2026/1489
Fase
Rammetillatelse

Om byggesaken

Prosjektet omfatter bruksendring fra tilleggsdel til hoveddel i en eksisterende enebolig på Åsvegen 359. Det inkluderer etablering av ny kjellerinngang med dør (200x100 cm) og vindu (100x80 cm) med lysgrav og flyttbart gitter. Kjelleren får funksjoner som bad, bod, teknisk rom, gang, stue og soverom, med intern adkomst via ny trapp mellom etasjene. Fasaden er i tre med saltak, og det er flere nye vinduer og dører på nord- og sørfasaden. Prosjektet innebærer bygningsmessige arbeider for å oppfylle tekniske krav til brann, lyd og rømningsveier, og skal avsluttes med ferdigattest.

Produkter og materialer

Trapper Innvendig trapp mellom etasjer

Antall: 1

Intern trapp for adkomst mellom kjeller og 1. etasje iht. TEK-17 § 12-14

Ny innvendig trapp for å etablere sammenheng mellom kjeller og hovedetasje

Bad Bad med sanitærutstyr

Antall: 2

Bad i kjeller på 3,6 m² og bad i hovedetasje

Nye bad i kjeller og hoveddel som del av bruksendring

Tømrer Bygningsarbeider for tilbygg og bruksendring

🧱 Tre

Bygningsarbeider for tilbygg, ny kjellerinngang, trapp og fasadeendringer

Tømrerarbeid knyttet til tilbygg og bruksendring

Dører Ytterdør til kjeller

Antall: 1

Dør 200cm x 100cm til ny kjellerinngang

Ny ytterdør til kjellerinngang på nordfasade

Vinduer Lysgravsvindu med gitter

Antall: 1

Vindu 100cm x 80cm med lysgrav og flyttbart gitter

Nytt vindu til kjeller med lysgrav under terreng

Teknisk Teknisk rom installasjoner

Antall: 2

Teknisk rom i kjeller og hovedetasje

Rom for tekniske installasjoner som VVS og elektro

Grunnarbeid Lysgrav under terreng

Antall: 1

Lysgrav under terreng ved nytt kjellervindu

Grunnarbeid for lysgrav til kjellervindu

Gulv Gulv med luke for adkomst mellom etasjer

Antall: 1

Luk med mål 60cm x 80cm mellom etasjer i bod

Gulvluke for adkomst mellom bod i kjeller og hovedetasje

Fasade Trepanel kledning

🧱 Tre

Fasade i tre med saltak, nye vinduer og dører på nord- og sørfasade

Fasadeendringer i forbindelse med tilbygg og bruksendring

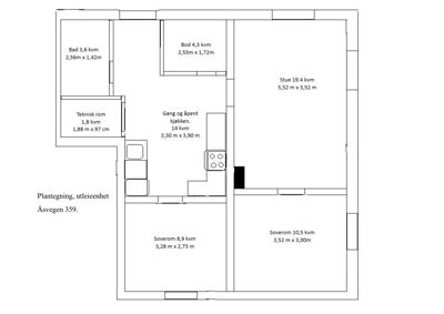
Plantegning

Enebolig 0.0 m²

Etasje 0 0.0 m²

Rom Areal Vinduer Dører
Bad 001 3.6 m² 0 1
Teknisk rom 002 1.8 m² 0 1
Bod 003 4.3 m² 0 1
Gang og åpent kjøkken 004 14.0 m² 0 1
Bad 005 3.6 m² 0 1
Bod 006 4.3 m² 0 1
Teknisk rom 007 1.8 m² 0 1

Etasje 1 0.0 m²

Rom Areal Vinduer Dører
Stue 101 19.4 m² 2 1
Soverom 102 10.5 m² 1 1
Soverom 103 8.9 m² 1 1
Gang og åpent kjøkken 104 14.0 m² 0 1

Fasader

Enebolig

Vest
Materiale
Tre
Taktype
Saltak
Vinduer
4
Dører
0
Synlige etasjer
2
Øst
Materiale
Tre
Taktype
Saltak
Vinduer
3
Dører
0
Synlige etasjer
1
Nord
Materiale
Tre
Taktype
Saltak
Vinduer
4
Dører
2
Balkonger
1
Synlige etasjer
2
Sør
Materiale
Tre
Taktype
Saltak
Vinduer
4
Dører
2
Synlige etasjer
2

Hendelser

17.04.2026 Tilleggsopplysninger - Gnr 14 bnr 20 - Åsvegen 359 - Bruksendring - Tilleggsdel til hoveddel
17.04.2026 Foreløpig svar - gnr 14 bnr 20 - Åsvegen 359
17.04.2026 Tillatelse til tiltak - Gnr 14 bnr 20 - Åsvegen 359 - Bruksendring - Tilleggsdel til hoveddel
17.04.2026 Foreløpig svar - gnr 14 bnr 20
18.03.2026 Gnr 14/20 - Søknad om tillatelse til tiltak uten ansvarsrett