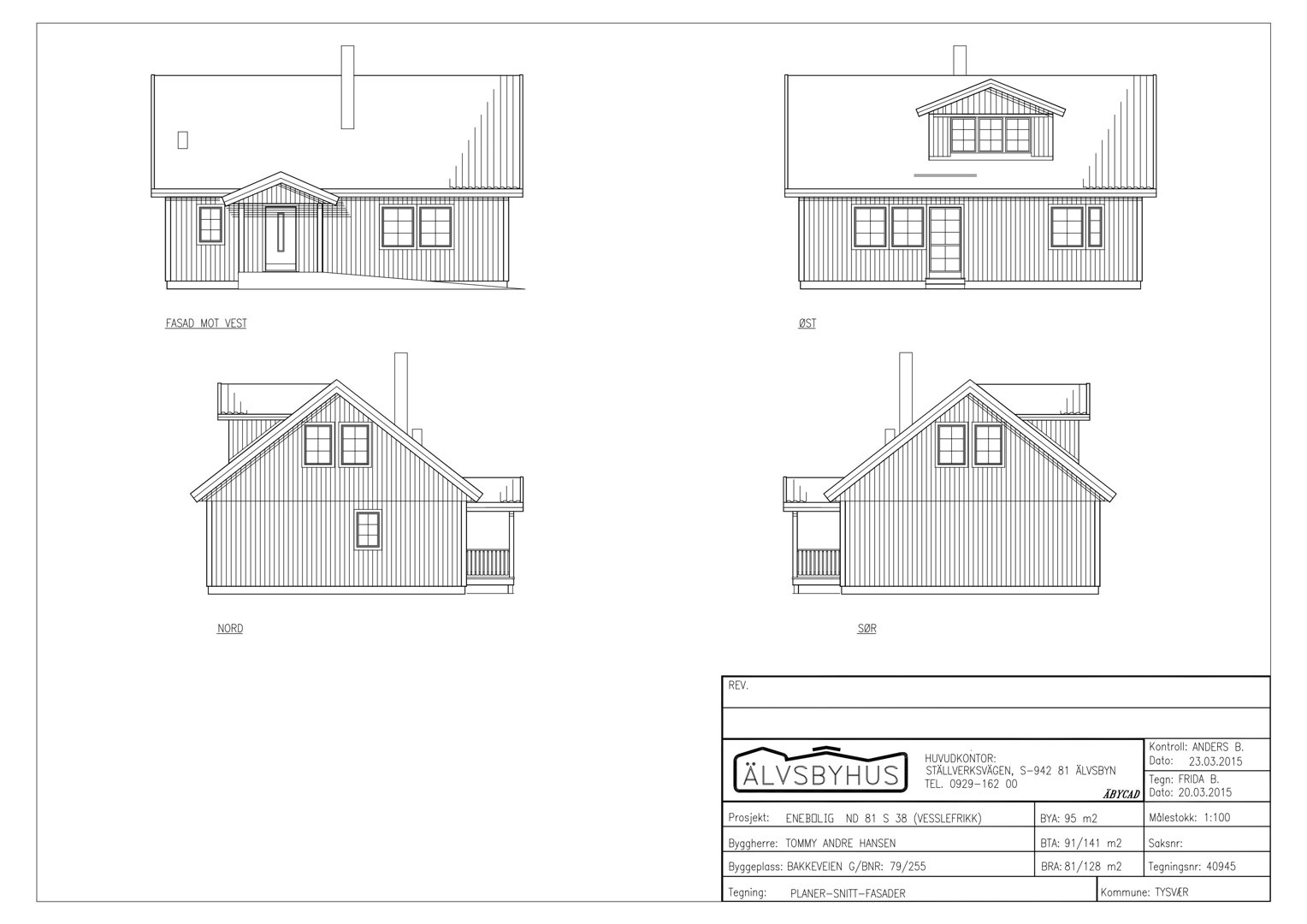
Facade
Fasadetegning som viser bygningens utsyn fra fire sider: vest, øst, nord og sør.
1 / 4
ChangeOfUse
UnderBehandling
Enebolig
Innredning av loft i enebolig, Bakkevegen 1A
📍 Bakkevegen 1A , 5563 FØRRESFJORDEN
Nøkkelinfo
- Sakstype
- Bruksendring
- Bygningstype
- Enebolig
- Bruksareal
- 142 m²
- Boenheter
- 1
- Kommune
- Tysvær
- Fylke
- Rogaland
- Gnr / Bnr
- 79 / 1094
- Saksnummer
- 2026/1094
- Fase
- Under behandling
Om byggesaken
Innredning av tidligere uinnredet loft på 47,4 m² i eksisterende enebolig fra 2016. Loftet ferdigstilles innvendig med loftstue, to soverom og bad innenfor eksisterende bygningskropp uten endring av fotavtrykk, bærekonstruksjon eller fasade. Loftet har tilstrekkelig romhøyde, isolasjon og luftespalte i henhold til TEK10. Det etableres ikke ny boenhet, men en utvidelse av boligens hoveddel med nødvendige tekniske installasjoner for bad og oppholdsrom.
Produkter og materialer
Trapper
Innvendig trapp
Antall: 1
Eksisterende trapp til loft, benyttes for adkomst til innredet loft
Elektro
Elektrisk anlegg
Elektrisk installasjon for belysning og stikkontakter i loftsrom
Gulv
Innvendig gulvbelegg
Gulvbelegg for ferdigstillelse av loftsrom
Tømrer
Innvendig ferdigstilling
🧱 tre
Innvendig kledning, vegger og tak i loftsrom
Vinduer
Fasadevindu
🧱 tre
Antall: 3
Eksisterende fasadevindu i loftsetasje, ingen nye vinduer oppført
Isolasjon
Loftisolasjon
Isolasjon og luftespalte i henhold til TEK10
Isolasjon og luftespalte for ferdigstillelse av loft til oppholdsrom
Dører
Innvendige dører
Antall: 3
Innvendige dører til loftstue, soverom og bad
Bad
Bad med sanitærinstallasjoner
Antall: 1
Innredning av bad på loft med nødvendige VVS-installasjoner
Ventilasjon
Mekanisk ventilasjon
Ventilasjon til loftstue og bad i henhold til gjeldende krav
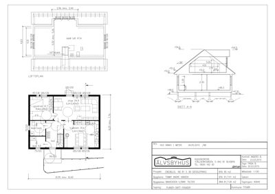
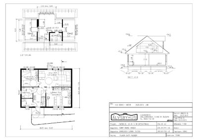
Plantegning
Enebolig 142.4 m²
Etasje 1 95.0 m²
| Rom | Areal | Vinduer | Dører |
|---|---|---|---|
| Stue 101 | 24.9 m² | 3 | 1 |
| Kjøkken 102 | 21.6 m² | 1 | 1 |
| Soverom 103 | 12.7 m² | 1 | 1 |
| Bad 104 | 0.0 m² | 0 | 1 |
| Vaskerom 105 | 0.0 m² | 0 | 1 |
| Bod 106 | 4.0 m² | 1 | 1 |
| Hall 107 | 0.0 m² | 0 | 0 |
Etasje 0 0.0 m²
| Rom | Areal | Vinduer | Dører |
|---|---|---|---|
| Kaldt loft 001 | 47.4 m² | 0 | 0 |
Etasje 2 47.4 m²
| Rom | Areal | Vinduer | Dører |
|---|---|---|---|
| Kaldt loft 201 | 47.4 m² | 3 | 0 |
Fasader
Enebolig
Vest
- Materiale
- Tre
- Taktype
- Saltak
- Vinduer
- 3
- Dører
- 1
- Synlige etasjer
- 1
Øst
- Materiale
- Tre
- Taktype
- Saltak
- Vinduer
- 5
- Dører
- 1
- Synlige etasjer
- 1
Nord
- Materiale
- Tre
- Taktype
- Saltak
- Vinduer
- 3
- Dører
- 0
- Balkonger
- 1
- Synlige etasjer
- 1
Sør
- Materiale
- Tre
- Taktype
- Saltak
- Vinduer
- 2
- Dører
- 0
- Balkonger
- 1
- Synlige etasjer
- 1
Hendelser
15.04.2026
Gbnr 79/1094 - Oppdatert tegning - bruksendring - fra tilleggsdel til hoveddel - Bakkevegen 1A
02.03.2026
Gbnr 79/1094 - Mangler ved søknad - Bruksendring - fra tilleggsdel til hoveddel - Bakkevegen 1A
23.02.2026
Gbnr 79/1094 - Søknad - bruksendring - fra tilleggsdel til hoveddel - Bakkevegen 1A