ChangeOfUse UnderBehandling Enebolig

Bruksendring av kjeller i tomannsbolig, Ekornsvingen 12

📍 Ekornsvingen 12 , 3440 RØYKEN

Nøkkelinfo

Sakstype
Bruksendring
Bygningstype
Enebolig
Bruksareal
104 m²
Boenheter
2
Kommune
Asker
Fylke
Akershus
Gnr / Bnr
222 / 66
Saksnummer
26/973
Fase
Under behandling

Om byggesaken

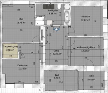
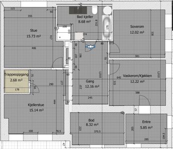
Bruksendring av kjelleretasjen i en eksisterende tomannsbolig fra tilleggsdel til boligdel/rom for varig opphold. Kjelleren på 104,5 m² inneholder stue, kjellerstue, bad, soverom, gang, vaskerom/kjøkken, bod og entre. Endringen skjer innvendig uten fasadeendringer, terrenginngrep eller økning i bygningsvolum. Kjelleren har gjennomgått omfattende oppgraderinger med nye overflater, isolasjon, tekniske installasjoner, godkjente rømningsvinduer og oppgradert bad. Romhøyde, ventilasjon, dagslys og brannsikkerhet er vurdert som tilfredsstillende for varig opphold. Tiltaket formaliserer dagens bruk uten å påvirke byggets eksteriør eller naboforhold.

Produkter og materialer

Isolasjon Vegger og himling

Forbedret isolasjon i vegger og himling i kjeller

Isolasjon for bedre inneklima og energibruk

Trapper Innvendig trapp

Antall: 1

Eksisterende trapp i kjeller

Trapp som forbinder kjeller med øvrige etasjer

Grunnarbeid Ingen nye grunnarbeider

Ingen terrenginngrep eller grunnarbeider utføres

Bruksendringen skjer innen eksisterende bygningsvolum uten grunnarbeid

Bad Bad kjeller

Antall: 1

Oppusset bad med moderne ventilasjon, membran, fukt- og vanninstallasjoner (2021)

Oppgradering av bad i kjeller med nye tekniske løsninger

Ventilasjon Bad og kjellerrom

Moderne ventilasjonsløsninger installert i bad og kjeller

Ventilasjon for fukt- og luftkvalitetskontroll

Gulv Varmekabler og varmematter

Varmekabler og varmematter installert i entre og andre rom

Oppvarming av gulv i kjelleretasjen

Tømrer Innvendige vegger og overflater

🧱 Gipsvegger

Nye gipsvegger, oppretting av gulv og himling

Innvendige konstruksjoner og overflatearbeid i kjeller

Elektro Oppgradert elektrisk anlegg

Oppgradering av elektrisk anlegg i kjellerrom

Elektriske installasjoner for sikkerhet og funksjonalitet

Vinduer Rømningsvindu

Antall: 1

Godkjent rømningsvindu i soverom, installert 2016/2021

Rømningsvindu for kjellerrommet som oppfyller krav til rømningsvei

Plantegning

Kjeller 104.5 m²

Etasje 0 104.5 m²

Rom Areal Vinduer Dører
Stue 001 15.7 m² 0 1
Trappeoppgang 002 2.7 m² 0 1
Kjellerstue 003 15.1 m² 0 1
Bad kjeller 004 8.7 m² 0 1
Soverom 005 12.0 m² 0 1
Gang 006 12.2 m² 0 2
Vaskerom/Kjøkken 007 12.2 m² 0 1
Bod 008 8.3 m² 0 1
Entre 009 5.8 m² 0 1

Hendelser

10.04.2026 222/66 Ekornsvingen 12 - Varsel om avslag for bruksendring
25.03.2026 222/66 Ekornsvingen 12 - Søknad om tiltak uten ansvarsrett - Bruksendring fra tilleggsdel til hoveddel