ChangeOfUse Soeknad Enebolig

Bruksendring med nye soverom og bad i kjeller, Eventyrsvingen 9

📍 Eventyrsvingen 9 , 3042 DRAMMEN

Nøkkelinfo

Sakstype
Bruksendring
Bygningstype
Enebolig
Bruksareal
35 m²
Boenheter
1
Kommune
Drammen
Fylke
Buskerud
Gnr / Bnr
20 / 662
Saksnummer
26/10974
Fase
Søknad

Om byggesaken

Bruksendring av deler av kjeller i eksisterende enebolig fra bod og kjellerstue til hoveddel med to nye soverom på ca. 14 m² hver og ett bad på ca. 7,4 m². Det etableres nye vinduer i betongveggen for å tilfredsstille krav til dagslys og rømningsvei i henhold til TEK17. Det er ingen endring i bygningens grunnflate, høyde eller volum, og tiltaket medfører ikke ny boenhet. Eksisterende bad i 1. etasje bygges samtidig om til toalettrom. Samlet areal for bruksendringen er ca. 35 m². Kjelleretasjen får dermed økt funksjonalitet med nye oppholdsrom innenfor eksisterende konstruksjon.

Produkter og materialer

VVS Sanitærinstallasjoner bad

Vann og avløp til nytt bad i kjeller

VVS-installasjoner for nytt bad

Elektro Elektrisk installasjon i nye rom

Belysning, stikkontakter og røykvarsler i nye soverom og bad

Elektrisk arbeid for nye rom i kjeller

Tømrer Innvendige vegger og dører

🧱 Gipsvegger, isolasjon

Oppføring av nye innervegger for soverom og bad, samt nye dører til rommene

Oppbygging av nye rom i kjeller med vegger og dører

Maling Innvendig maling

Maling av vegger og tak i nye rom

Overflatebehandling av nye rom

Gulv Gulvbelegg i nye rom

Gulvbelegg egnet for våtrom i bad og vanlig gulv i soverom

Legging av gulv i nye soverom og bad

Bad Nytt bad i kjeller

Antall: 1

Bad på ca. 7,4 m² med sanitærinstallasjoner tilpasset eksisterende bolig

Etablering av nytt bad i kjeller som del av bruksendringen

Vinduer Nye kjellervinduer i betongvegg

🧱 3-lags energiglass

Antall: 2

Vinduer for dagslys og rømningsvei i henhold til TEK17, vindushøyde 1200 mm, montert 300 mm over gulv

Nye vinduer i kjeller for soverommene for å tilfredsstille dagslys- og rømningskrav

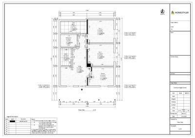
Plantegning

Enebolig 183.1 m²

Etasje 1 78.7 m²

Rom Areal Vinduer Dører
Gang 101 22.0 m² 0 0
Sov1 102 14.1 m² 1 1
Sov2 103 13.7 m² 1 1
Kontor ByLaila 104 10.2 m² 0 1
Vaskerom 105 5.0 m² 0 1
Bad Morter 106 4.5 m² 0 1
Bad laila 107 7.4 m² 0 1
VF 108 1.6 m² 0 1
Teknisk 109 3.4 m² 0 0

Etasje 2 104.4 m²

Rom Areal Vinduer Dører
Stue 201 32.0 m² 2 1
Kjøkken 202 12.0 m² 0 1
Gang 203 10.0 m² 0 2
Bad 204 6.0 m² 0 1
Sove 1 205 12.0 m² 1 1
Sove 2 206 12.0 m² 1 1
Sove 3 207 12.0 m² 1 1
Vaskerom 208 5.0 m² 0 1
Teknisk 209 3.4 m² 0 0

Fasader

Enebolig

Nord
Materiale
Tre
Taktype
Saltak
Vinduer
2
Dører
1
Synlige etasjer
1
Øst
Materiale
Tre
Taktype
Saltak
Takmat.
Tegl
Vinduer
6
Dører
0
Balkonger
1
Synlige etasjer
2

Sov 2

Ukjent
Materiale
Tre
Høyde
2.4 m
Vinduer
0
Dører
0
Synlige etasjer
1

Hendelser

21.04.2026 Eventyrsvingen 9, melding om mottatt søknad
20.04.2026 Eventyrsvingen 9 Søknad om tillatelse til tiltak uten ansvarsrett 20/662