ChangeOfUse UnderBehandling Enebolig

Bruksendring og ferdigattest for enebolig i Fredensborgveien 116, Bodø

📍 Fredensborgveien 116 , 8005 BODØ

Nøkkelinfo

Sakstype
Bruksendring
Bygningstype
Enebolig
Bruksareal
53 m²
Boenheter
1
Kommune
Bodø
Fylke
Nordland - Nordlánnda
Gnr / Bnr
2020 / 6352
Saksnummer
2026/1460
Fase
Under behandling

Om byggesaken

Prosjektet omfatter en bruksendring av en eksisterende enebolig med totalt 53,2 m² bruksareal, inkludert kjeller. Kjelleren er innredet med stue/kjøkken, soverom, bad, gang og bodarealer, med intern forbindelse til 1. etasje, slik at kjelleren ikke utgjør en egen boenhet. Bygget har saltak med teglstein og trekledning på fasadene. Det er gjennomført innvendige endringer som flytting av bad og ny inngangsdør til kjeller. Ventilasjon er løst med ventiler i yttervegger og mekanisk avtrekksvifte på bad. Det foreligger oppdaterte as-built tegninger og gjennomføringsplan, samt dokumentasjon på utførte sanitær- og tømrerarbeider, inkludert branntetting. Ansvarsrett er erklært for alle relevante fagområder, og det søkes om ferdigattest for tiltaket.

Produkter og materialer

Brannvern Branntetting

Branntetting utført av E. Angell Bygg AS

Branntetting i forbindelse med innvendige endringer

Maling Innvendig maling

Innvendig maling av vegger og tak som del av ferdigstillelse

Innvendig maling i oppussede rom

Trapper Innvendig trapp

🧱 tre

Antall: 1

Innvendig trapp mellom kjeller og 1. etasje

Innvendig trapp i tre som forbinder kjeller og 1. etasje

Elektro Elektriske varmekabler

Elektriske varmekabler for varmefordeling

Elektriske varmekabler installert i bygget

Tak Saltak med teglstein

🧱 tre og teglstein

Antall: 1

Saltak med teglstein som takmateriale

Saltak med teglstein på enebolig

VVS Sanitærinstallasjoner

Sanitærinstallasjoner i bad og kjøkken, inkludert mekanisk fuktstyrt avtrekksvifte på bad

Sanitærinstallasjoner og ventilasjon i kjeller og hovedetasje

Fasade Trekledning

🧱 tre

Antall: 1

Trekledning på alle fasader

Trekledning på eneboligens fasader

Vinduer Fasadevindu

🧱 tre

Antall: 21

Vinduer i tre med 3-lags glass, fordelt på fasader nord (6), vest (4), sør (5), øst (6)

Fasadevindu i tre for enebolig med saltak og trekledning

Tømrer Innvendige konstruksjoner

🧱 tre

Innvendige tømrerarbeider inkludert flytting av bad og ny inngangsdør

Innvendige tømrerarbeider i kjeller og hovedetasje

Dører Ytterdør

🧱 tre

Antall: 4

Ytterdører i tre, inkludert ny inngangsdør til kjeller via utvendig trapp

Ytterdører i tre for hovedinngang og kjellerinngang

Grunnarbeid Drenering og grunnmur

Eksisterende grunnmur og drenering opprettholdes, ingen nye grunnarbeider dokumentert

Grunnarbeid for eksisterende enebolig

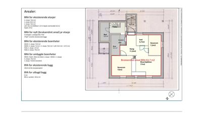
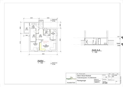
Plantegning

Enebolig 53.2 m²

Etasje 0 53.2 m²

Rom Areal Vinduer Dører
Stue/kjøkken 100 19.6 m² 0 1
Soverom 101 7.0 m² 0 1
Bad 102 4.4 m² 0 1
Soverom 104 10.0 m² 0 1
Bod 105 8.1 m² 0 1
Gang 106 7.0 m² 0 2
Bod 107 5.7 m² 0 1
Gang 108 10.7 m² 0 1
Gang U01 11.5 m² 0 2
Bod U02 5.0 m² 0 1
Bod U03 5.3 m² 0 1
Stue/kjøkken U04 17.0 m² 3 1
Soverom U05 13.0 m² 1 1
Soverom U06 7.2 m² 1 1
Bad U07 4.7 m² 0 1
Soverom 001 13.0 m² 0 1
Gang 002 11.5 m² 0 2
Stue/kjøkken 003 17.0 m² 3 1
Soverom 004 7.2 m² 1 1
Bad 005 4.7 m² 0 1
Bod 006 5.3 m² 0 1
Bod 007 5.0 m² 0 1

Fasader

Enebolig

Nord
Materiale
Tre
Taktype
Saltak
Takmat.
Tegl
Vinduer
6
Dører
1
Synlige etasjer
2
Vest
Materiale
Tre
Taktype
Saltak
Takmat.
Tegl
Vinduer
4
Dører
0
Synlige etasjer
2
Sør
Materiale
Tre
Taktype
Saltak
Takmat.
Tegl
Vinduer
5
Dører
1
Synlige etasjer
2
Øst
Materiale
Tre
Taktype
Saltak
Takmat.
Tegl
Vinduer
6
Dører
1
Synlige etasjer
2

Hendelser

21.04.2026 Melding om endring uten ansvarsrett - Fredensborgveien 116
25.03.2026 Korrespondanse om ansvarsretter
05.03.2026 Svar på henvendelse om ansvarsretter i foreløpig svar
03.03.2026 Supplering av søknad
02.03.2026 Bekrefter at brev er oversendt
27.02.2026 Spørsmål til foreløpig svar
17.02.2026 Korrespondanse angående forslag til befaring
10.02.2026 Foreløpig svar - Melding om endring av ansvarsrett og søknad om ferdigattest
08.01.2026 Søknad om ferdigattest - Fredensborgveien 116
02.12.2025 Melding om endring av ansvarsrett - Fredensborgveien 116