ChangeOfUse UnderBehandling Enebolig

Bruksendring fra fritidsbolig til helårsbolig i Gjerrudveien 3, Drammen

📍 Gjerrudveien 1 , 3060 SVELVIK

Nøkkelinfo

Sakstype
Bruksendring
Bygningstype
Enebolig
Bruksareal
241 m²
Boenheter
1
Kommune
Drammen
Fylke
Buskerud
Gnr / Bnr
327 / 4
Saksnummer
24/26077
Fase
Under behandling

Om byggesaken

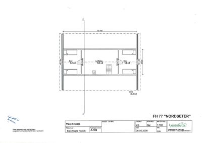
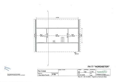
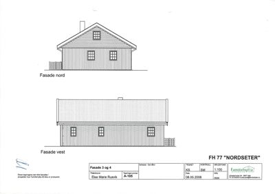
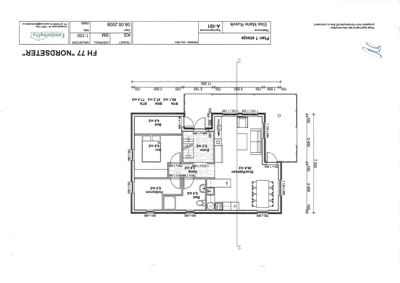
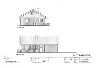
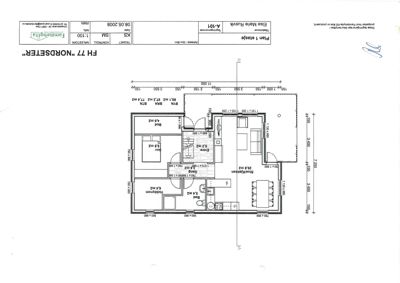
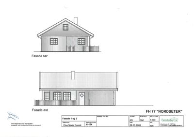
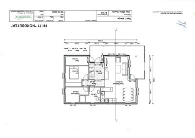
Eksisterende enebolig oppført i 2010/2011 som fritidsbolig i et boligområde, med et samlet areal på 241,2 m² fordelt på to etasjer. Bygningen har saltak og trekledning, med 14 vinduer og 6 dører, inkludert en pipe og en balkong. Prosjektet omfatter en formell bruksendring fra fritidsbolig til helårsbolig uten fysiske endringer i bygningsvolum eller plassering. Det søkes dispensasjon fra krav om reguleringsplan og byggegrense mot vassdrag. Bygningen har standard isolasjon og ventilasjon med ventiler i vegg, mekanisk avtrekk på bad og kjøkken, og vedovn. Badet har redusert snusirkel (ca. 130 cm) og det søkes unntak fra TEK17 krav om universell utforming. Parkeringsplasser er justert for å ivareta naturverdier knyttet til hule eiker på eiendommen. Det foreligger godkjent avkjøringstillatelse fra fylkeskommunen.

Produkter og materialer

Trapper Innvendig trapp

🧱 Tre

Antall: 1

Trapp til hems med forskriftsmessig rekkverk og håndløper

Innvendig trapp til loft/hems

VVS Ventilasjon

Ventiler i vegg i alle rom, mekanisk avtrekk på bad og kjøkken

Ventilasjonssystem med naturlig og mekanisk avtrekk

Annet Universell utforming

Søknad om fritak fra krav til universell utforming grunnet kostnad og liten gevinst

Unntak fra universell utforming for eksisterende bygg

Fasade Trekledning

🧱 Tre

Trekledning på alle fasader

Trekledning som ytterkledning på huset

Isolasjon Vegger og gulv

🧱 Mineralull og trefiberplater

200 mm isolasjon i vegger, 200 mm i gulv, 300 mm i tak

Isolasjon for varme- og lydisolering

Elektro Brann- og innbruddsalarm

Alarm tilkoblet Verisure i alle rom

Sikkerhetssystem for brann og innbrudd

VVS Varme

Rentbrennende vedovn i stue, varmekabler på bad og gang

Oppvarming av bolig med vedovn og elektriske varmekabler

Grunnarbeid Parkering

Antall: 2

To parkeringsplasser plassert utenfor hensynssone H560 for å ivareta hul eik

Opparbeidelse av parkeringsplasser i tråd med naturhensyn

Grunnarbeid Avkjørsel

Antall: 1

Godkjent avkjøringstillatelse fra Buskerud fylkeskommune for tilkomst til fylkesvei

Opparbeidet avkjørsel med krav til snuplass på egen eiendom

Bad Bad med redusert snusirkel

Antall: 1

Snusirkel på bad ca. 130 cm, søknad om unntak fra TEK17 § 12-9 (1) a)

Bad med tilpasset snusirkel for rullestol, unntak søkt

Dører Ytterdører og balkongdør

🧱 Tre

Antall: 6

Inkluderer balkongdør og hovedinngangsdør

Ytterdører for adkomst og balkong

Tak Saltak

🧱 Tretak med isolasjon

Antall: 1

300 mm isolasjon i tak

Saltak med god isolasjon

Vinduer Sidehengslede vinduer

🧱 Tre med 2-lags glass

Antall: 14

Godkjente rømningsvinduer i alle rom

Vinduer for dagslys og rømningsvei i eneboligen

Hendelser

21.04.2026 Gjerrudveien 3, Oversendelse av godkjent avkjøringstillatelse fra Buskerud fylkeskommune
17.04.2026 Gjerrudveien 3, avkjørselstillatelse og revidert situasjonsplan
26.03.2026 Gjerrudveien 3, vi trenger flere opplysninger for å behandle søknaden din
10.03.2026 Gjerrudveien 3, Uttalelse - dispensasjon
11.02.2026 Gjerrudveien 3, anmodning om uttalelse fra Statsforvalteren
11.02.2026 Gjerrudveien 3, anmodning om uttalelse fra Buskerud fylkeskommune
06.02.2026 Gjerrudveien 3, supplerende opplysninger - dispensasjonssøknad mm.
21.01.2026 Gjerrudveien 3, vi trenger flere opplysninger for å behandle søknaden din
05.12.2025 Gjerrudveien 3, ettersendt dokumentasjon
04.12.2025 Gjerrudveien 3, vi vurderer å avvise søknaden din
18.02.2025 Gjerrudveien 3, vi trenger flere opplysninger for å behandle søknaden din
05.02.2025 Gjerrudveien 3, Redegjørelse for bruksendring
15.01.2025 Gjerrudveien 3, vi trenger flere opplysninger for å behandle søknaden din
07.01.2025 Gjerrudveien 3, komplettering av søknad
26.11.2024 Gjerrudveien 3, vi trenger flere opplysninger for å behandle søknaden din
13.11.2024 Gjerrudveien 3 Søknad om tillatelse i ett trinn 327/4
04.11.2024 Gjerrudveien 3, vedrørende utsatt frist
01.11.2024 Gjerrudveien 3, vedrørende manglende opplysninger
26.08.2024 Gjerrudveien 3, vedrørende utvidet frist
26.08.2024 Gjerrudveien 3, utvidet frist
26.08.2024 Henvendelse, Søknad om bruksendring - Gjerrudveien 3
30.07.2024 Gjerrudveien 3, vi trenger flere opplysninger for å behandle søknaden din
05.07.2024 Gjerrudveien 3, søknad om bruksendring