ChangeOfUse Ferdigattest Enebolig

Bruksendring og fasadeendring på enebolig i Glaservegen 19, Skien

📍 Glaservegen 19 , 3727 SKIEN

Nøkkelinfo

Sakstype
Bruksendring
Bygningstype
Enebolig
Bruksareal
106 m²
Boenheter
1
Kommune
Skien
Fylke
Telemark
Gnr / Bnr
2 / 805
Saksnummer
2026/7815
Fase
Ferdigattest

Om byggesaken

Bruksendring av rom i underetasjen fra tilleggsdel til hoveddel i en eksisterende enebolig på ca. 106 m². Det utføres mindre fasadeendringer, inkludert nytt vindu og utvidelse av eksisterende vindu i underetasjen. Bygningen har saltak og trekledning, med flere fasader mot ulike himmelretninger. Endringene inkluderer også tilpasning til brannsikringskrav og innvendig gjennomgang i hele boligen. Eiendommen ligger i boligområde regulert til boligformål, og tiltaket er i samsvar med gjeldende reguleringsplan. Det er én etasje med trapper, og fasaden består av tre med saltak og pipe. Nabosamtykker foreligger for plassering nærmere nabogrense enn 4 meter.

Produkter og materialer

Vinduer Fasadevindu i underetasje

🧱 Tre/Aluminium

Antall: 2

Nytt vindu og utvidelse av eksisterende vindu i underetasje, oppfyller TEK17 krav til dagslys (min. 1,5 m sum høyde og bredde)

Fasadevindu for underetasje i enebolig, inkludert nytt og utvidet vindu

VVS Sanitæranlegg

Sanitæranlegg må søkes særskilt godkjent og tilknyttes offentlig vann og kloakk

Sanitæranlegg tilkoblet offentlig vann- og avløpsnett

Elektro Elektrisk anlegg

Elektriske installasjoner må følge gjeldende forskrifter og godkjennes

Elektriske installasjoner i forbindelse med bruksendring og fasadeendring

Tømrer Innvendige vegger og dører

🧱 Tre, gipsplater

Innvendige vegger og dører tilpasset ny rombruk i underetasje

Tømrerarbeid for tilpasning av rom i underetasje ved bruksendring

Brannvern Brannsikring

Tiltaket må brannsikres forskriftsmessig i henhold til vilkår i tillatelsen

Brannsikring av bygning i forbindelse med bruksendring

Tak Saltak

🧱 Tre, takstein eller shingel

Eksisterende saltak med takstein eller shingel, taktekking må være av ubrennbare materialer

Saltak med taktekking i henhold til reguleringsplan og brannkrav

Gulv Isolasjon og fuktsikring

🧱 Mineralull, dampsperre, sponplater

Fukt- og varmeisolering av gulv på grunn i underetasje, iht. beskrivelse i byggesaken

Isolasjon og fuktsikring av gulv i underetasje

Fasade Trekledning

🧱 Tre

Eksisterende trekledning opprettholdes, mindre endringer i fasade ved vindusplassering

Trekledning på fasader med mindre endringer i forbindelse med bruksendring

Trapper Innvendig trapp

🧱 Tre

Antall: 1

Eksisterende innvendig trapp i enebolig, sikres ved bruksendring

Innvendig trapp i enebolig

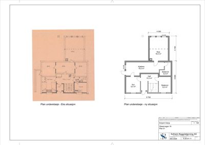
Plantegning

Enebolig 106.3 m²

Etasje 0 106.3 m²

Rom Areal Vinduer Dører
Stue 001 18.4 m² 1 1
Kjøkken 002 18.2 m² 1 1
Baderom 003 4.8 m² 0 1
Hall 004 12.5 m² 0 3
Sov 005 9.4 m² 1 1
Baderom 006 8.0 m² 0 1
Gang 007 2.6 m² 0 1
WC 008 0.0 m² 0 1
Vask 009 0.0 m² 0 1
Bod 010 0.0 m² 0 1
Bod 011 0.0 m² 0 1
Bod 012 0.0 m² 0 1
Sov 013 9.0 m² 0 1
Hall 014 7.4 m² 0 2
Vask 015 0.0 m² 0 1
Trim 016 0.0 m² 0 1

Fasader

Enebolig

Vest
Materiale
Tre
Taktype
Saltak
Vinduer
3
Dører
1
Synlige etasjer
1
Sørøst
Materiale
Tre
Taktype
Saltak
Høyde
4.5 m
Mønehøyde
6.5 m
Vinduer
1
Dører
1
Synlige etasjer
1
Nordvest
Materiale
Tre
Taktype
Saltak
Høyde
4.5 m
Mønehøyde
6.5 m
Vinduer
0
Dører
0
Synlige etasjer
1
Sørvest
Materiale
Tre
Taktype
Saltak
Høyde
4.5 m
Mønehøyde
6.5 m
Vinduer
2
Dører
1
Synlige etasjer
1
Sørlig
Materiale
Tre
Taktype
Saltak
Vinduer
2
Dører
1
Synlige etasjer
1
Nordøst
Materiale
Tre
Taktype
Saltak
Høyde
4.5 m
Mønehøyde
6.5 m
Vinduer
4
Dører
1
Balkonger
1
Synlige etasjer
2

Hendelser

21.04.2026 Søknad om ferdigattest - Gbnr 2/805 - Glaservegen 19 - bruksendring og fasadeendring
10.04.2026 Tillatelse - Gbnr 2/805 - Glaservegen 19 - bruksendring og fasadeendring
10.04.2026 Fakturagrunnlag - Gbnr 2/805 - Glaservegen 19 - bruksendring og fasadeendring
08.04.2026 Supplering av søknad - Gbnr 2/805 - Glaservegen 19 - bruksendring og fasadeendring
26.03.2026 Mangler i søknad - Gbnr 2/805 - Glaservegen 19 - bruksendring og fasadeendring
24.03.2026 Søknad om tillatelse i ett trinn - Gbnr 2/805 - Glaservegen 19 - bruksendring og fasadeendring