ChangeOfUse UnderBehandling Enebolig

Bruksendring, fasadeendring og ny garasje i Høyangveien 6

📍 Høyangveien 6 , 3084 HOLMESTRAND

Nøkkelinfo

Sakstype
Bruksendring
Bygningstype
Enebolig
Bruksareal
146 m²
Boenheter
1
Kommune
Holmestrand
Fylke
Vestfold
Gnr / Bnr
1 / 189
Saksnummer
2026/3157
Fase
Under behandling

Om byggesaken

Prosjektet omfatter bruksendring og omfattende ombygging av en eksisterende enebolig på Høyangveien 6, Holmestrand. Boligen får endret planløsning med tilbygg og etterisolering, samt ny vedlikeholdsfri skiferkledning på vegger og tak. Møne- og gesimshøyde økes noe på grunn av etterisolering. Det bygges ny, større garasje med takterrasse over, som erstatter en mindre garasje som rives. Garasjen plasseres lenger fra vei og får utvidet nedkjørsel med ny forstøtningsmur. Det etableres flere terrasser, inkludert takterrasse og terrasse på nordsiden med trapp ned til terreng. Fasader endres med nytt inngangsparti og glassrekkverk på takterrasse. Prosjektet inkluderer også grensejustering og dispensasjonssøknad for byggegrenser mot vei.

Produkter og materialer

Terrasse Takterrasse og terrasse nordside

Antall: 2

Takterrasse over garasje og terrasse på nordsiden med rekkverk

Nye terrasser for rekreasjon og uteopphold

Rekkverk Glassrekkverk takterrasse

🧱 Glass

Glassrekkverk på takterrasse over garasje

Sikring av takterrasse med glassrekkverk

Elektro Elektrisk installasjon

Elektriske installasjoner i bolig og garasje

Elektroarbeid som del av ombygging

Tak Saltak og flatt tak

Eksisterende saltak på bolig, flatt tak på takterrasse over garasje

Takendringer med takterrasse på garasje og takoverbygg ved inngang

Tømrer Trekonstruksjoner og montering

🧱 Tre

Tømrerarbeider for tilbygg, ombygging og garasje

Tømrerarbeid utført av Larsen Bygg AS

Isolasjon Etterisolering vegger og tak

Etterisolering av bolig for bedre energibruk

Isolasjon i vegger og tak som del av ombygging

Trapper Utvendig trapp til takterrasse og terrasse

Antall: 2

Trapp opp til øvre takterrasse og trapp ned fra terrasse nordside til terreng

Nye utvendige trapper til takterrasse og terrasse

Dører Ytterdører og garasjeportdør

Antall: 9

Ytterdører i tre, inkludert inngangsdør og dør til garasje

Nye ytterdører og dør til garasje

Garasjeport Garasjeport ny

Antall: 1

Ny garasje med port, bredere enn eksisterende, med takterrasse over

Ny garasje med port som erstatter eksisterende garasje

Fasade Skiferkledning vegger og tak

🧱 Vedlikeholdsfri skifer

Ny vedlikeholdsfri skiferkledning på vegger og tak for bedre isolasjon og vedlikehold

Fasadeendring med ny skiferkledning på eksisterende og tilbygg

Grunnarbeid Nedkjørsel og forstøtningsmur

🧱 Betong og mur

Utvidet nedkjørsel til garasje, ny forstøtningsmur tilsvarende eksisterende

Grunnarbeid for ny garasje og nedkjørsel

Mur Støttemur ved nedkjørsel

🧱 Betong

Antall: 2

Ny støttemur nord og sør for nedkjørsel til garasje

Støttemurer for terrengstøtte ved garasjeavkjørsel

Vinduer Fasadevindu og takvindu

Antall: 23

Vinduer i tre med 3-lags glass, inkludert Velux takvindu 660x1180 mm med lyssjakt

Nye og eksisterende vinduer i bolig og garasje, takvindu på loft

Gulv Innvendige gulv

Nye gulv i bolig etter ombygging

Gulvlegging i bolig etter ombygging

Riving Riving av eksisterende garasje og takutstikk

Riving av gammel garasje på 18 m² og takutstikk over inngang på 2,3 m²

Riving som del av ombyggingsprosjektet

VVS Sanitær og membran våtrom

Oppgradering av bad og vaskerom med membran og sanitærinstallasjoner

VVS-arbeider i våtrom utført av selvbygger

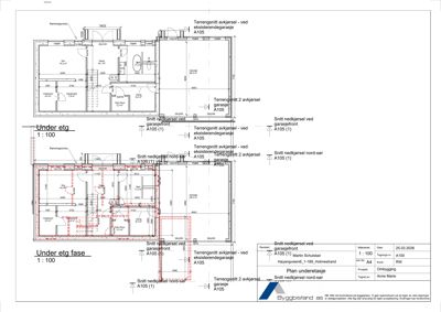
Plantegning

Enebolig 146.2 m²

Etasje 0 68.0 m²

Rom Areal Vinduer Dører
Brensel 001 9.0 m² 0 1
Vaskerom 002 10.3 m² 0 1
Kjøkken 003 6.4 m² 0 1
Stue 004 15.1 m² 1 1
Natt 005 4.4 m² 0 1
Bod 006 4.5 m² 0 1
Tekn. Rom 007 2.3 m² 0 1
Garasje 008 46.2 m² 2 1

Etasje 1 78.2 m²

Rom Areal Vinduer Dører
Sove 101 8.7 m² 0 1
Sove 102 12.0 m² 0 1
Entre 103 5.7 m² 0 1
Kjøkken 104 8.5 m² 0 1
Bad 105 4.5 m² 0 1
Stue 106 25.9 m² 1 1
Bad 107 11.2 m² 0 1

Fasader

Enebolig

Sør-Vest
Materiale
Tre
Taktype
Saltak
Vinduer
4
Dører
1
Synlige etasjer
2
Sør-Øst
Materiale
Tre
Taktype
Saltak
Vinduer
1
Dører
1
Synlige etasjer
2
Nord-Øst
Materiale
Tre
Taktype
Flatt tak
Vinduer
6
Dører
1
Balkonger
1
Synlige etasjer
2
Nord-Vest
Materiale
Tre
Taktype
Valmtak
Vinduer
3
Dører
1
Balkonger
1
Synlige etasjer
1
Øst
Materiale
Tre
Taktype
Flatt tak
Vinduer
6
Dører
1
Synlige etasjer
2
Sør
Materiale
Tre
Taktype
Valmtak
Vinduer
1
Dører
0
Synlige etasjer
2
Vest
Materiale
Tre
Taktype
Flatt tak
Vinduer
2
Dører
1
Synlige etasjer
1
Nord
Materiale
Tre
Taktype
Valmtak
Vinduer
0
Dører
0
Synlige etasjer
1

Hendelser

14.04.2026 Gbnr 1/189 - Høyangveien 6 - bruksendring bygg - supplering av søknad
24.03.2026 Gbnr 1/189 - Høyangveien 6 - bruksendring bygg - mangelbrev nr. 1
19.03.2026 Gbnr 1/189 - Høyangveien 6 - bruksendring bygg - søknad om tillatelse i ett trinn