ChangeOfUse Rammetillatelse Enebolig

Bruksendring og fasadeendring på enebolig i Hyggenveien 61

📍 Hyggenveien 61 , 3442 HYGGEN

Nøkkelinfo

Sakstype
Bruksendring
Bygningstype
Enebolig
Bruksareal
150 m²
Boenheter
1
Kommune
Asker
Fylke
Akershus
Gnr / Bnr
274 / 33
Saksnummer
26/491
Fase
Rammetillatelse

Om byggesaken

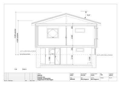
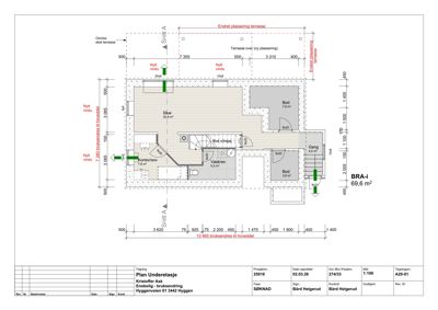
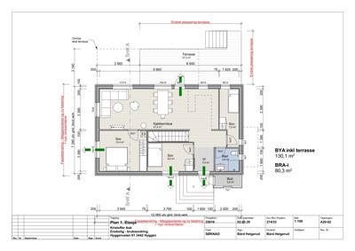
Eksisterende enebolig fra 1940 med totalt 150 m² BRA gjennomgår bruksendring av kjelleretasjen fra tilleggsdel til hoveddel, inkludert fasadeendringer som bytte av vinduer og ytterdører, tilleggsisolering av vegger og ny kledning i hvit farge. Kjelleretasjen får ny inngang via et lite tilbygg på 4,6 m² mot vest, og terrassen mot sør justeres noe i plassering og størrelse (27,3 m²). Byggets konstruksjon opprettholdes med enkelte endringer i bærende elementer for trapp mellom etasjene. Totalt bebygd areal økes fra 125,5 m² til 130,1 m². Fasaden er i tre med saltak, og det er flere nye vinduer og dører i ulike fasader. Prosjektet inkluderer også oppdatering av rømningsveier og tilpasning til gjeldende tekniske krav.

Produkter og materialer

Fasade Tilleggsisolering og ny kledning

🧱 Trepanel, hvit farge

Tilleggsisolering av vegger og ny utvendig kledning i hvit farge på hele bygget

Isolering og kledning av fasade for bedre energieffektivitet og estetikk

Terrasse Endret terrasse med trapp

🧱 Tre

Antall: 1

Terrasse på 27,3 m² flyttet noe vestover med trapp til terreng

Oppgradering og flytting av terrasse med ny trapp

Isolasjon Veggisolasjon

🧱 Mineralull eller tilsvarende

Tilleggsisolering av yttervegger i forbindelse med fasadeendring

Isolasjon for bedre varmeisolering av fasade

Trapper Innvendig trapp mellom etasjer

🧱 Tre

Antall: 1

Endring av bærende konstruksjon for hulltaking i bjelkelag og ny trapp mellom kjeller og 1. etasje

Montering av ny innvendig trapp med tilpasning i bjelkelag

VVS Sanitærinstallasjoner

Oppdatering av sanitærinstallasjoner i kjeller ved bruksendring

Tilpasning av VVS for ny bruk av kjelleretasjen

Dører Ytterdører og terrassedører

🧱 Tre/kompositt

Antall: 6

Nye ytterdører og terrassedører i fasader, inkludert ny inngang til kjeller via tilbygg

Bytte og ny montering av ytterdører og terrassedører i fasader

Gulv Innvendige gulv

🧱 Parkett/laminat eller fliser

Oppgradering av gulv i kjeller og 1. etasje i forbindelse med bruksendring

Nye gulvflater tilpasset boligstandard

Vinduer Fasadevindu og kjellervindu

🧱 Tre/kompositt med 3-lags energiglass

Antall: 14

Nye vinduer i fasader, inkludert 2 nye kjellervinduer, med uendret plassering men endret størrelse på 2 vinduer

Bytte av eksisterende vinduer med nye energieffektive vinduer i fasader og kjeller

Grunnarbeid Tilbygg kjellerinngang

🧱 Betong og tre

Antall: 1

Lite tilbygg på 4,6 m² for ny inngang til kjeller

Bygging av tilbygg for kjellerinngang

Elektro Oppgradering og tilpasning elektro

Oppdatering av elektriske installasjoner i forbindelse med bruksendring og fasadeendring

Elektriske arbeider for å tilpasse ny bruk og fasadeendringer

Maling Innvendig og utvendig maling

🧱 Maling og beis

Maling av ny kledning og innvendige flater etter oppgradering

Overflatebehandling for beskyttelse og estetikk

Tømrer Bygging og montering av trekonstruksjoner

🧱 Tre

Utførelse av tilbygg, trapp og fasadeendringer

Tømrerarbeid for fasade, tilbygg og innvendige konstruksjoner

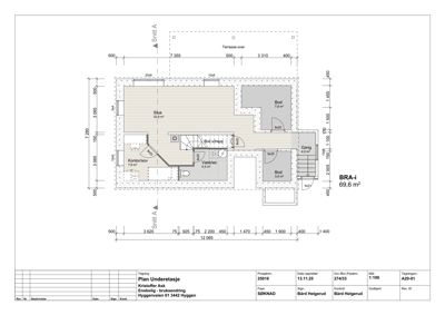
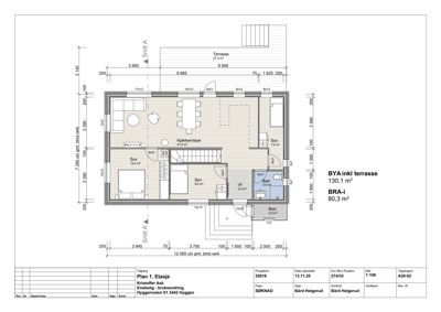
Plantegning

Enebolig 149.9 m²

Etasje 0 69.6 m²

Rom Areal Vinduer Dører
Stue 001 32.9 m² 3 2
Kontor/sov 002 7.8 m² 1 1
Vask/wc 003 5.5 m² 0 1
Bod 004 7.8 m² 0 1
Bod 005 3.8 m² 0 1
Gang 006 4.0 m² 0 2
Jordkjeller 007 13.5 m² 0 1
Trappegang 008 4.0 m² 0 1

Etasje 1 80.3 m²

Rom Areal Vinduer Dører
Kjøkken/stue 101 41.4 m² 3 2
Sov 102 13.4 m² 1 1
Sov 103 9.0 m² 1 1
Sov 104 7.0 m² 1 1
Bad 105 3.8 m² 0 1
Vf 106 3.3 m² 0 1
Bod 107 2.0 m² 0 1
Soverom 3 108 8.6 m² 0 1
Bad 109 3.9 m² 0 1
Bod 110 4.9 m² 0 1

Fasader

Enebolig

Sørvest
Materiale
Tre
Taktype
Saltak
Vinduer
6
Dører
0
Balkonger
1
Synlige etasjer
2
Sørøst
Materiale
Tre
Taktype
Saltak
Vinduer
3
Dører
1
Balkonger
1
Synlige etasjer
2
Nordøst
Materiale
Tre
Taktype
Saltak
Vinduer
2
Dører
1
Synlige etasjer
1
Nordvest
Materiale
Tre
Taktype
Saltak
Vinduer
3
Dører
1
Balkonger
1
Synlige etasjer
2

Hendelser

10.04.2026 274/33 Hyggenveien 61 - Viktig informasjon fra kommunen
10.04.2026 274/33 Hyggenveien 61 - Tillatelse til tiltak i ett trinn for bruksendring fra tilleggsdel til hoveddel
10.04.2026 274/33 Hyggenveien 61 - Ber om korrekt byggetillatelse
23.03.2026 274/33 Hyggenveien 61 - Supplering av søknad
13.03.2026 274/33 Hyggenveien 61 - Ber om supplerende dokumentasjon
06.03.2026 274/33 Hyggenveien 61 - Supplering av søknad
27.02.2026 274/33 Hyggenveien 61 - Ufullstendig søknad - Bruksendring fra tilleggsdel til hoveddel
16.02.2026 274/33 Hyggenveien 61 - Søknad om tillatelse i ett trinn - Bruksendring fra tilleggsdel til hoveddel