ChangeOfUse UnderBehandling Enebolig

Bruksendring av kjellerrom i Industrigata 8, Mjøndalen

📍 Industrigata 8 , 3050 MJØNDALEN

Nøkkelinfo

Sakstype
Bruksendring
Bygningstype
Enebolig
Boenheter
1
Kommune
Drammen
Fylke
Buskerud
Gnr / Bnr
214 / 206
Saksnummer
25/39714
Fase
Under behandling

Om byggesaken

Bruksendring av kjellerareal i en eksisterende enebolig i Industrigata 8, Mjøndalen, fra tilleggsdel til hoveddel innenfor samme boenhet. Kjelleren får nye hovedfunksjoner som soverom, kjellerstue, dusj/WC og et rom med minikjøkken. Det etableres intern trappeforbindelse til første etasje, og romhøyden i kjelleren er over 2,2 meter. Byggets bærende konstruksjoner av tre og mur berøres ikke, og tiltaket innebærer ingen ny bruksenhet eller sekundær boenhet. Flomsikring vurderes i sikkerhetsklasse F1 med tiltak mot 20-års flom. Det er ikke behov for dispensasjoner, og tiltaket er i tråd med reguleringsformål og tekniske krav.

Produkter og materialer

Grunnarbeid Ingen nye grunnarbeider

Eksisterende kjeller og grunnarbeid berøres ikke

Ingen nye grunnarbeider nødvendig

Maling Innvendig maling

Innvendig maling av kjellerrom etter bruksendring

Overflatebehandling av vegger og tak i kjeller

Elektro Elektrisk anlegg

Elektrisk anlegg for belysning og stikkontakter i kjellerrom

Elektrisk installasjon i kjeller

VVS Sanitærinstallasjoner

VVS installasjoner for dusj/WC og minikjøkken i kjeller

Sanitær og vanninstallasjoner i kjeller

Dører Innvendige dører

🧱 Tre eller tilsvarende

Antall: 7

Dører til soverom, bod, dusj/WC, kjellerstue og korridor i kjeller samt dør mellom kjeller og første etasje

Innvendige dører i kjeller og trappeforbindelse til første etasje

Bad Dusj/WC

Antall: 1

Dusj/WC i kjeller som del av bruksendringen

Bad med dusj og WC i kjeller

Fasade Tre kledning

🧱 Tre

Fasade i tre med saltak, eksisterende bygg

Fasade av eksisterende enebolig

Trapper Innvendig trapp

🧱 Tre eller tilsvarende

Antall: 1

Intern trappeforbindelse mellom kjeller og første etasje, komplettert med forskriftsmessig rekkverk

Trapp som forbinder kjeller med første etasje

Kjøkken Minikjøkken

Antall: 1

Minikjøkken i kjeller som del av bruksendringen

Lite kjøkken i kjeller

Isolasjon Isolasjon i kjeller

Isolasjon i kjellervegger og gulv for å oppnå >19°C innendørs temperatur

Isolasjon for oppvarming og komfort i kjeller

Vinduer Fasadevindu

🧱 Tre eller PVC

Antall: 7

Målsatte vinduer i kjeller og første etasje, inkludert 3 vinduer i kjellerstue og allrom med minikjøkken

Vinduer i kjeller og første etasje som del av bruksendringen

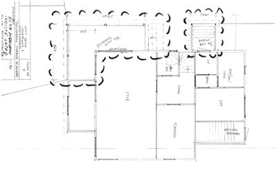
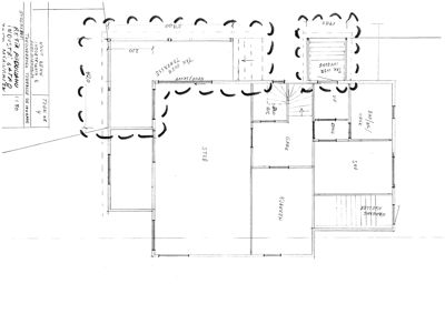
Plantegning

Enebolig 0.0 m²

Etasje 1 0.0 m²

Rom Areal Vinduer Dører
Stue 101 0.0 m² 3 1
Kjøkken 102 0.0 m² 0 1
Gang 103 0.0 m² 0 2
Sov 104 0.0 m² 0 1
Gang 105 0.0 m² 0 1
WC 106 0.0 m² 0 1
Bad 107 0.0 m² 0 1
Vask 108 0.0 m² 0 1
VF 109 0.0 m² 0 1

Etasje 0 0.0 m²

Rom Areal Vinduer Dører
Kjellerstue 001 0.0 m² 1 1
Sov 1 002 0.0 m² 0 0
Allrom m/minikjøkken 003 0.0 m² 2 1
Korridor 004 0.0 m² 0 0
Bod 005 0.0 m² 0 1
Dusj/WC 006 0.0 m² 0 1
Sov 2 007 0.0 m² 1 1

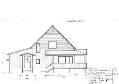
Fasader

Enebolig

Vest
Materiale
Tre
Taktype
Saltak
Høyde
3.5 m
Vinduer
4
Dører
1
Balkonger
1
Synlige etasjer
2
Nord
Materiale
Tre
Taktype
Saltak
Høyde
3.3 m
Mønehøyde
8.3 m
Vinduer
4
Dører
1
Synlige etasjer
2

Hovedbygg

Sør
Materiale
Tre
Taktype
Saltak
Høyde
4.0 m
Mønehøyde
8.0 m
Vinduer
3
Dører
0
Balkonger
1
Synlige etasjer
2

Hendelser

21.04.2026 Industrigata 8, tilbakemelding på søknad og informasjon om kommuneplanens bestemmelser
20.03.2026 Industrigata 8 Supplering av søknad 214/206
16.02.2026 Industrigata 8, utsatt frist for supplering av søknad innvilges
14.01.2026 Industrigata 8, kopi av brev sendt ut via Altinn 30.12.2025, og utsatt frist innvilges
30.12.2025 Industrigata 8, vi trenger flere opplysninger for å behandle søknaden din
29.12.2025 Industrigata 8, henvendelse i forbindelse med søknad om bruksendring av rom i kjeller
08.12.2025 Industrigata 8, tilbakemelding på henvendelse i forbindelse med søknad om bruksendring av rom i kjeller BYGG-25/01923
04.12.2025 Industrigata 8, angående tillatelse til tiltak
11.11.2025 Industrigata 8 Søknad om tillatelse til tiltak uten ansvarsrett 214/206