Photo
Fotografier av lysgrav utenfor et soveromsvindu og utsikt inn i lysgraven.
1 / 12
ChangeOfUse
Rammetillatelse
Enebolig
Bruksendring av bod til soverom i Innlegda 7B, Førde
📍 Innlegda 10A , 6812 FØRDE
Nøkkelinfo
- Sakstype
- Bruksendring
- Bygningstype
- Enebolig
- Bruksareal
- 120 m²
- Boenheter
- 1
- Kommune
- Sunnfjord
- Fylke
- Vestland
- Gnr / Bnr
- 43 / 202
- Saksnummer
- 2026/2278
- Fase
- Rammetillatelse
Om byggesaken
Bruksendring av en bod i underetasjen i rekkehus Innlegda 7B til et godkjent soverom. Rommet har fått etablert et nytt vindu i betongvegg med lysgrav, dimensjon 100x90 cm, med ventilasjon ved siden av vinduet for å sikre lufttilførsel. Det er sikret rømningsvei gjennom vinduet med fastmontert møbel og stige. Rommet har tidligere vært brukt som bod og kontor, og er nå fysisk tilpasset som soverom med nødvendige bygningsmessige endringer for å oppfylle krav til oppholdsrom.
Produkter og materialer
Grunnarbeid
Lysgrav
🧱 Betong
Antall: 1
Lysgrav utenfor vinduet for å gi lys og rømningsmulighet
Grunnarbeid for etablering av lysgrav utenfor nytt vindu
Tømrer
Innvendige arbeider
Tilpasning av rommet til soverom, inkludert montering av møbel foran vindu for rømningsvei
Innvendige tømrerarbeider for å tilpasse bod til soverom
Vinduer
Lysgravsvindu i betongvegg
Antall: 1
100 cm x 90 cm, kan slås innover, med lysgrav
Nytt vindu i betongvegg med lysgrav for å gi dagslys og rømningsvei til det nye soverommet
Ventilasjon
Ventil ved vindu
Antall: 1
Ventil montert ved siden av vinduet for nødvendig lufttilførsel
Ventilasjon for å sikre luftkvalitet i det nye soverommet
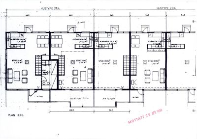
Plantegning
Enebolig 120.5 m²
Etasje 1 120.5 m²
| Rom | Areal | Vinduer | Dører |
|---|---|---|---|
| Kjøkken 101 | 14.6 m² | 0 | 1 |
| Stue 102 | 32.0 m² | 1 | 1 |
| Sov 103 | 9.8 m² | 0 | 1 |
| Altan 104 | 0.0 m² | 0 | 1 |
| Bad 105 | 0.0 m² | 0 | 1 |
Etasje 0 0.0 m²
| Rom | Areal | Vinduer | Dører |
|---|---|---|---|
| Vask/Tørk 001 | 4.9 m² | 0 | 1 |
| Hobbyrom 002 | 4.7 m² | 0 | 1 |
| Matbod 003 | 2.1 m² | 0 | 1 |
| Matbod 004 | 2.1 m² | 0 | 1 |
| Hobbyrom 005 | 4.7 m² | 0 | 1 |
| Vask/Tørk 006 | 4.9 m² | 0 | 1 |
| Vask 007 | 4.9 m² | 0 | 1 |
| Kjell 008 | 3.6 m² | 0 | 1 |
| Matb 009 | 1.9 m² | 0 | 1 |
| Matb 010 | 1.9 m² | 0 | 1 |
| Kjell 011 | 3.6 m² | 0 | 1 |
| Vask 012 | 4.9 m² | 0 | 1 |
| WC/Bad 013 | 5.3 m² | 0 | 1 |
| Loft 014 | 2.4 m² | 0 | 1 |
| Loft 015 | 2.4 m² | 0 | 1 |
| WC/Bad 016 | 5.3 m² | 0 | 1 |
| Loft 017 | 1.8 m² | 0 | 1 |
| Bad 018 | 3.4 m² | 0 | 1 |
| Loft 019 | 1.8 m² | 0 | 1 |
| Bad 020 | 3.4 m² | 0 | 1 |
| Sov 021 | 12.5 m² | 0 | 1 |
| Gang 022 | 11.2 m² | 0 | 1 |
| V.F. 023 | 3.0 m² | 0 | 1 |
| Sportsbod 024 | 4.6 m² | 0 | 1 |
| Sov 025 | 12.5 m² | 0 | 1 |
| Gang 026 | 11.2 m² | 0 | 1 |
| V.F. 027 | 3.1 m² | 0 | 1 |
| Sportsbod 028 | 4.6 m² | 0 | 1 |
| Sov 029 | 12.5 m² | 0 | 1 |
| Gang 030 | 11.2 m² | 0 | 1 |
| V.F. 031 | 3.1 m² | 0 | 1 |
| Sov 032 | 12.5 m² | 0 | 1 |
Hendelser
20.04.2026
Vedtak om løyve til bruksendring av bod til soverom på gbnr. 43/202
20.04.2026
Søknad om ferdigattest gbnr 43/202
27.03.2026
Søknad om bruksendring - bod til soverom - Innlegda 7b