ChangeOfUse UnderBehandling Enebolig

Påbygg, tilbygg og bruksendring i Ivar Aasens gate 16, Kristiansund

📍 Ivar Aasens gate 16 , 6508 KRISTIANSUND N

Nøkkelinfo

Sakstype
Bruksendring
Bygningstype
Enebolig
Bruksareal
12 m²
Boenheter
3
Kommune
Kristiansund
Fylke
Møre og Romsdal
Gnr / Bnr
3 / 260
Saksnummer
26/02070
Fase
Under behandling

Om byggesaken

Prosjektet omfatter påbygg med to takopplett mot nord, tilbygg som utvidelse av verandaer i plan 2 og 3, samt fasadeendringer med tre nye takvinduer. Det innebærer også utvidelse av tre brannceller ved innlemming av arealer på loft og i kjeller, samt bruksendring av enkelte rom i kjeller og loft fra tilleggsdel til hoveddel. Bygningen er en eksisterende enebolig i tre med saltak, og tiltaket tilpasser seg eksisterende bygningsstruktur og materialvalg. Arealet økes med ca. 12,4 m², og tiltaket inkluderer også dispensasjonssøknad for overskridelse av byggegrense mot vei og reguleringsbestemmelser. Tiltaket vurderes som et mindre inngrep med begrensede terrenginngrep og ingen vesentlig økning i personopphold.

Produkter og materialer

Fasade Takvinduer

🧱 Glass og tre/aluminium

Antall: 3

Tre nye takvinduer, ett takvindu fjernes

Fasadeendring med tre nye takvinduer for økt dagslys og ventilasjon

Gulv Innvendige gulv

Oppgradering av gulv i bruksendrede rom

Nye gulvflater i rom som endres fra tilleggsdel til hoveddel

Isolasjon Isolasjon for påbygg og tilbygg

🧱 Mineralull eller tilsvarende

Isolasjon i nye takopplett og verandaer for energikrav TEK17

Isolasjon for å oppfylle energikrav i påbygg og tilbygg

VVS Sanitærinstallasjoner

Sanitærinstallasjoner i forbindelse med våtrom og bruksendring

Oppgradering og tilpasning av sanitærinstallasjoner i våtrom

Grunnarbeid Terrengtilpasning

Lite terrenginngrep, tiltak plasseres på opparbeidet areal

Grunnarbeid for tilpasning av eksisterende terreng til påbygg og tilbygg

Brannvern Branncelleutvidelse

🧱 Brannisolasjon og brannskillekonstruksjoner

Antall: 3

Utvidelse av tre brannceller i loft og kjeller

Endring av brannskille for å innlemme nye arealer i brannceller

Fasade Veranda utvidelse

🧱 Tre

Antall: 4

Utvidelse av verandaer i plan 2 og 3, overskrider byggegrense mot vei

Tilbygg som utvidelse av fire verandaer for bedre funksjonalitet og solforhold

Tømrer Trekonstruksjoner

🧱 Tre

Montering av trekonstruksjoner for påbygg og tilbygg

Tømrerarbeid for påbygg, tilbygg og verandautvidelser

Tak Takopplett

🧱 Tre og isolasjon

Antall: 2

To takopplett mot nord for bedre takhøyde og dagslys

Påbygg med to takopplett for økt takhøyde og dagslys på loft

Bruksendring Rombruksendring

Bruksendring av rom i kjeller og loft fra tilleggsdel til hoveddel

Innlemming av boder og tørkeloft til hoveddel i bolig

Elektro Elektrisk installasjon

Elektriske installasjoner for nye takvinduer og påbygg

Elektrisk arbeid for belysning og ventilasjon i nye konstruksjoner

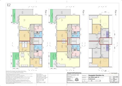
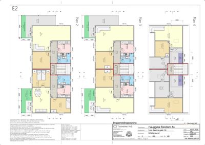
Plantegning

Enebolig 845.6 m²

Etasje 1 180.0 m²

Rom Areal Vinduer Dører
Bod 001 8.3 m² 0 1
Bod 002 5.1 m² 0 1
Felles bod 003 10.6 m² 0 1
Gang 004 3.3 m² 0 3
Vaskerom 005 13.7 m² 0 1
Rulle 006 11.8 m² 0 1
Trapperom 007 15.4 m² 0 2
Sport 008 8.6 m² 0 1
Sport 009 10.7 m² 0 1
Sport 010 8.3 m² 0 1
Felles vaskerom 011 3.2 m² 0 1
Kjellerrom felles 012 22.1 m² 0 1
Stue 101 35.2 m² 1 1
Soverom 102 25.0 m² 1 1
Kjøkken 103 15.0 m² 1 1
Bad/Wc 104 6.0 m² 0 1
Gang 105 10.0 m² 0 2

Etasje 2 248.6 m²

Rom Areal Vinduer Dører
Stue 201 31.0 m² 1 1
Kjøkken 202 7.4 m² 0 1
Bad 203 4.2 m² 0 1
Soverom 1 204 12.5 m² 1 1
Soverom 2 205 12.2 m² 1 1
Gang 206 5.9 m² 0 2
Trappegang 207 8.9 m² 0 2
Veranda 208 4.6 m² 1 0

Etasje 3 248.6 m²

Rom Areal Vinduer Dører
Stue 301 31.0 m² 1 1
Kjøkken 302 7.4 m² 0 1
Bad 303 4.2 m² 0 1
Soverom 1 304 12.5 m² 1 1
Soverom 2 305 12.2 m² 1 1
Gang 306 5.9 m² 0 2
Trappegang 307 8.9 m² 0 2
Veranda 308 4.6 m² 1 0

Etasje 4 168.4 m²

Rom Areal Vinduer Dører
Stue 401 14.2 m² 1 1
Soverom 1 402 6.5 m² 1 1
Soverom 2 403 11.7 m² 1 1
Bod 404 4.4 m² 0 1
Bod 405 4.4 m² 0 1
Bod 406 8.0 m² 0 1
Bod 407 18.9 m² 0 1
Trapperom 408 4.7 m² 0 2
Trapperom 409 4.7 m² 0 1

Fasader

Enebolig

Nord
Materiale
Tre
Taktype
Saltak
Vinduer
11
Dører
1
Balkonger
2
Synlige etasjer
3
Sør
Materiale
Tre
Taktype
Saltak
Vinduer
4
Dører
0
Balkonger
1
Synlige etasjer
2
Vest
Materiale
Tre
Taktype
Saltak
Vinduer
8
Dører
1
Synlige etasjer
2
Øst
Materiale
Tre
Taktype
Saltak
Vinduer
4
Dører
0
Balkonger
1
Synlige etasjer
2

Hendelser

13.04.2026 26/02070-3 Ivar Aasens gate 16, Foreløpig tilbakemelding på søknad om bruksendring fra tilleggsdel til hoveddel
13.04.2026 26/02070-4 Ivar Aasens gate 16 - Anmodning om uttalelse i forbindelse med søknad om dispensasjon – byggegrense mot vei
10.04.2026 26/02070-2 SV: Ivar Aasens gate 16 - Fordeling av sak
18.03.2026 26/02070-1 Ivar Aasens gate 16 - Søknad om bruksendring fra tilleggsdel til hoveddel