ChangeOfUse Avslatt Enebolig

Bruksendring og fasadeendring i enebolig på Jørgensløkka 9A

📍 Jørgensløkka 9A , 1387 ASKER

Nøkkelinfo

Sakstype
Bruksendring
Bygningstype
Enebolig
Bruksareal
58 m²
Boenheter
1
Kommune
Asker
Fylke
Akershus
Gnr / Bnr
49 / 7
Saksnummer
20/6599
Fase
Avslått

Om byggesaken

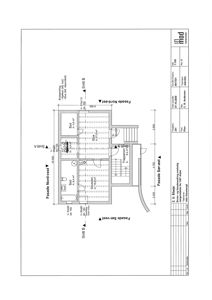
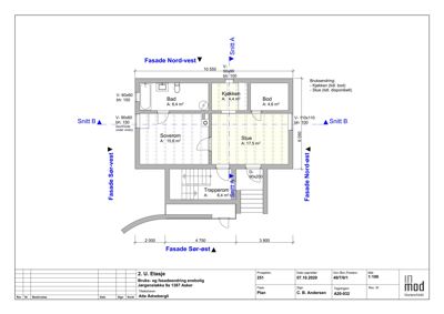
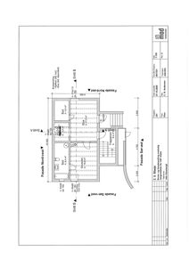
Bruksendring av kjellerareal på 57,86 m² fra tilleggsdel til hoveddel med rom som bad, soverom og stue, inkludert utgraving for ny kjellerdør og innsetting av nye vinduer og dør i fasaden. Fasadeendringene omfatter blant annet utvidelse av vinduer for rømningsvei og bytte av vindu til skyvedør. Det er fjernet deler av bærende vegg i 1. etasje med opprettholdelse av brannvegg. Bygget er en trebygget enebolig med saltak tekket med teglstein, og fasadene har flere vinduer og dører i tre. Det er etablert ny trapp til kjeller. Tiltaket er gjennomført med håndverker med ansvarsrett, og det foreligger søknad om ferdigattest.

Produkter og materialer

Gulv Senking av gulv i kjeller

Antall: 1

Senking av gulv 10 cm i kjeller

Senking av gulv for å oppnå romhøyde og adkomst

Tak Saltak med teglstein

🧱 tre og teglstein

Antall: 1

Saltak tekket med teglstein

Eksisterende saltak med teglstein som takmateriale

Bad Bad i kjeller

Antall: 1

Bad på 8,4 m² med romhøyde over 2 meter

Bad i kjeller med tilfredsstillende romhøyde og standard

Tømrer Fjerning av bærende vegg

🧱 tre/stål (antatt)

Antall: 1

Fjerning av deler av bærende vegg i 1. etasje, brannvegg opprettholdes

Fjerning av bærende vegg med nødvendig sikring og brannvegg

Betong Ny trapp i kjeller

Antall: 1

Ny mur og trapp til kjeller

Ny mur og trapp for adkomst til kjeller

Grunnarbeid Utgraving for kjellerdør

Antall: 1

Graving og senking av gulv 10 cm i kjeller for ny dør

Utgraving for ny kjellerdør og adkomst

Vinduer Fasadevindu

🧱 tre

Antall: 14

vinduer i tre, inkludert utvidet vindu for rømningsvei

Nye og utvidede fasadevinduer i kjeller og øvrige etasjer for lys og rømningsvei

Elektro Elektrisk oppvarming

Elektriske panelovner og varmekabler

Elektrisk oppvarming i bygget

VVS Sanitærinstallasjoner bad

Vannklosett og sanitærutstyr i bad

Sanitærinstallasjoner i bad i kjeller

Dører Kjellerdør og skyvedør

🧱 tre

Antall: 3

ny kjellerdør, skyvedør i fasade, dørbytte i fasade

Ny kjellerdør med utgraving for adkomst, bytte av dør til skyvedør i fasade

Fasade Trepanel

🧱 tre

Trepanel på fasader

Fasade med trepanel, endringer i fasade for vinduer og dører

Hendelser

21.04.2026 49/7 Jørgensløkka 9A - Søknad om ferdigattest
21.04.2026 49/7/0/1 Jørgensløkka 9A - Søknad om ferdigattest
16.04.2026 49/7 Bruksendring og fasadeendring - Manglende ferdigattest eller midlertidig brukstillatelse
15.04.2026 49/7 Jørgensløkka 9A - Svar på brev om manglende ferdigattest eller brukstillatelse
10.12.2020 49/7 Bekreftelse på romhøyde - Bruksendring og fasadeendring
10.12.2020 49/7 Endring av hva som skal bruksendres - Bruksendring og fasadeendring
10.12.2020 49/7 Tillatelse til tiltak uten ansvarsrett - Bruksendring og fasadeendring
04.12.2020 49/7 Spørsmål til søknad - Bruksendring og fasadeendring
26.11.2020 49/7 Angående byggesak - Bruksendring og fasadeendring
26.11.2020 49/7 Tilbakemelding på byggesak
12.11.2020 49/7 Tilbakemelding vedrørende flere tiltak og varsel om avslag på bruksendring til ny boenhet
20.10.2020 49/7 Kvitteringsbrev - Bruksendring og fasadeendring
20.10.2020 49/7 Søknad om bruksendring og fasadeendring