ChangeOfUse Soeknad Enebolig

Bruksendring i enebolig på Kjølnekløva 2, Hvaler

📍 Kjølnekløva 2 , 1684 VESTERØY

Nøkkelinfo

Sakstype
Bruksendring
Bygningstype
Enebolig
Bruksareal
189 m²
Boenheter
1
Kommune
Hvaler
Fylke
Østfold
Gnr / Bnr
47 / 239
Saksnummer
2026/142
Fase
Søknad

Om byggesaken

Bruksendring av kjellerrom i en enebolig på Kjølnekløva 2 fra tilleggsdel til hoveddel med innredning av bad, gang, soverom og kontor/arbeidsplass. Underetasjen får fire vinduer, inkludert et nytt vindu på 60x120 cm som kan åpnes innover, og en regulær inngangsdør på nordsiden. Det etableres ventilasjon med vifte og avtrekk mot nord. Det tekniske rommet i underetasjen er tilrettelagt for bad med sluk og avløpsrør. Det gjøres ingen endringer i byggets utstrekning eller bærende konstruksjoner, og det settes inn en dør ved foten av trappen til underetasjen. Hele underetasjen har enhetlig utforming med hensyn til tak, vegger og gulv.

Produkter og materialer

Dører Innvendige dører

Antall: 1

Dør ved foten av trappen som bygges/kasses inn i underetasjen

Innvendig dør for avgrensning av underetasjen

Vinduer Åpningsvindu

🧱 tre/alu ramme antatt

Antall: 4

Eksisterende vinduer 120x120 cm og 160x120 cm (fastkarm + åpningsdel), nytt vindu 60x120 cm som åpnes innover

Vinduer i underetasjen for lys, luft og rømningsvei

Dører Ytterdør

Antall: 1

Regulær inngangsdør på nordsiden

Inngangsdør til underetasjen

Tømrer Innredning og dørkassering

Innsetting av dør ved trapp, innredning av rom i underetasjen med bad, gang, soverom og kontor

Tømrerarbeid for innredning av bruksendret underetasje

Ventilasjon Mekanisk ventilasjon med avtrekk

Antall: 1

Vifte/ventilasjon med uttak mot nord for luktavtrekk fra teknisk rom

Ventilasjon i underetasjen for luftutskifting og luktfjerning

Gulv Betonggulv med oppgraving

🧱 Betong

Betonggulv i teknisk rom pigget opp for avløpsrørinstallasjon

Betonggulv i teknisk rom tilrettelagt for VVS-arbeider

VVS Varmtvannstank og avløpsrør

Antall: 1

Varmtvannstank i teknisk rom, avløpsrør koblet til kloakk-kum, sluk med grenrør for fremtidig bad

VVS-installasjoner i teknisk rom for varmtvann og avløp

Bad Bad innredning og installasjon

Antall: 1

Bad på 3.5 m² med sluk, vann og avløp, teknisk rom tilrettelagt for bad

Bad i underetasjen med nødvendig VVS-installasjoner

Plantegning

Enebolig 189.1 m²

Etasje 0 52.0 m²

Rom Areal Vinduer Dører
Stue / Kjøkken 26.0 m² 1 1
Kontor 5.3 m² 0 1
Sov 7.3 m² 1 1
Bad 3.5 m² 0 1
Gang 2.5 m² 0 0
Stue U01 29.1 m² 1 1
Kjellerrom U02 28.7 m² 0 1

Etasje -1 52.0 m²

Rom Areal Vinduer Dører
Stue / H/Kjøkken 26.0 m² 1 1
Kontor / Sov 5.3 m² 0 1
Sov 7.3 m² 0 1
Bad 3.5 m² 0 1
Gang 2.5 m² 0 1

Etasje 1 85.1 m²

Rom Areal Vinduer Dører
Stue 101 36.7 m² 4 1
Kjøkken 102 12.0 m² 0 1
Hall 103 6.5 m² 0 2
Sov 104 13.9 m² 1 1
Bad 105 4.9 m² 0 1
Vask 106 2.3 m² 0 1
WC/Dusj 107 2.5 m² 0 1
Sov 108 20.4 m² 1 1
Bod 109 6.1 m² 0 1
ARB 110 13.6 m² 1 1

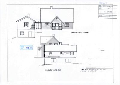
Fasader

Enebolig

Øst
Materiale
Tre
Taktype
Saltak
Vinduer
7
Dører
0
Balkonger
1
Synlige etasjer
2
Nord
Materiale
Tre
Taktype
Saltak
Vinduer
4
Dører
1
Synlige etasjer
2

Hendelser

30.03.2026 Tilleggsopplysninger - søknad om bruksendring fra tilleggsdel til hoveddel - 47/239 - Kjølnekløva 2
30.03.2026 Tilleggsopplysninger - søknad om bruksendring fra tilleggsdel til hoveddel - 47/239 - Kjølnekløva 2
30.03.2026 Behov om ytterligere opplysninger - søknad om bruksendring fra tilleggsdel til hoveddel - 47/239 - Kjølnekløva 2
20.01.2026 Søknad - bruksendring - tilleggsdel til hoveddel - 47/239 - Kjølnekløva 2