ChangeOfUse UnderBehandling Enebolig

Bruksendring med fasadeendring og terrasse på Kjushagen 10

📍 Kjushagen 10 , 2019 SKEDSMOKORSET

Nøkkelinfo

Sakstype
Bruksendring
Bygningstype
Enebolig
Bruksareal
7 m²
Boenheter
1
Kommune
Lillestrøm
Fylke
Akershus
Gnr / Bnr
21 / 9
Saksnummer
25/23093
Fase
Under behandling

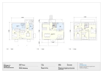
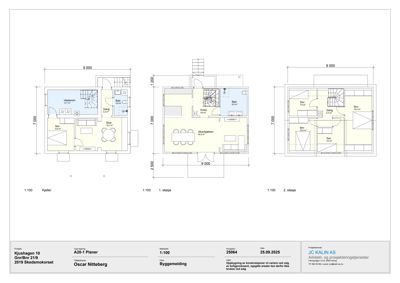
Om byggesaken

Tiltaket omfatter bruksendring av kjellerarealer i en eksisterende enebolig, med etablering av ny utvendig trappeadkomst til kjeller, lysgraver og terrasse. Det bygges en ny trapp og kjellernedgang på boligens nordside, samt en terrasse med rekkverk tilpasset husets arkitektur. Fasadeendringene inkluderer justering av vinduer og dører for å forbedre byggets uttrykk og funksjonalitet, med materialbruk i tre og saltak med teglstein. Tiltaket er tilpasset eksisterende bygningsvolum og landskap, og ligger innenfor byggegrense mot ravine med dispensasjon. Totalt nytt bebygd areal er ca. 7,4 m², og tiltaket forbedrer tilgjengelighet og estetikk uten vesentlig terrenginngrep.

Produkter og materialer

Fasade Fasadeendring med vinduer og dører

🧱 Tre kledning, trevinduer

Justering av vindusformater og plassering, smale spiler i treverk på rekkverk tilpasses husets opprinnelige trekledning

Endring av fasader med nye vinduer og dører, samt rekkverk i tre

Maling Maling av rekkverk

🧱 Maling i samme farge som huset

Rekkverk skal males i samme farge som husets fasade for estetisk tilpasning

Overflatebehandling av nytt rekkverk

Trapper Utvendig trapp til kjeller

🧱 Tre

Antall: 1

Trapp og kjellernedgang på boligens nordside, fundamentert uten terrenginngrep i ravine

Ny utvendig trapp som gir adkomst til kjeller

Grunnarbeid Fundamentering for trapp

Fundamentering for utvendig trapp uten inngrep i ravine

Grunnarbeid for trapp og kjellernedgang

Terrasse Terrasse med rekkverk

🧱 Tre

Antall: 1

Terrasse med rekkverk i smale trespiler, tilpasset husets arkitektur og farge

Ny terrasse på eksisterende tomt

Tømrer Bygging av terrasse og rekkverk

🧱 Tre

Bygging av terrasse og rekkverk i tre, tilpasset eksisterende bolig

Tømrerarbeid for terrasse og rekkverk

Fasader

Enebolig

Vest
Materiale
Tre
Taktype
Saltak
Vinduer
4
Dører
0
Balkonger
1
Synlige etasjer
2
Nord
Materiale
Tre
Taktype
Saltak
Takmat.
Tegl
Vinduer
2
Dører
1
Synlige etasjer
1
Øst
Materiale
Tre
Taktype
Saltak
Vinduer
4
Dører
0
Balkonger
1
Synlige etasjer
2
Sør
Materiale
Tre
Taktype
Saltak
Takmat.
Tegl
Vinduer
6
Dører
1
Balkonger
1
Synlige etasjer
2

Hendelser

10.04.2026 25/23093-16 21/9 Svar til mangelbrev
25.03.2026 25/23093-15 21/9 Tiltak tilpasses anbefalinger fra fylkeskommune
10.03.2026 25/23093-14 21/9 Tilpasning av tiltak
09.03.2026 25/23093-13 21/9 Uttalelse til søknad om dispensasjon fra LNF-formål for etablering av kjellernedgang, lysgraver og terrasse
06.03.2026 25/23093-12 21/9/0/0 Kjushagen 10 - Frist for komplettering av søknad utløpt
09.02.2026 25/23093-10 21/9/0/0 Kjushagen 10 - Uttalelse til søknad om dispensasjon for kjellernedgang, lysgraver og terrasse
03.02.2026 25/23093-9 21/9, Kjushagen 10, anmodning om uttalelse til søknad om kjellernedgang, terrasse og lysgraver - Naturmangfold
03.02.2026 25/23093-7 21/9, Kjushagen 10, anmodning om uttalelse til søknad om kjellernedgang, lysgraver og terrasse - Kulturmiljø
03.02.2026 25/23093-8 21/9, Kjushagen 10, mangelbrev til søknad om bruksendring med fasadeendring
09.12.2025 25/23093-4 21/9 Supplering av søknad