ChangeOfUse Igangsettingstillatelse Enebolig

Bruksendring, tilbygg og fasadeendring på Kobbervikdalen 144

📍 Kobbervikdalen 144 , 3036 DRAMMEN

Nøkkelinfo

Sakstype
Bruksendring
Bygningstype
Enebolig
Bruksareal
194 m²
Boenheter
2
Kommune
Drammen
Fylke
Buskerud
Gnr / Bnr
33 / 4
Saksnummer
24/41986
Fase
Igangsettingstillatelse

Om byggesaken

Prosjektet omfatter bruksendring av underetasjen i en enebolig til en hybelenhet med eget bolignummer, samt tilbygg og fasadeendringer. Underetasjen får nye rom som bad, stue og kjøkken, med inngrep i bærende konstruksjoner hvor det monteres en stålbjelke. Fasadeendringene inkluderer innsetting av nye vinduer og dører, samt senking av terreng for å blottlegge kjellerveggen på øst- og nordsiden. Det bygges også et lite overbygd tak over eksisterende terrasse som overskrider regulert byggegrense, med dispensasjon gitt. Totalt areal for eneboligen er ca. 194 m², med tilbygg på ca. 8 m² og endret BYA til 176,3 m². Tiltaket inkluderer også oppgradering av våtrom og tekniske installasjoner.

Produkter og materialer

Bad Våtromsarbeid og membran

Membranarbeid og våtromsoppgradering i kjellerbad og bad i 1. etasje

Våtromsarbeid med membran i bad

Dører Ytterdør og balkongdør

🧱 Tre eller glassdør

Antall: 5

Nye dører i fasadeendring, inkludert erstatning av inngangsdør med vindu og balkongdør med vindu

Nye ytterdører og balkongdører i fasadeendring

Tømrer Innvendige vegger og konstruksjoner

🧱 Tre

Oppføring av nye vegger i kjeller for hybel, tilbygg og fasadeendringer

Tømrerarbeid for nye konstruksjoner og tilbygg

Stål Bærende stålbjelke HEB 200x200

🧱 Stål

Antall: 1

Montering av bærende stålbjelke i underetasje for inngrep i bærende konstruksjoner

Bærende konstruksjon med stålbjelke i kjeller

Grunnarbeid Terrengarbeid

Senking av terreng inntil 1,46 m for blottlegging av kjellervegg, terrengendring inntil 50 cm

Terrengarbeid for tilpasning av fasade og kjeller

Fasade Trepanel

🧱 Tre

Fasadeendring med ny kledning og senking av terreng for blottlegging av kjellervegg

Trepanel fasade med tilpasning til ny terrenghøyde

Vinduer Fasadevindu

🧱 Tre med 3-lags energiglass

Antall: 14

Nye vinduer i fasadeendring, inkludert vindu 100x100, 100x80, 120x120 cm

Nye fasadevinduer i tre for øst, nord, vest og sør fasader

VVS Rørleggerarbeid

Oppgradering av våtrom og rørinstallasjoner i kjeller og øvrige etasjer

Rørleggerarbeid for bad og kjøkken i bruksendret underetasje

Elektro El-installasjoner

Elektriske installasjoner i forbindelse med bruksendring og tilbygg

Oppgradering av elektriske anlegg

Tak Saltak og lite takoverbygg

🧱 Tre med taktekking

Antall: 1

Saltak på hovedbygg, lite tak over eksisterende terrasse som overskrider byggegrense

Takendringer med saltak og lite takoverbygg over terrasse

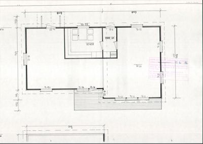
Plantegning

Enebolig 194.2 m²

Etasje -1 39.7 m²

Rom Areal Vinduer Dører
Bad 0-1 4.1 m² 0 1
Stue / Kjøkken 0-2 32.7 m² 2 1

Etasje 1 84.3 m²

Rom Areal Vinduer Dører
Sov 1-1 10.6 m² 1 1
Bad 1-2 8.0 m² 0 1
Hall / Gang 1-3 13.9 m² 0 2
Kjøkken 1-4 11.0 m² 1 1
Stue 1-5 40.9 m² 3 2

Etasje 2 30.5 m²

Rom Areal Vinduer Dører
Sov 1-6 10.5 m² 1 1
WC 1-7 3.4 m² 0 1
Hall / gang 1-8 5.9 m² 0 2
Sov 1-9 10.7 m² 1 1

Etasje 0 39.7 m²

Rom Areal Vinduer Dører
Bad 0-1 4.1 m² 0 1
Stue / Kjøkken 0-2 32.7 m² 1 2

Hovedbygg 60.0 m²

Etasje 1 60.0 m²

Rom Areal Vinduer Dører
Stue 101 35.2 m² 3 2
Kjøkken 102 12.5 m² 1 1
Vaskerom 103 2.3 m² 0 1

Fasader

Enebolig

Øst
Materiale
Tre
Taktype
Saltak
Vinduer
4
Dører
2
Synlige etasjer
2
Nord
Materiale
Tre
Taktype
Saltak
Vinduer
3
Dører
2
Synlige etasjer
2
Sør
Materiale
Tre
Taktype
Saltak
Vinduer
1
Dører
0
Balkonger
1
Synlige etasjer
2
Vest
Materiale
Tre
Taktype
Saltak
Vinduer
2
Dører
1
Synlige etasjer
1
Ukjent
Taktype
Saltak
Høyde
2.1 m
Mønehøyde
4.0 m
Vinduer
0
Dører
0
Synlige etasjer
2

Hendelser

13.04.2026 Kobbervikdalen 144 Supplering av søknad 33/4 - Endring av utførende - Erklæring om ansvarsrett
27.08.2025 Kobbervikdalen 144, igangsettingstillatelse for bruksendring av underetasje, fasadeendring og inngrep i bærende konstruksjoner
21.08.2025 Kobbervikdalen 144 Søknad om igangsettingstillatelse 33/4
11.03.2025 33/4, Kobbervikdalen 144, bruksendring av kjeller til en hybel, nytt bolignummer
10.03.2025 Kobbervikdalen 144, rammetillatelse for bruksendring av underetasje, fasadeendring og inngrep i bærende konstruksjoner med dispensasjon fra regulert byggegrense
07.03.2025 Kobbervikdalen 144, avklaring av tiltakets art
17.02.2025 Kobbervikdalen 144 Supplering av søknad 33/4
13.02.2025 Kobbervikdalen 144, vi trenger flere opplysninger for å behandle søknaden din om bruksendring, tilbygg, fasadeendring og dispensasjon fra regulert byggegrense
18.11.2024 Kobbervikdalen 144 Søknad om rammetillatelse 33/4