ChangeOfUse UnderBehandling Enebolig

Bruksendring av kjeller i enebolig, Korvaldveien 51

📍 Korvaldveien 51 , 3050 MJØNDALEN

Nøkkelinfo

Sakstype
Bruksendring
Bygningstype
Enebolig
Bruksareal
306 m²
Boenheter
1
Kommune
Drammen
Fylke
Buskerud
Gnr / Bnr
214 / 314
Saksnummer
24/42171
Fase
Under behandling

Om byggesaken

Bruksendring av kjelleretasjen i en eksisterende enebolig på Korvaldveien 51, hvor kjelleren omgjøres fra tilleggsdel til integrert del av hovedboenheten uten etablering av egen boenhet. Kjelleren har rom som kjøkken, stue, soverom, bad, vaskerom og gang med samlet areal på ca. 126 m². Det er etablert ny innvendig trapp fra 1. etasje til kjeller, og en utvendig trapp fungerer som rømningsvei. Det er gjort mindre utvidelse av inngangspartiet for bedre intern løsning. Fasader er i tre med saltak og tegl takmateriale. Tiltaket krever dispensasjon for avstand til nabogrense og vurdering av tekniske krav, uteoppholdsareal, blågrønn faktor og geoteknisk sikkerhet i aktsomhetsområde for kvikkleire.

Produkter og materialer

Trapper Innvendig trapp

Antall: 1

Ny innvendig trapp mellom 1. etasje og kjeller

Trapp for intern forbindelse mellom kjeller og 1. etasje

Elektro Elektriske installasjoner

Elektrisk anlegg for belysning og strøm i kjeller og 1. etasje

Gulv Innvendige gulv i kjeller og 1. etasje

Gulv i kjeller og 1. etasje for boligrom

Grunnarbeid Terrengarbeid og fundamentering

Begrenset utgraving for ny trapp, etablert mur på tomt

Grunnarbeid for trapp og mur, vurdert geoteknisk sikker

Trapper Utvendig rømnings trapp

Antall: 1

Eksisterende utvendig trapp som rømningsvei, plassert nær nabogrense med dispensasjonssøknad

Trapp som fungerer som rømningsvei fra kjeller

VVS Sanitærinstallasjoner

Bad, vaskerom og kjøkken med nødvendig VVS-installasjoner

Tak Saltak med tegl

🧱 Tegl

Saltak med tegl på sør, øst og vest fasade, flatt tak med tegl på nordfasade

Taktekking med tegl på saltak og flatt tak

Vinduer Fasadevindu i tre

🧱 Tre

Antall: 10

Vinduer i kjeller og 1. etasje, størrelser varierende, inkludert 100x100, 120x120, 170x100 cm

Fasadevinduer i tre for naturlig lys og ventilasjon

Fasade Tre kledning

🧱 Tre

Tre kledning på alle fasader (nord, sør, øst, vest)

Fasade med tre kledning

Dører Ytterdører og innerdører

Antall: 20

Dører til rom og inngangspartier i kjeller og 1. etasje

Dører for adkomst og romavgrensning

Terrasse Terrasse mot sør

Antall: 1

Terrasse på 18 m² mot sørfasade, høyde fra terreng angitt 0,7-0,8 m

Utendørs terrasse for opphold

Maling Utvendig og innvendig maling

Maling av fasade og innvendige flater for ferdigstillelse

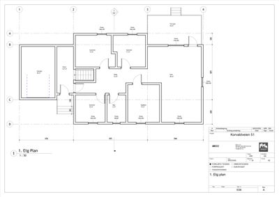
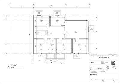
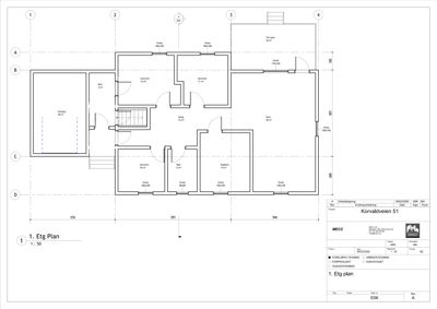
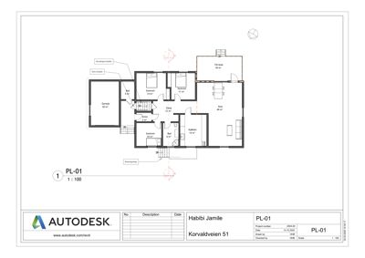
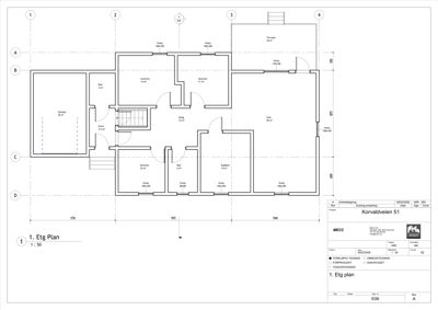
Plantegning

Enebolig 306.3 m²

Etasje 1 180.3 m²

Rom Areal Vinduer Dører
Garasje 101 20.0 m² 0 1
Entré 102 8.7 m² 0 2
Soverom 103 14.0 m² 1 1
Soverom 104 11.0 m² 1 1
Gang 105 12.0 m² 0 3
Stue 106 40.0 m² 2 1
Kjøkken 107 14.0 m² 1 1
Soverom 108 10.0 m² 1 1
Bad 109 6.0 m² 1 1
Stue 110 40.0 m² 2 1
Terrasse 111 18.0 m² 1 1
Garasje 001 20.0 m² 1 1
Bod 002 7.0 m² 0 1
Trapperom 003 3.0 m² 0 2
Soverom 004 14.0 m² 1 1
Soverom 005 11.0 m² 1 1
Gang 006 12.0 m² 0 4
Stue 007 40.0 m² 2 2
Kjøkken 008 14.0 m² 1 2
Soverom 009 10.0 m² 1 1
Bad 010 6.0 m² 0 1
Entre 011 2.0 m² 0 1

Etasje 0 126.0 m²

Rom Areal Vinduer Dører
Kjøkken 001 10.0 m² 0 1
Soverom 002 9.0 m² 0 1
Stue 003 26.0 m² 1 1
Gang 004 16.0 m² 0 3
Bod 005 6.0 m² 0 1
Bad 006 12.0 m² 0 1
Vaskerom 007 6.0 m² 0 1
Entre 008 7.0 m² 0 2
Soverom 009 19.0 m² 1 1
Kjøkken 010 14.0 m² 1 2
Stue 011 39.0 m² 2 2

Fasader

Enebolig

Sør
Materiale
Tre
Taktype
Saltak
Takmat.
Tegl
Høyde
5.0 m
Mønehøyde
7.0 m
Vinduer
1
Dører
0
Balkonger
1
Synlige etasjer
1
Nord
Materiale
Tre
Taktype
Flatt tak
Takmat.
Tegl
Høyde
5.7 m
Mønehøyde
7.0 m
Vinduer
4
Dører
1
Synlige etasjer
1
Vest
Materiale
Tre
Taktype
Saltak
Høyde
5.7 m
Vinduer
1
Dører
1
Balkonger
1
Synlige etasjer
1
Øst
Materiale
Tre
Taktype
Saltak
Vinduer
1
Dører
1
Synlige etasjer
1

Hendelser

10.04.2026 Korvaldveien 51, oppdaterte tegninger samt redegjørelse
12.03.2026 Korvaldveien 51, vi trenger flere opplysninger for å behandle søknaden din
02.03.2026 Korvaldveien 51, reviderte tegninger og endring av søknad
09.02.2026 Korvaldveien 51, utsatt frist
05.02.2026 Korvaldsveien 51, ber om utsettelse av frist
18.12.2025 Korvaldveien 51, vi vurderer å avslå søknaden din
06.05.2025 Korvaldveien 51, innsendt dokumentasjoner
14.04.2025 214/314 , Korvaldveien 51, Svar på nabomerknad - Dispensasjonssøknad
09.04.2025 Korvaldveien 51, etterspurt dokumentasjon
24.03.2025 Korvaldveien 51, reviderte dokumenter til søknad om bruksendring
05.03.2025 Korvaldveien 51, vi trenger flere opplysninger for å behandle søknaden din
03.03.2025 Korvaldveien 51, kvittering av nabovarsling for despensasjonssøknaden
03.03.2025 Korvaldveien 51, mottatt dispensasjonssøknad
21.02.2025 Korvaldveien 51, varsel om avvisning av søknad om bruksendring
14.02.2025 Korvaldveien 51, nabomerknad
10.01.2025 Korvaldveien 51, etterspurt dokumentasjon
10.01.2025 Korvaldveien 51, innsendt dokumentasjon
04.12.2024 Korvaldveien 51, etterspurt dokumentasjon
04.12.2024 Korvaldveien 51, innsendt dokumentasjon
19.11.2024 Korvaldveien 51, søknad om tillatelse til tiltak uten ansvarsrett