ChangeOfUse UnderBehandling Enebolig

Bruksendring fra bedehus til helårsbolig i Langøyveien 24

📍 Langøyveien 24 , 3783 KRAGERØ SKJÆRGÅRD

Nøkkelinfo

Sakstype
Bruksendring
Bygningstype
Enebolig
Bruksareal
140 m²
Boenheter
1
Kommune
Kragerø
Fylke
Telemark
Gnr / Bnr
24 / 26
Saksnummer
2025/4215
Fase
Under behandling

Om byggesaken

Eksisterende bygning på 139,8 m² BYA fordelt på én hovedetasje med krypkjeller og loftsetasje, tidligere brukt som bedehus, endres til helårsbolig. Bygget har en romstruktur som inkluderer kjøkken, oppholdsrom, soverom og sanitærrom. Det skjer ingen utvidelse av bygningsmassen, ingen terrenginngrep eller endring av byggets ytre uttrykk. Eiendommen på 654,5 m² ligger i LNF-område, og det er gitt dispensasjon for bruksendringen. Bygningen har saltak med teglstein, trekledning, flere vinduer og dører, og pipe. Det er etablert parkering på tomten. Tekniske krav etter TEK17 søkes unntak fra i forhold til ventilasjon, energi og tilgjengelighet på bad. VA-løsning skal dokumenteres og godkjennes før igangsetting.

Produkter og materialer

Fasade Trekledning

🧱 Tre

Antall: 1

Trekledning på alle fasader

Eksisterende trekledning opprettholdes

Bad Våtrom

Antall: 3

Eksisterende bad og toalett oppgraderes, unntak fra full tilgjengelighetsstandard søkes

Bad og toalett tilpasses boligformål med unntak fra enkelte TEK17-krav

Vinduer Fasadevindu

🧱 Tre med 3-lags glass

Antall: 14

Vinduer i tre, 3-lags energiglass, fordelt på fasader nord-vest (1), sør-vest (4), nord-øst (4), sør-øst (2) og i etasjer

Eksisterende vinduer i tre skal benyttes eller tilpasses for boligbruk

Dører Ytterdører

🧱 Tre

Antall: 9

Ytterdører i tre fordelt på fasader og etasjer, inkludert inngangsdører og dører til uteområder

Eksisterende ytterdører tilpasses boligbruk

Tømrer Bygningsmessige tilpasninger

🧱 Tre

Tilpasning av eksisterende bygningsmasse til boligformål uten utvidelse

Innvendige ombygginger og tilpasninger for boligbruk

VVS Sanitæranlegg

Ny eller oppgradert vann- og avløpsløsning må dokumenteres og godkjennes, inkludert utslippstillatelse

Privat vann- og avløpsanlegg skal etableres eller dokumenteres godkjent

Grunnarbeid Ingen nye grunnarbeider

Ingen terrenginngrep eller endring i plassering av bygget

Eksisterende grunnforhold opprettholdes uten nye inngrep

Parkering Biloppstillingsplasser

Antall: 1

Eksisterende parkeringsareal på 36 m² opprettholdes, dekker krav til 1-2 biloppstillingsplasser

Parkering på egen tomt for én boenhet

Gulv Eksisterende gulv

Eksisterende gulv beholdes, ingen oppgradering til ny standard er påkrevd

Gulv beholdes som del av bruksendringen

Ventilasjon Naturlig ventilasjon med mekanisk avtrekk

Naturlig ventilasjon supplert med mekanisk avtrekk i våtrom og kjøkken, unntak fra krav om balansert ventilasjon

Ventilasjonsløsning tilpasses eksisterende bygning uten omfattende inngrep

Tak Saltak med teglstein

🧱 Teglstein

Antall: 1

Saltak med teglstein som takmateriale

Eksisterende saltak med teglstein opprettholdes

Brannvern Røykvarslere og manuelt slokkeutstyr

Seriekoblede røykvarslere i hver etasje og manuelt slokkeutstyr (6 kg ABC brannslokker eller brannslange)

Brannvern installeres i henhold til TEK17 for bolig

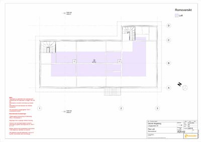
Plantegning

Enebolig 280.8 m²

Etasje -1 105.0 m²

Rom Areal Vinduer Dører
Gang 101 12.5 m² 0 2
Bad 102 8.5 m² 0 1
Vaskerom 103 6.0 m² 0 1
Kjeller 104 78.0 m² 1 1

Etasje 1 120.5 m²

Rom Areal Vinduer Dører
Stue 201 45.0 m² 2 1
Kjøkken 202 18.0 m² 1 1
Spisestue 203 12.0 m² 1 1
Gang 204 8.5 m² 0 2
Bad 205 6.0 m² 0 1
Toalett 206 3.5 m² 0 1
Soverom 207 15.0 m² 1 1
Soverom 208 12.0 m² 1 1
Soverom 209 10.5 m² 1 1
Sov 101 14.3 m² 1 1
Sov 102 17.5 m² 1 1
Gang 103 9.5 m² 0 2
Entre 104 7.2 m² 0 1
Tekn. rom 105 3.7 m² 0 1
Stue/Spis 106 34.1 m² 3 1
Entre 107 5.0 m² 0 1
WC 110 1.0 m² 0 1
Gang 111 5.5 m² 0 1
Gang 112 3.2 m² 0 1
Dusj 113 2.2 m² 0 1
Bad 108 2.1 m² 0 1
Sovegang 109 12.1 m² 0 2
Sovegang 114 8.4 m² 0 2
Sovegang 115 7.8 m² 0 2
Sovegang 116 7.2 m² 0 2
Sovegang 117 6.5 m² 0 2
Sovegang 118 5.9 m² 0 2
Sovegang 119 5.3 m² 0 2
Sovegang 120 4.8 m² 0 2
Sovegang 121 4.2 m² 0 2
Sovegang 122 3.6 m² 0 2
Sovegang 123 3.0 m² 0 2
Sovegang 124 2.4 m² 0 2
Sovegang 125 1.8 m² 0 2
Sovegang 126 1.2 m² 0 2
Sovegang 127 0.6 m² 0 2

Etasje 2 55.3 m²

Rom Areal Vinduer Dører
Soverom 301 25.0 m² 1 1
Bad 302 10.0 m² 0 1
Gang 303 20.3 m² 0 1
Løft 201 90.0 m² 0 0

Fasader

Enebolig

Nord-Vest
Materiale
Tre
Taktype
Saltak
Takmat.
Tegl
Vinduer
1
Dører
1
Synlige etasjer
1
Sør-Vest
Materiale
Tre
Taktype
Saltak
Takmat.
Tegl
Vinduer
4
Dører
1
Synlige etasjer
1
Nord-Øst
Materiale
Tre
Taktype
Saltak
Takmat.
Tegl
Vinduer
4
Dører
1
Synlige etasjer
2
Sør-Øst
Materiale
Tre
Taktype
Saltak
Takmat.
Tegl
Vinduer
2
Dører
1
Balkonger
1
Synlige etasjer
2

Hendelser

20.04.2026 Supplering av søknad; nabovarsel og VA-løsning - Gbnr. 24/26 - Langøyveien 24 - Søknad om bruksendring fra bedehus til bolig. Dispensasjon
09.03.2026 Saksframlegg - Gbnr. 24/26 - Langøyveien 24 - Søknad om bruksendring fra bedehus til bolig. Dispensasjon
04.03.2026 Bekreftelse på mottatt søknad - Gbnr. 24/26 - Langøyveien 24 - Søknad om bruksendring fra bedehus til bolig. Dispensasjon
04.03.2026 Søknad om rammetillatelse - Gbnr. 24/26 - Langøyveien 24 - Søknad om bruksendring fra bedehus til bolig. Dispensasjon
21.01.2026 Referat forhåndskonferanse - Gbnr. 24/26 - Langøyveien 24 - Forhåndskonferanse om bruksendring fra bedehus til helårsbolig
21.01.2026 Fakturagrunnlag - Gbnr. 24/26 - Langøyveien 24 - Forhåndskonferanse om bruksendring fra bedehus til fritidsbolig - Forhåndskonferanse
03.12.2025 Gbnr. 24/26 - Langøyveien 24 - Forhåndskonferanse om bruksendring fra bedehus til fritidsbolig
01.12.2025 Gbnr. 24/26 - Langøyveien 24 - Forhåndskonferanse om bruksendring fra bedehus til fritidsbolig
19.11.2025 Gbnr. 24/26 - Langøyveien 24 - Forhåndskonferanse om bruksendring fra bedehus til fritidsbolig
28.10.2025 Anmodning om forhåndskonferanse - Gbnr. 24/26 - Langøyveien 24 - Forhåndskonferanse om bruksendring fra bedehus til fritidsbolig
28.10.2025 Bekreftelse på mottatt henvendelse - Gbnr. 24/26 - Langøyveien 24 - Forhåndskonferanse om bruksendring fra bedehus til fritidsbolig