ChangeOfUse UnderBehandling Enebolig

Bruksendring og fasadeendring på enebolig, Melhusvegen 804

📍 Melhusvegen 804 , 7224 MELHUS

Nøkkelinfo

Sakstype
Bruksendring
Bygningstype
Enebolig
Bruksareal
240 m²
Boenheter
2
Kommune
Melhus
Fylke
Trøndelag - Trööndelage
Gnr / Bnr
87 / 4
Saksnummer
2025/2672
Fase
Under behandling

Om byggesaken

Enebolig på 240 m² BRA med omfattende bruksendring og fasadeendring. Bygget har tre etasjer inkludert garasje og vedbod i underetasje, hovedetasje med kjøkken, stue, spisestue, bad, hagestue og soverom, samt balkong og altan. Det er etablert en separat utleiedel i kjeller med egen inngang, kjøkken og bad, som ikke er formelt godkjent. Fasadeendringer inkluderer tilbygg av hagestue, balkong, inngangsparti, vedbod og trapp til terrasse. Det er også oppført en støttemur mot jernbanen, som er ulovlig og ikke godkjent. Bygningen har saltak med betongtakstein, trepanel på fasader og vinduer med 2- og 3-lags glass. Innvendig er det flere oppgraderinger med nye våtrom, kjøkken og tekniske installasjoner. Tiltakene er søknadspliktige og det foreligger ulovlighetsoppfølging på grunn av manglende godkjenning og dokumentasjon.

Produkter og materialer

Vinduer Fasadevindu og takvindu

🧱 Trekarmer med 2- og 3-lags glass, PVC karmer på enkelte vinduer

Antall: 12

Vinduer fra 2005 og nyere, noen med støydempende glass

Vinduer i alle himmelretninger, inkludert takvinduer på hems

Mur Støttemur mot jernbanen

🧱 Betong og stablestein

Antall: 1

Støttemur oppført i 2017, ikke godkjent, krever dokumentasjon og søknad

Støttemur mot jernbanen som er ulovlig og ikke godkjent

Ventilasjon Mekanisk avtrekk fra våtrom og kjøkken

Mekanisk avtrekk via vifter i våtrom og kjøkken, naturlig ventilasjon via ventiler og åpne vinduer

Ventilasjonssystem med mekanisk avtrekk og naturlig ventilasjon

Varmepumpe Luft-til-luft varmepumpe

Antall: 2

Luft-til-luft varmepumpe i 1. etasje og i utleiedel

Oppvarming med luft-til-luft varmepumper

Elektro Elektrisk anlegg med nye sikringsskap

Elektrisk anlegg skiftet ut, nye sikringsskap i sokkel, 1. etasje og garasje, elbil-lader installert

Oppgradert elektrisk anlegg med elbil-lader

Bad Våtrom med flis og membran

🧱 Flis, membran, varmekabler, glassvegger

Antall: 3

Bad i 1. etasje, 2. etasje og utleiedel, alle med flis og varmekabler, vegghengt toalett, glassvegger i dusj

Oppgraderte bad med moderne innredning og mekanisk avtrekk

Terrasse Treterrasse med rekkverk

🧱 Tre

Antall: 1

Terrasse på bakkeplan med lysthus, altan med rekkverk i 1. etasje

Utendørs terrassearealer med rekkverk og lysthus

Tak Saltak med betongstein

🧱 Betongstein, papptekking på hagestue

Taktekking på hovedhus og garasje med betongstein, hagestue med papptekking

Saltak med betongstein og papptekking på tilbygg

Gulv Laminat, flis med varmekabler

🧱 Laminat, flis, påstøp med varmekabler

Laminat i stue og soverom, flis med varmekabler i våtrom og kjøkken

Innvendige gulv med laminat og flis med varmekabler i våtrom

Garasjeport Motordrevne leddporter i aluminium

🧱 Aluminium

Antall: 2

To motordrevne leddporter med fjernstyring

Isolert garasje med elektriske porter

Trapper Innvendig trapp i stål med glasstrinn, utvendige trapper i betong og flis

🧱 Stål, glass, betong, flis

Antall: 2

Hovedtrapp i stål med glasstrinn, utvendig trapp ved inngang med flis, terrengtrapp til terrasse

Innvendige og utvendige trapper med ulike materialer

Fasade Tilbygg hagestue, balkong, inngangsparti, vedbod, trapp til terrasse

🧱 Trepanel, glass, betong

Fasadeendringer i alle himmelretninger, saltak med betongstein, trepanel, glassrekkverk på balkong

Fasadeendringer med tilbygg og balkong, ny trapp og vedbod under rampe

Maling Maling av fasade og innvendige overflater

🧱 Maling

Malt trepanel utvendig, malte MDF-plater og panel innvendig

Maling av fasade og innvendige vegger og himlinger

Isolasjon Etterisolering av yttervegger

🧱 Isolasjon i veggkonstruksjon

Yttervegger etterisolert med ny vindtetting og musebånd

Etterisolering av yttervegger i forbindelse med fasadeendring

Dører Ytterdører og balkongdører

🧱 Isolerte tredører, aluminium leddporter i garasje

Antall: 5

Hoveddør, dør til utleiedel, dør til garasje og vedbod, balkongdør

Isolerte ytterdører og balkongdører, garasjeporter med fjernstyring

Kjøkken Kjøkkeninnredning med laminatfronter

🧱 Laminat, integrerte hvitevarer

Antall: 2

Hovedkjøkken og kjøkken i utleiedel, med integrert komfyr, oppvaskmaskin og ventilator

To kjøkkeninnredninger med laminatfronter og integrerte hvitevarer

VVS Vann- og avløpsrør i plast (rør i rør og PVC)

🧱 Plastrør

Nytt røropplegg i plast, lekkasjesikring med sensor og magnetventil på kjøkken

Oppgradert vann- og avløpssystem med lekkasjesikring

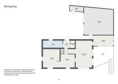
Plantegning

Enebolig 240.0 m²

Etasje 1 182.0 m²

Rom Areal Vinduer Dører
Entré 101 3.5 m² 0 3
Kjøkken 102 21.0 m² 1 1
Spisestue 103 13.0 m² 1 1
Stue 104 34.0 m² 2 2
Bad 105 9.5 m² 0 1
Hagestue 106 14.5 m² 1 1
Altan 107 24.0 m² 0 1
Kott 108 1.0 m² 0 1
Soverom 109 9.5 m² 1 1
Balkong 110 3.5 m² 0 1

Etasje 0 58.0 m²

Rom Areal Vinduer Dører
Garasje 001 53.5 m² 1 1
Vedbu 002 4.5 m² 0 1

Fasader

Enebolig

Vest
Materiale
Tre
Taktype
Saltak
Vinduer
4
Dører
1
Balkonger
1
Synlige etasjer
2
Sør
Materiale
Tre
Taktype
Saltak
Vinduer
3
Dører
0
Synlige etasjer
2
Nord
Materiale
Tre
Taktype
Saltak
Vinduer
2
Dører
1
Synlige etasjer
2

Hendelser

08.04.2026 Kopi - 202502713-13 - Melhus kommune - Nabo til jernbanen - Planering av tomt
24.10.2025 Vedrørende: Støttemur mot jernbanen ansvar og oppfølging - gnr/bnr 87/4
10.09.2025 Dovrebanen km. 528,275 - Melhus kommune - Melhusvegen 804 - Tiltak - Bruksendring og fasadeendring bygg - Gnr/bnr 87/4 - Ulovlighets oppfølging
03.09.2025 Ang. videre oppfølging i sak 2025/2672 gjeldende gnr/bnr 87/4 - Melhusvegen 804
26.08.2025 Svar på manglende dokumentasjon gjeldende utførte tiltak - Gnr/bnr 87/4
22.08.2025 Svar - Manglende dokumentasjon gjeldende utførte tiltak på gnr/bnr 87/4 - Melhusvegen 804
15.07.2025 Melhus kommune - Melhusvegen 804 - Tiltak - Bruksendring og fasadeendring bygg - Gnr/bnr 87/4 - Manglende dokumentasjon sendt fra BANE NOR SF
27.02.2025 Uttalelse fra Bane NOR - Melhusvegen 804 - Tiltak - Bruksendring og fasadeendring bygg - Gnr/bnr 87/4