ChangeOfUse UnderBehandling Enebolig

Bruksendring av kjellerrom i Mostugutua 8, Råholt

📍 Mostugutua 8 , 2070 RÅHOLT

Nøkkelinfo

Sakstype
Bruksendring
Bygningstype
Enebolig
Bruksareal
42 m²
Boenheter
1
Kommune
Eidsvoll
Fylke
Akershus
Gnr / Bnr
138 / 247
Saksnummer
2026/676
Fase
Under behandling

Om byggesaken

Bruksendring av kjellerrom i en enebolig på Mostugutua 8, Råholt, med omdisponering av sportsbod til soverom og hobby/trimrom til stue med kjøkkenkrok. Kjelleretasjen på ca. 42 m² får nye oppholdsrom uten endring av utvendige fasader. Det eksisterer en innvendig trapp som gir forbindelse til hovedetasjen. Rommene i kjelleren tilpasses boligformål med nødvendige innvendige endringer, men uten fysiske endringer i bærende konstruksjoner eller fasade. Totalt areal bolig ca. 100,8 m² over to etasjer med saltak og trekledning.

Produkter og materialer

Vegger Innvendig puss og maling

Innvendig puss, maling og listing for omdisponerte rom

Overflatebehandling av vegger i kjellerrom

Gulv Innvendig gulvbelegg

Oppgradering av gulv i kjellerrom til boligstandard

Gulvbelegg eller parkett for oppholdsrom i kjeller

Elektro Elektrisk anlegg

Elektrisk oppgradering i kjellerrom for boligbruk

Elektrisk installasjon tilpasset nye boligrom i kjeller

Dører Innvendige dører

Antall: 4

Dører i kjellerrom for nye soverom, stue og kjøkkenkrok

Innvendige dører til omdisponerte kjellerrom

Isolasjon Innvendig isolasjon

Isolasjon for oppvarmede kjellerrom

Isolasjon i vegger og tak for boligstandard i kjeller

Vinduer Fasadevindu

🧱 tre

Antall: 2

Eksisterende vinduer i kjellerrom, ingen nye vinduer eller endringer i fasade

Vinduer i kjellerrom beholdes uten endring

VVS Sanitærinstallasjoner

Dusjrom i kjeller oppgradert for boligformål

Oppgradering av våtrom i kjeller til boligstandard

Trapper Innvendig trapp

Antall: 1

Eksisterende innvendig trapp mellom kjeller og 1. etasje beholdes

Trapp som gir intern forbindelse mellom etasjer

Tømrer Innvendige lettvegger

🧱 tre

Oppføring av lettvegger for rominndeling i kjeller

Lettvegger for nye rom i kjeller

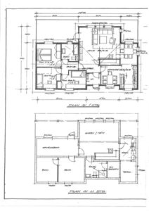
Plantegning

Enebolig 100.8 m²

Etasje 1 58.8 m²

Rom Areal Vinduer Dører
Stue 101 33.6 m² 3 2
Kjøkken 102 25.2 m² 1 1
Gang 103 5.0 m² 0 4
Sov 1 104 11.2 m² 1 1
Sov 2 105 9.6 m² 1 1
Sov 3 106 8.8 m² 1 1
Vaskerom 107 3.6 m² 0 1

Etasje 0 42.0 m²

Rom Areal Vinduer Dører
Hobby / Trim U01 18.0 m² 1 1
Sportbod U02 12.0 m² 0 1
Bod U03 10.0 m² 0 1
Bod U04 10.0 m² 0 1
Dusj U05 4.0 m² 0 1
Teknisk U06 8.0 m² 0 1
Stue 001 20.0 m² 1 1
Kjøkken 002 10.0 m² 1 1
Bod 003 12.0 m² 1 1

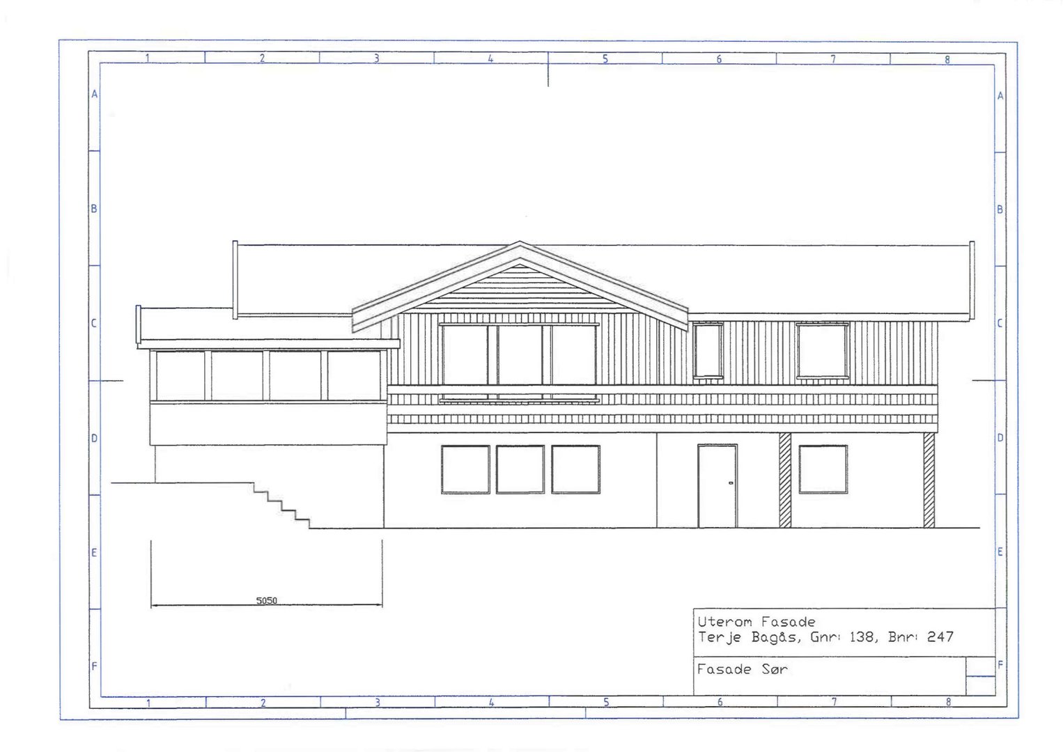
Fasader

Enebolig

Sør
Materiale
Tre
Taktype
Saltak
Vinduer
7
Dører
1
Balkonger
1
Synlige etasjer
2

Hendelser

16.04.2026 Gbnr. 138/247 - Søknad om bruksordning - Svar
10.02.2026 Gbnr. 138/247 - Bekreftelse på mottatt søknad om bruksendring
03.02.2026 Gbnr. 138/247 - Søknad om bruksendring kjeller