ChangeOfUse Rammetillatelse Enebolig

Bruksendring og fasadeendring på enebolig i Ole Tobias Olsens Vei 21

📍 Ole Tobias Olsens vei 21 , 8021 BODØ

Nøkkelinfo

Sakstype
Bruksendring
Bygningstype
Enebolig
Bruksareal
259 m²
Boenheter
1
Kommune
Bodø
Fylke
Nordland - Nordlánnda
Gnr / Bnr
41 / 309
Saksnummer
2026/6681
Fase
Rammetillatelse

Om byggesaken

Prosjektet omfatter bruksendring i sokkeletasje av en eksisterende enebolig med hybelleilighet, hvor flere rom i sokkelen endres fra tilleggsdel til hoveddel. Det inkluderer også en utvidelse av altan i 2. etasje mot sør, fasadeendringer på alle sider av huset med trekledning og saltak, samt oppføring av en støttemur for planering av terreng på boligens sørside. Totalt areal for boligen er ca. 259 m² fordelt på sokkel og 1. etasje. Fasaden består av tre med saltak, og bygningen har pipe og garasjeport. Det er én trapp i bygget. Prosjektet forbedrer uteområdet og boligfunksjonaliteten.

Produkter og materialer

Fasade Trekledning

🧱 Tre

Fasadeendring med trekledning på alle sider

Materialer og arbeid for oppgradering og endring av fasade med trekledning

VVS Sanitærinstallasjoner

Oppgradering av vann- og avløpsinstallasjoner i forbindelse med bruksendring av sokkel

VVS-arbeid for bad og våtrom i sokkel og øvrige deler

Bad Bad og våtrom

Antall: 2

Bad i sokkel (2.8 m² og 6.9 m²) og bad i 1. etasje (5.3 m²)

Oppgradering og tilpasning av bad i forbindelse med bruksendring

Gulv Innvendige gulv

Oppgradering av gulv i sokkel og øvrige rom i forbindelse med bruksendring

Materialer og arbeid for gulv i bruksendret sokkel

Elektro Elektriske installasjoner

Oppgradering av elektriske anlegg i sokkel og fasadeendringer

Elektriske arbeider i forbindelse med bruksendring og fasadeendring

Vinduer Fasadevindu

🧱 Tre eller aluminium ramme

Antall: 18

Vinduer fordelt på fasader øst (1), vest (1), nord (5), sør (7) og ukjent (3)

Nye eller endrede fasadevinduer i sokkel og 1. etasje

Mur Støttemur

🧱 Betong eller tilsvarende

Antall: 1

Støttemur for planering av terreng på boligens sørside, maks høyde 1,0 meter

Oppføring av støttemur for terrengplanering

Tømrer Innvendige konstruksjoner og endringer

🧱 Tre

Bruksendring i sokkel fra tilleggsdel til hoveddel, inkludert romoppdeling og tilpasning

Tømrerarbeid for bruksendring og tilpasning av rom i sokkel

Terrasse Utvidet altan og veranda

Antall: 2

Utvidelse av altan på 26 m² i 2. etasje mot sør, veranda på 29 m²

Utendørs terrasse- og altanarbeid for økt uteareal

Dører Ytterdører og balkongdører

🧱 Tre eller glass

Antall: 6

Dører på fasader vest (1), nord (1), sør (1), ukjent (2), og 1 dør i sokkel/hybel

Nye eller endrede ytterdører og balkongdører i bygget

Tak Saltak

🧱 Takstein eller tilsvarende

Saltak på hele bygget, gesimshøyde 6 m, mønehøyde 8.1 m

Taktekking og konstruksjon for saltak

Grunnarbeid Terrengarbeid

Planering av terreng med støttemur på boligens sørside

Grunnarbeid for støttemur og uteområde

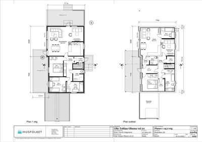
Plantegning

Enebolig 258.8 m²

Etasje 0 102.7 m²

Rom Areal Vinduer Dører
Hybel 001 24.3 m² 2 1
Kjellerstue 002 9.2 m² 1 1
Gang 003 2.5 m² 0 2
Bad 004 2.8 m² 0 1
Gang 005 8.5 m² 0 2
Bod 006 2.3 m² 0 1
Tekn. rom 007 1.7 m² 0 1
Sov 008 11.5 m² 1 1
Bod 009 3.3 m² 0 1
Bad 010 6.9 m² 0 1
Sov 011 6.0 m² 1 1
Garasje 012 20.9 m² 0 1
Hybel HYBEL 24.0 m² 1 1
Bod BOD 0.0 m² 0 1
Matrom MAT 0.0 m² 0 1
Entre ENTRE 0.0 m² 0 2
Vaskerom VASK 0.0 m² 1 1
WC/Dusj WC-DUSJ 0.0 m² 0 1
Teknisk rom TEKNISK 0.0 m² 0 1
Hybel 24.3 m² 1 1
Kjellerstue 9.2 m² 0 1
Bod 2.3 m² 0 1
Teknisk rom 1.7 m² 0 1
Bad 6.9 m² 0 1
Bod 3.3 m² 0 1
Sov 11.5 m² 0 1
Gang 8.5 m² 0 3
Bad 2.8 m² 0 1
Gang 2.5 m² 0 1
V.F. 5.4 m² 0 2
Soverom Sov 6.0 m² 1 1
Kjellerstue Kjellerstue 9.2 m² 0 1
Teknisk rom Tekn. rom 1.7 m² 0 1
Bad Bad 2.8 m² 0 1
Gang Gang 2.5 m² 0 2
Vaskerom V.F. 5.4 m² 1 1
Hybel Hvbel 24.3 m² 1 1

Etasje 1 156.1 m²

Rom Areal Vinduer Dører
Platting 101 26.0 m² 1 1
Stue/kjøkken 102 45.0 m² 2 1
Veranda 103 29.0 m² 1 1
Gang 104 12.0 m² 0 3
Sov 105 12.1 m² 1 1
Bad 106 5.3 m² 0 1
Sov 107 10.8 m² 1 1
Sov 108 7.7 m² 1 1
Stue STUE 35.0 m² 3 1
Soverom I SOV. I 12.0 m² 1 1
Soverom II SOV. II 10.5 m² 1 1
Soverom III SOV. III 7.4 m² 1 1
Entre ENTRE 0.0 m² 0 2
Bad BAD 0.0 m² 0 1
WC WC 0.0 m² 0 1

Fasader

Enebolig

Øst
Materiale
Tre
Taktype
Saltak
Vinduer
1
Dører
0
Synlige etasjer
2
Vest
Materiale
Tre
Taktype
Saltak
Vinduer
1
Dører
1
Balkonger
1
Synlige etasjer
2
Nord
Materiale
Tre
Taktype
Saltak
Vinduer
5
Dører
1
Balkonger
1
Synlige etasjer
2
Sør
Materiale
Tre
Taktype
Saltak
Vinduer
7
Dører
1
Synlige etasjer
2
Ukjent
Taktype
Saltak
Høyde
6.0 m
Mønehøyde
8.1 m
Vinduer
3
Dører
2
Balkonger
2
Synlige etasjer
2

Hendelser

09.04.2026 Tillatelse - Ole Tobias Olsens Vei 21
20.03.2026 Ole Tobias Olsens vei 21 Supplering av søknad 41/309
13.03.2026 Foreløpig svar - behov for tilleggsdokumentasjon
10.03.2026 Foreløpig svar om lenger saksbehandlingstid grunnet stor saksmengde
05.03.2026 Etterlyser svar
23.01.2026 Bekreftelse på mottatt søknad - Ole Tobias Olsens Vei 21
23.01.2026 Ett-trinns søknad - Ole Tobias Olsens Vei 21