ChangeOfUse UnderBehandling Enebolig

Bruksendring av kjeller i enebolig på Oskleiva 6

📍 Oskleiva 6 , 1772 HALDEN

Nøkkelinfo

Sakstype
Bruksendring
Bygningstype
Enebolig
Bruksareal
124 m²
Boenheter
1
Kommune
Halden
Fylke
Østfold
Gnr / Bnr
66 / 197
Saksnummer
2026/1013
Fase
Under behandling

Om byggesaken

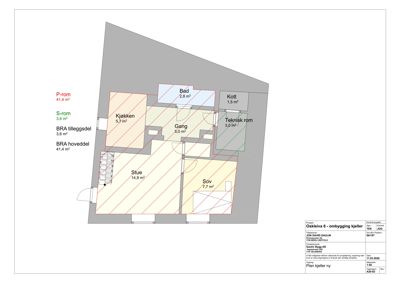
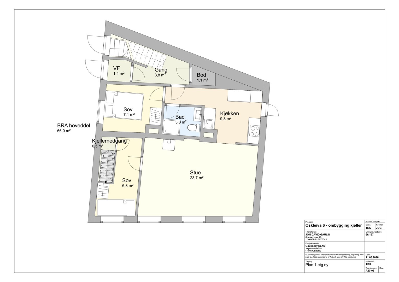
Bruksendring av kjeller i eksisterende enebolig på Oskleiva 6 fra tilleggsdel til hoveddel med et samlet areal på 45 m². Kjelleren ombygges til å inkludere kjøkken, stue, bad, soverom og teknisk rom, med balansert ventilasjon og radonsperre på gulv. Det etableres en intern trapp mellom kjeller og 1. etasje, avgrenset med EI30 branntekniske vegger og dør. Rømning ivaretas via ytterdør og vinduer i stue og soverom. Badet bygges i henhold til våtromsnormen. Kjelleren har flere boder og tekniske rom som opprettholdes. Tiltaket vurderes å oppfylle relevante tekniske krav uten behov for unntak.

Produkter og materialer

Fasade Ytterdør i kjeller

Antall: 1

Ytterdør som gir rømningsvei fra kjeller

Egen inngang/utgang fra kjeller som del av bruksendringen

Bad Bad i kjeller bygget etter våtromsnormen

Antall: 1

Oppbygget i henhold til våtromsnormen

Bad i kjeller med forskriftsmessig oppbygging og tetting

Isolasjon Radonsperre på gulv i kjeller

🧱 Radonsperre

Radonsperre lagt på gulv for å hindre radongassinntrenging

Trapper Innvendig trapp mellom kjeller og 1. etasje

Antall: 1

Trappeløp avgrenset med EI30 branntekniske vegger og dør

Intern trapp som etablerer forbindelse mellom kjeller og 1. etasje, med brannteknisk avgrensning

Ventilasjon Balansert ventilasjon med romventilasjon i kjeller

Balansert ventilasjonssystem installert i kjeller for luftkvalitet

Vinduer Rømning vinduer i kjellerstue og soverom

Antall: 2

Vinduer 1,2 x 1,2 m som rømning

Vinduer som ivaretar rømningsmulighet fra kjellerstue og soverom

Grunnarbeid Oppgradering av kjellergulv med radonsperre

🧱 Radonsperre

Tiltak for å sikre mot radongass i kjeller

Tømrer Brannteknisk vegg og dør EI30 rundt trapp

Vegger og dør med EI30 brannmotstand rundt trappeløp

Brannteknisk avgrensning for å sikre brannsikkerhet mellom kjeller og 1. etasje

Plantegning

Oskleiva 6 - ombygging kjeller 124.0 m²

Etasje 0 124.0 m²

Rom Areal Vinduer Dører
Bod 001 24.2 m² 0 1
Sommer kjøkken 002 5.7 m² 0 1
Bod 003 5.0 m² 0 1
Bod 004 2.8 m² 0 1
Bod 005 3.0 m² 0 1
Kott 006 1.5 m² 0 1

Hendelser

13.04.2026 Søknad Oskleiva 6 - Bruksendring og unntak fra TEK17
24.03.2026 Søknad Oskleiva 6 - Bruksendring og unntak fra TEK17
24.03.2026 Søknad Oskleiva 6 - Bruksendring og unntak fra TEK17
04.03.2026 Søknad Oskleiva 6 - Bruksendring og unntak fra TEK17
04.03.2026 Søknad Oskleiva 6 - Bruksendring og unntak fra TEK17
16.02.2026 Søknad Oskleiva 6 - Bruksendring og unntak fra TEK17
09.02.2026 66/197 - Oskleiva 6 - Bruksendring