ChangeOfUse UnderBehandling Enebolig

Bruksendring fra bod til treningsrom i Øvre Askerhagen 1

📍 Øvre Askerhagen 1 , 1383 ASKER

Nøkkelinfo

Sakstype
Bruksendring
Bygningstype
Enebolig
Bruksareal
169 m²
Boenheter
1
Kommune
Asker
Fylke
Akershus
Gnr / Bnr
2 / 52
Saksnummer
25/4336
Fase
Under behandling

Om byggesaken

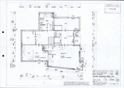
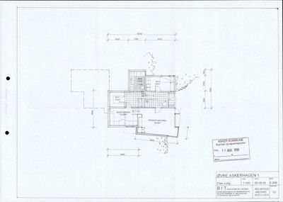
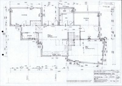
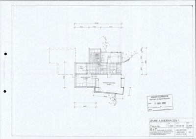
Bruksendring av et 10 m² rom i kjelleretasjen i en enebolig på Øvre Askerhagen 1 fra bod (tilleggsdel) til treningsrom (hoveddel). Rommet har et eksisterende kjellervindu som ikke oppfyller dagslyskravene i TEK17, og det planlegges ingen fasadeendringer eller utvidelse av vinduet. Det er etablert rømningsveier i kjelleren, og treningsrommet vil ha sporadisk bruk med kunstig belysning og lyse overflater som kompensasjon for manglende dagslys. Bygget er en to-etasjes trebygget enebolig med saltak og flere vinduer og dører fordelt på fasadene. Det foreligger arkitekttegninger og situasjonsplan som dokumenterer eksisterende forhold.

Produkter og materialer

Tømrer Innvendig romendring

Endring av rombruk fra bod til treningsrom, inkludert tilpasning av overflater og romfunksjon

Innvendig ombygging for å tilpasse rommet til treningsformål

Fasade Tre kledning

🧱 Tre

Eksisterende trefasade med saltak, ingen fasadeendringer planlagt

Byggets fasade i tre med saltak, uendret i prosjektet

Brannvern Rømningsveier

Tre rømningsveier i kjeller, under 15 meter til nærmeste utgang, ivaretatt i prosjektet

Sikring av rømningsveier i forbindelse med bruksendring

Elektro Kunstig belysning

God kunstig belysning tilpasset treningsbruk som kompensasjon for manglende dagslys

Belysning i treningsrommet for å sikre godt inneklima og brukervennlighet

Vinduer Kjellervindu

🧱 glass

Antall: 1

Eksisterende vindu 75 cm høyde x 30 cm bredde, ikke i samsvar med TEK17 dagslyskrav

Eksisterende kjellervindu i treningsrommet som ikke oppfyller dagslyskrav, planlagt ikke utvidet

Fasader

Enebolig

Nord
Materiale
Tre
Taktype
Saltak
Vinduer
4
Dører
1
Synlige etasjer
2
Sør
Materiale
Tre
Taktype
Saltak
Vinduer
4
Dører
1
Balkonger
1
Synlige etasjer
2
Øst
Materiale
Tre
Taktype
Saltak
Vinduer
3
Dører
1
Synlige etasjer
2
Vest
Materiale
Tre
Taktype
Saltak
Vinduer
2
Dører
1
Synlige etasjer
2
Syd
Materiale
Tre
Taktype
Saltak
Vinduer
4
Dører
1
Balkonger
1
Synlige etasjer
2
Ukjent
Taktype
Saltak
Vinduer
5
Dører
2
Balkonger
1
Synlige etasjer
2

Hendelser

15.04.2026 2/52 Øvre Askerhagen 1 - Ber om tilbakemelding
18.03.2026 2/52 Øvre Askerhagen 1 - Varsel om avslag - Bruksendring fra tilleggsdel til hoveddel
18.03.2026 2/52 Øvre Askerhagen 1 - Ber kommunen vurdere saken på nytt
21.01.2026 2/52 Øvre Askerhagen 1 - Vedr. dokumentasjon om dagslys - Bruksendring fra tilleggsdel til hoveddel
19.01.2026 2/52 Øvre Askerhagen 1 - Supplering av søknad
20.12.2025 2/52 Øvre Askerhagen 1 - Søknad om tillatelse i ett trinn - Bruksendring fra tilleggsdel til hoveddel