ChangeOfUse Ferdigattest Enebolig

Bruksendring, tilbygg og fasadeendring på enebolig i Øyaveien 13, Fredrikstad

📍 Øyaveien 13 , 1628 ENGELSVIKEN

Nøkkelinfo

Sakstype
Bruksendring
Bygningstype
Enebolig
Bruksareal
203 m²
Boenheter
1
Kommune
Fredrikstad
Fylke
Østfold
Gnr / Bnr
112 / 185
Saksnummer
2023/19966
Fase
Ferdigattest

Om byggesaken

Prosjektet omfatter bruksendring av kjeller fra tilleggsdel til hoveddel i en eksisterende enebolig, med total BRA på 202,6 m². Kjelleren ombygges til kjellerstue, to soverom, bod og utvidet bad med større vinduer for rømningskrav. Det bygges et mindre tilbygg på 6,4 m² som overdekket nedgang til kjeller, og det utføres fasadeendringer som inkluderer utskifting av kjellervinduer til større, rydding av gammelt panel og utvidelse av terrasse mot øst. Bygget har saltak med valm, gesimshøyde ca. 6,6 m og mønehøyde ca. 10,66 m. Tomten er på 548,9 m² med to biloppstillingsplasser. Tiltaket er ferdigattestert og godkjent i henhold til gjeldende regelverk.

Produkter og materialer

Rekkverk Terrasserekkverk

🧱 Tre eller metall

Antall: 1

Rekkverk på utvidet terrasse

Sikkerhetsrekkverk på terrasse

Tømrer Innvendig ombygging kjeller

🧱 Tre, gips, isolasjon

Ombygging av kjeller til kjellerstue, soverom, bod og bad

Innvendig tømrerarbeid for bruksendring av kjeller

Elektro Elektrisk installasjon

Oppgradering av elektrisk anlegg i forbindelse med ombygging

Elektrisk arbeid tilpasset bruksendring og tilbygg

Vinduer Kjellervinduer

🧱 Tre/Aluminium

Antall: 4

Større vinduer for rømningskrav, 3-lags energiglass antatt

Utskifting av kjellervinduer til større vinduer som tilfredsstiller krav til rømningsvei og lysforhold

Bad Bad i kjeller og 1. etasje

🧱 Fliser, sanitærutstyr

Antall: 2

Utvidet bad i kjeller, bad i 1. etasje

Oppgradering og utvidelse av bad i kjeller og 1. etasje

Dører Ytterdør til kjeller

🧱 Tre/Aluminium

Antall: 1

Ny overdekket nedgang til kjeller

Ny dør i tilbygg som overdekket nedgang til kjeller

VVS Vann og avløp

Oppgradering av vann- og avløpsinstallasjoner i bad og kjøkken

VVS-arbeid i forbindelse med ombygging og tilbygg

Isolasjon Vegger og tak

🧱 Mineralull eller tilsvarende

Isolasjon i vegger og tak i tilbygg og ombygde rom

Isolasjon for å oppfylle TEK17 krav

Fasade Trepanel

🧱 Tre

Rydding av gammelt panel og oppgradering av fasade

Fasadeendring med utskifting og rydding av trepanel

Gulv Innvendige gulv

🧱 Parkett, fliser

Nye gulv i kjellerstue, soverom og bad

Legging av nye gulv i ombygde rom

Tak Saltak med valm

🧱 Takstein/tre

Antall: 1

Eksisterende takform beholdes, gesimshøyde ca. 6,6 m, mønehøyde ca. 10,66 m

Takform opprettholdes med saltak og valm, ingen vesentlige endringer

Terrasse Utvidet terrasse mot øst

🧱 Tre

Antall: 1

Utvidelse av terrasse, hengt ut maks 1 m over støttende konstruksjon

Utvidelse av eksisterende terrasse mot øst, tilpasset byggegrense

Grunnarbeid Fundament og grunnmur

🧱 Betong

Fundament for tilbygg og terrasse

Grunnarbeid for tilbygg og terrasseutvidelse

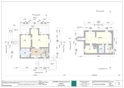
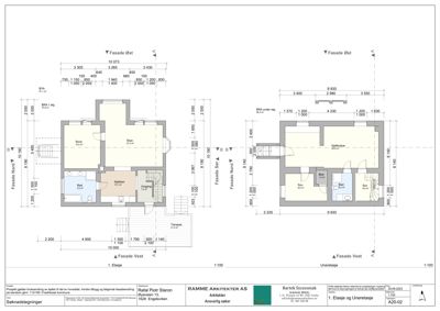
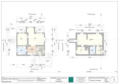
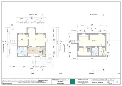
Plantegning

Enebolig 268.5 m²

Etasje 1 109.7 m²

Rom Areal Vinduer Dører
Stue 101 35.2 m² 3 2
Gang 102 10.9 m² 0 3
Kjøkken 103 12.1 m² 1 1
Bad 104 6.4 m² 0 1
Toalett 105 2.4 m² 0 1
Vaskerom 106 4.1 m² 0 1
Bod 107 4.6 m² 1 1
Terrasse 108 2.4 m² 0 0
Inngang 5.3 m² 0 1
Kjøkken/Spise 20.4 m² 1 1
Sove 14.4 m² 1 2
Stua 27.6 m² 3 1
Balkong 6.5 m² 0 1

Etasje 0 99.3 m²

Rom Areal Vinduer Dører
Kjeller U01 99.3 m² 0 1
Kjellerstue 001 34.5 m² 0 1
Sov 002 9.0 m² 1 1
Sov 003 6.0 m² 1 1
Bad 004 5.2 m² 0 1
Bod 005 1.4 m² 0 1
Sov U02 9.0 m² 0 1
Bad U03 5.2 m² 0 1
Sov U04 6.0 m² 0 1
Bod U05 1.4 m² 0 1
Lager 13.3 m² 0 2
Hobbyrom/hjemmeverksted 20.9 m² 1 1
Gang 17.9 m² 1 2
Teknisk rom 1.5 m² 0 1
Bad 3.1 m² 0 1

Etasje 2 59.5 m²

Rom Areal Vinduer Dører
Stue 201 14.3 m² 1 2
Sove 202 9.8 m² 1 1
Sove 203 8.5 m² 1 1
Kjøkken 204 10.6 m² 1 1
Bad 205 3.2 m² 0 1
Gang 206 4.2 m² 0 0
Trapperom 207 4.1 m² 0 0
Bod 208 3.9 m² 0 0
BRA 2.etg 209 59.5 m² 0 0
Tarasse 210 6.4 m² 0 1
Stue Stua 14.1 m² 0 2
Sove Sove_1 13.8 m² 1 1
Sove Sove_2 12.8 m² 1 1
Sove Sove_3 8.9 m² 0 1
Gang Gang 5.8 m² 0 3
Bad Bad 4.1 m² 0 2
Bod Bod 3.9 m² 0 1

Fasader

Enebolig

Vest
Materiale
Tre
Taktype
Saltak
Høyde
6.6 m
Mønehøyde
10.7 m
Vinduer
1
Dører
1
Balkonger
1
Synlige etasjer
2
Nord
Materiale
Tre
Taktype
Saltak
Høyde
6.6 m
Mønehøyde
10.7 m
Vinduer
1
Dører
1
Balkonger
1
Synlige etasjer
2
Øst
Materiale
Tre
Taktype
Saltak
Høyde
6.0 m
Mønehøyde
10.9 m
Vinduer
3
Dører
1
Synlige etasjer
2
Sør
Materiale
Tre
Taktype
Saltak
Høyde
6.0 m
Mønehøyde
10.9 m
Vinduer
2
Dører
1
Synlige etasjer
2

Hendelser

15.04.2026 Svar på henvendelse - Øyaveien 13 - Eiendom 112/185
13.04.2026 Generell henvendelse - Øyaveien 13 - Eiendom 112/185 - To terrasser på eiendommen
26.10.2023 Ferdigattest - Bruksendring, tilbygg og fasadeendring - Øyaveien 13 - Eiendom 112/185
26.10.2023 Sak til matrikkelføring - Bruksendring, tilbygg og fasadeendring - Øyaveien 13 - Eiendom 112/185
12.10.2023 Søknad om ferdigattest - Øyaveien 13 - Eiendom 112/185
03.10.2023 Sak til matrikkelføring - Bruksendring, tilbygg og fasadeendring - Øyaveien 13 - Eiendom 112/185
03.10.2023 Tillatelse - Bruksendring, tilbygg og fasadeendring - Øyaveien 13 - Eiendom 112/185
02.10.2023 Tilleggsopplysninger - Øyaveien 13 - Eiendom 112/185 - Bruksendring andre bygg, Tilbygg inntil 50 m²
28.09.2023 Eiendomsforhold Øyaveien 13
27.09.2023 Spørsmål - tegninger - Øyaveien 13 - Eiendom 112/185
27.09.2023 Tilleggsopplysninger - Øyaveien 13 - Eiendom 112/185 - Bruksendring andre bygg, Tilbygg inntil 50 m²
26.09.2023 Angående tilleggsopplysninger - Øyaveien 13 - Eiendom 112/185 - Bruksendring andre bygg, Tilbygg inntil 50 m²
25.09.2023 Tilleggsopplysninger - Øyaveien 13 - Eiendom 112/185 - Bruksendring andre bygg, Tilbygg inntil 50 m²
20.09.2023 Mangelfull søknad - Bruksendring, tilbygg og fasadeendring - Øyaveien 13 - Eiendom 112/185
03.07.2023 Bekreftelse på mottatt søknad - Ett-trinns søknad - Bruksendring andre bygg, Tilbygg inntil 50 m² - Øyaveien 13 - Eiendom 112/185
03.07.2023 Ett-trinns søknad - Øyaveien 13 - Eiendom 112/185 - Bruksendring andre bygg, Tilbygg inntil 50 m²