ChangeOfUse UnderBehandling Enebolig

Påbygg, tilbygg og bruksendring på enebolig i Remane 53, Vigra

📍 Remane 53 , 6040 VIGRA

Nøkkelinfo

Sakstype
Bruksendring
Bygningstype
Enebolig
Bruksareal
221 m²
Boenheter
1
Kommune
Giske
Fylke
Møre og Romsdal
Gnr / Bnr
4 / 43
Saksnummer
2026/766
Fase
Under behandling

Om byggesaken

Eksisterende enebolig på Remane 53 oppgraderes med påbygg for ny trappeløsning, forbedret planløsning for vaskerom og bad, samt tilbygg med nytt inngangsparti og terrasse. Bygget får økt brukskvalitet og bedre solforhold, samtidig som arkitekturen tilpasses eksisterende formspråk med saltak og tre som fasademateriale. Bruksendring i kjeller omfatter etablering av hybelleilighet, vaskerom og soverom med nye større vinduer og dører for dagslys og rømningsvei. Bygget isoleres betydelig med 15-20 cm isolasjon i vegger, gulv og tak, nye vinduer med U-verdi ca. 0,9, rehabilitert pipe og balansert ventilasjon. Totalt areal etter tiltaket er ca. 221 m² med lav utnyttelsesgrad på tomten. Tiltaket inkluderer også utvendig parkering og terrasse på til sammen ca. 65 m².

Produkter og materialer

Tømrer Påbygg og tilbygg

🧱 Treverk

Påbygg for trappeløsning, tilbygg inngangsparti og terrasse

Tømrerarbeid for påbygg og tilbygg

Vinduer Store vinduer i kjeller for dagslys og rømningsvei

🧱 3-lags energiglass, U-verdi ca. 0,9

Nye og større vinduer i kjeller for tilfredsstillende dagslys og rømningsforhold

Vinduer for kjellerbruksendring med god isolasjon og rømningsmulighet

Terrasse Terrasse tilbygg

Antall: 2

Terrasse på til sammen ca. 65 m² i tilknytning til oppholdsrom

Uteplass for bedre brukskvalitet

Fasade Trepanel fasade

🧱 Tre

Fasaden utføres i tre med klassisk arkitektonisk uttrykk, tilpasset eksisterende bygg

Fasadeoppgradering og tilbygg i tre

Dører Ny ytterdør og balkongdør i kjeller

Antall: 2

Ny ytterdør og balkongdør for funksjonalitet og tilgjengelighet i kjeller

Dører for kjellerbruksendring

Tak Saltak med teglstein

🧱 Teglstein

Takform og materialbruk videreføres med saltak og teglstein

Taktekking og takform tilpasses eksisterende bygg

Ventilasjon Balansert ventilasjonsanlegg

Antall: 1

Etablering av balansert ventilasjonsanlegg for forbedret inneklima

Ventilasjonssystem for hele boligen

Pipe Rehabilitering av eksisterende pipe

Antall: 1

Rehabilitering av pipe som del av oppgradering

Oppgradering av pipe for sikkerhet og funksjon

Isolasjon Vegger, gulv og tak

🧱 Mineralull eller tilsvarende

15 cm isolasjon i yttervegger, 20 cm isolasjon i murvegger, gulv og tak

Isolasjon for bedre energieffektivitet og inneklima

Grunnarbeid Utvendig parkering

Antall: 1

36 m² utvendig parkering opprettholdes

Parkering på tomt

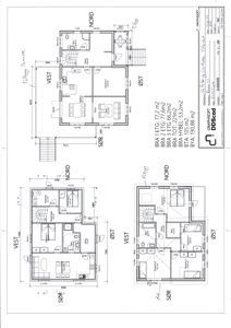
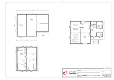
Plantegning

Enebolig 221.0 m²

Etasje 1 77.2 m²

Rom Areal Vinduer Dører
Stue 101 13.3 m² 1 1
Kjøkken 102 27.1 m² 1 1
Soverom 1 103 15.0 m² 1 1
Gang 104 15.4 m² 0 0
Bad 105 6.8 m² 0 1
Gang 106 15.4 m² 0 3
Bad 107 6.8 m² 0 1

Etasje 2 77.6 m²

Rom Areal Vinduer Dører
Soverom 1 201 11.4 m² 1 1
Soverom 2 202 9.8 m² 1 1
Soverom 3 203 13.4 m² 1 1
Soverom 4 204 15.2 m² 1 1
Bad 205 6.3 m² 0 1
Bod 206 3.2 m² 1 1
Gang 207 11.1 m² 0 0
Vaskerom 208 6.7 m² 1 1

Etasje 3 66.2 m²

Rom Areal Vinduer Dører
Kjøkken/stue 301 25.2 m² 1 1
Soverom 1 302 14.0 m² 1 1
Soverom 2 303 12.0 m² 1 1
Soverom 3 304 12.0 m² 1 1
Bad 305 6.6 m² 0 1
Gang 306 9.2 m² 0 0
Gang/trapp 307 9.2 m² 0 0

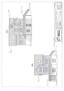
Fasader

Enebolig

Nord
Materiale
Tre
Taktype
Saltak
Vinduer
5
Dører
1
Balkonger
1
Synlige etasjer
2
Øst
Materiale
Tre
Taktype
Saltak
Vinduer
6
Dører
1
Balkonger
1
Synlige etasjer
2
Vest
Materiale
Tre
Taktype
Saltak
Takmat.
Tegl
Vinduer
4
Dører
1
Synlige etasjer
2
Sør
Materiale
Tre
Taktype
Saltak
Takmat.
Tegl
Vinduer
4
Dører
0
Synlige etasjer
2

Hendelser

16.04.2026 Gbnr 4/43 - Remane 53 - Supplering av søknad
16.04.2026 Gbnr 4/43 - Remane 53 - Endring av bygg - Bruksendring - Etterspør supplerande opplysningar
08.04.2026 Gbnr 4/43 - Remane 53 - Endring av bygg - supplering av søknad
04.03.2026 Gbnr 4/43 - Remane 53 - bruksending - søknad om tillatelse i eitt tirinn
24.02.2026 Gbnr 4/43 - Remane 53 - Endring av bygg - Bruksendring - Dispensasjonssøknad
18.02.2026 Gbnr 4/43 - Remane 53 - Endring av bygg - Bruksendring - Nabovarsel
17.02.2026 Gbnr 4/43 - Remane 53 - Endring av bygg - Bruksendring - Dispensasjonssøknad