Photo
Fotografi av et innredet rom (stue/kontor) med skrivebord, stol og vindu.
1 / 6
ChangeOfUse
Rammetillatelse
Enebolig
Bruksendring av bod til soverom i Romsaas Allé 24
📍 Romsaas Allé 20 , 2063 JESSHEIM
Nøkkelinfo
- Sakstype
- Bruksendring
- Bygningstype
- Enebolig
- Bruksareal
- 6 m²
- Boenheter
- 1
- Kommune
- Ullensaker
- Fylke
- Akershus
- Gnr / Bnr
- 132 / 255
- Saksnummer
- 2026/3202
- Fase
- Rammetillatelse
Om byggesaken
Bruksendring av et eksisterende rom på ca. 6,5 m² i en enebolig til et godkjent soverom. Rommet har innvendig takhøyde på 2,4 meter, parkett/laminatgulv, malte veggflater og et vindu som fungerer som rømningsvei med integrert lufteventil. Det er ikke utført fysiske endringer på fasade eller konstruksjon i forbindelse med tiltaket. Rommet tilfredsstiller krav til soverom med hensyn til areal, takhøyde og rømningsvei. Bruksendringen medfører ingen endring i bygningsstruktur eller utvendige forhold.
Produkter og materialer
Fasade
Ingen endringer
Ingen fysiske endringer på fasade eller yttervegger
Ingen nye vinduer eller dører settes inn, fasaden forblir uendret
Tømrer
Innvendige arbeider
Ingen bærende konstruksjoner endres, ingen nye trapper eller dører i yttervegg
Ingen fysiske konstruksjonsendringer, kun bruksendring av rommets funksjon
Maling
Malte veggflater
🧱 Maling
Eksisterende malte veggflater i rommet
Veggoverflater med maling som standard overflate
Vinduer
Rømningsvindu med integrert lufteventil
Antall: 1
Vindu som fungerer som rømningsvei med integrert lufteventil
Eksisterende vindu som tilfredsstiller krav til rømningsvei i soverom
Gulv
Parkett/laminatgulv
🧱 Parkett/laminat
Eksisterende parkett/laminatgulv i rommet
Gulvbelegg i rommet som skal brukes som soverom
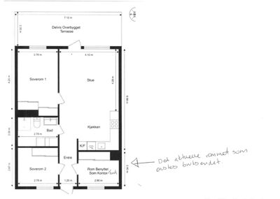
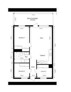
Plantegning
Enebolig 66.6 m²
Etasje 1 66.6 m²
| Rom | Areal | Vinduer | Dører |
|---|---|---|---|
| Soverom 1 101 | 11.9 m² | 1 | 1 |
| Stue 102 | 17.5 m² | 2 | 1 |
| Kjøkken 103 | 10.0 m² | 0 | 1 |
| Bad 104 | 5.6 m² | 0 | 1 |
| Soverom 2 105 | 7.7 m² | 1 | 1 |
| Entré 106 | 1.4 m² | 0 | 1 |
| Rom Benyttet Som Kontor/Bod 107 | 7.5 m² | 1 | 1 |
Hendelser
17.04.2026
Tillatelse til tiltak - Gnr 132 bnr 255 - Romsaas Allé 24 - Bruksendring - Bod til soverom
17.04.2026
Søknad om ferdigattest - Gnr 132 bnr 255 - Romsaas Allé 24 - Bruksendring - Bod til soverom
15.04.2026
Plantegning - Gnr 132 bnr 255 - Romsaas Allé 24 - Bruksendring - Bod til soverom
14.04.2026
Tilbakemelding om mangler - Gnr 132 bnr 255 - Romsaas Allé 24 - Bruksendring - Bod til soverom
07.04.2026
Søknad om bruksendring - Gnr 132 bnr 255 - Romsaas Allé 24 - Bruksendring - Bod til soverom