FloorPlan
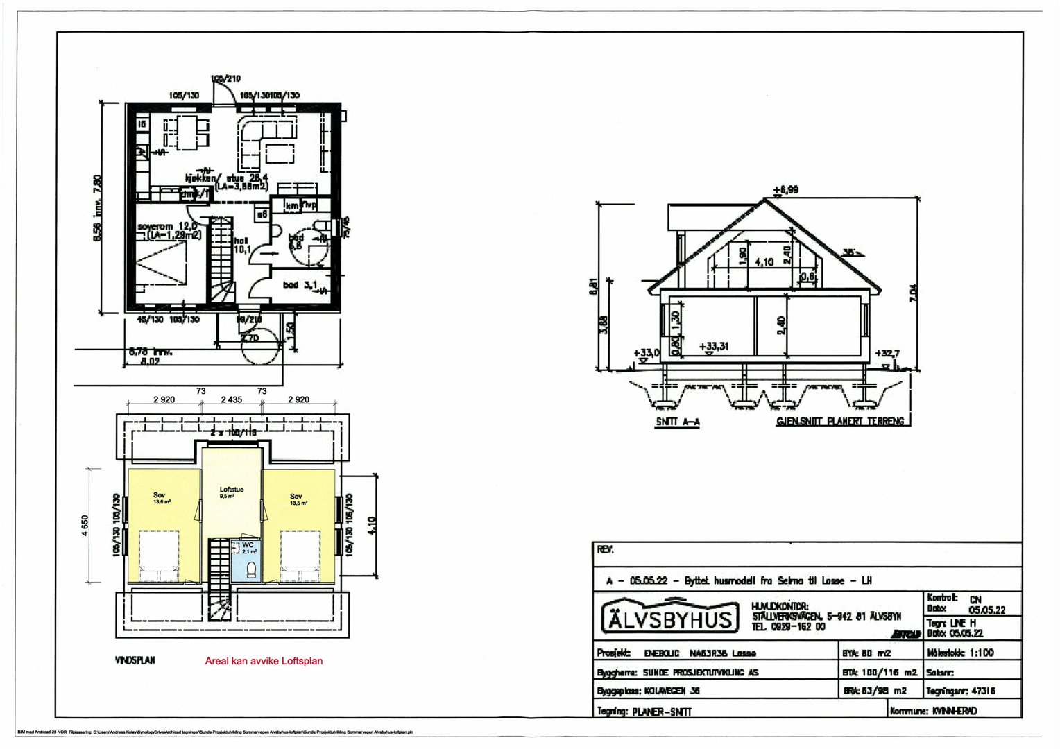
Bildet viser en samling tegninger for et hus, inkludert etasjeplaner (VINGPLAN), snittegning og arealopplysninger.
1 / 2
ChangeOfUse
Igangsettingstillatelse
Enebolig
Bruksendring med innredning av loft i enebolig, Sommervegen 4, Husnes
📍 Sommarvegen 4 , 5460 HUSNES
Nøkkelinfo
- Sakstype
- Bruksendring
- Bygningstype
- Enebolig
- Bruksareal
- 35 m²
- Boenheter
- 1
- Kommune
- Kvinnherad
- Fylke
- Vestland
- Gnr / Bnr
- 145 / 448
- Saksnummer
- 2026/2862
- Fase
- Igangsettingstillatelse
Om byggesaken
Innredning av loft i eksisterende enebolig på 112,68 m² med nytt areal på 35 m². Loftet får loftstue (9,5 m²), to soverom (13,5 m² og 13,6 m²) og WC (2,1 m²). Arbeidet inkluderer trearbeid for innredning, rørlegging for VA til toalett, og tilpasning av rom med dører og vinduer. Prosjektet omfatter også oppdatering av kartdata og tekniske installasjoner i samsvar med gjeldende krav.
Produkter og materialer
VVS
Rørlegging for VA til toalett
Røyropplegg og montering av VA-rør til WC
Installasjon av vann- og avløpsrør for nytt toalett på loft
Tømrer
Innredning av loft
Trearbeid for innredning av loftstue, soverom og WC
Innredning av loft med nye rom og tilpasning av eksisterende konstruksjon
Dører
Innvendige dører
Antall: 4
Dører til soverom, loftstue og WC
Vinduer
Fasadevindu
Antall: 3
Nye vinduer i loftsrommene for lys og ventilasjon
Grunnarbeid
Oppdatering av kartdata
Innmålingsdata for oppdatering av kart ved ferdigstillelse
Oppdatering av matrikkel og kartdata etter tiltaket
Plantegning
Enebolig 112.7 m²
Etasje 1 64.0 m²
| Rom | Areal | Vinduer | Dører |
|---|---|---|---|
| Stue 101 | 28.4 m² | 3 | 1 |
| Kjøkken 102 | 3.9 m² | 0 | 0 |
| Soverom 103 | 12.0 m² | 1 | 1 |
| Bad 104 | 6.8 m² | 0 | 1 |
| Bod 105 | 3.1 m² | 1 | 1 |
| Hall 106 | 10.1 m² | 0 | 2 |
Etasje 2 48.7 m²
| Rom | Areal | Vinduer | Dører |
|---|---|---|---|
| Sov 201 | 13.6 m² | 1 | 1 |
| Lofstue 202 | 9.5 m² | 0 | 1 |
| Sov 203 | 13.5 m² | 1 | 1 |
| WC 204 | 2.1 m² | 0 | 1 |
Hendelser
10.04.2026
Løyve til tiltak - Bruksendring - 145/448
26.03.2026
Stadfesting på mottatt søknad - Eitt-trinns søknad - 145/448
24.03.2026
Søknad om tiltak - Eitt-trinns - 145/448