ChangeOfUse Ferdigattest Enebolig

Bruksendring fra fritidsbolig til enebolig på Svaene 81, Erdal

📍 Svaene 81 , 5306 ERDAL

Nøkkelinfo

Sakstype
Bruksendring
Bygningstype
Enebolig
Bruksareal
94 m²
Boenheter
1
Kommune
Askøy
Fylke
Vestland
Gnr / Bnr
4 / 155
Saksnummer
2022/25248
Fase
Ferdigattest

Om byggesaken

Eksisterende enebolig på 94 m² fordelt på to etasjer med saltak og trekledning, opprinnelig oppført som helårsbolig, men registrert som fritidsbolig. Bygningen har 2 soverom i andre etasje, stue, kjøkken og bad i første etasje, samt en trapp og balkonger. Det skal ikke gjøres fysiske endringer på bygningsmassen, men det gis unntak fra krav til ventilasjon og energieffektivitet med vilkår om installasjon av balansert ventilasjon. Eiendommen ligger i LNF-område med dispensasjon fra byggegrense mot vassdrag. Privat vann og avløp er etablert og godkjent. Tiltaket innebærer tilbakeføring til helårsbolig med oppgraderinger og vedlikehold planlagt for å oppfylle dagens krav over tid.

Produkter og materialer

VVS Luft-til-luft varmepumpe

Antall: 1

Eksisterende varmepumpe for energieffektivitet og luftsirkulasjon

Luft-til-luft varmepumpe installert i bygget

Fasade Trekledning

🧱 Tre

Trekledning på alle fasader

Eksisterende trekledning på fasader

Trapper Innvendig trapp

🧱 Tre eller betong (ikke spesifisert)

Antall: 1

Innvendig trapp mellom etasjer

Eksisterende innvendig trapp til andre etasje

Rekkverk Balkongrekkverk

🧱 Tre

Antall: 2

Rekkverk på balkonger i tre

Eksisterende rekkverk på balkonger

Gulv Innvendige gulv

Eksisterende gulv i bolig, ikke spesifisert materiale

Eksisterende gulv i bolig

Vinduer Fasadevindu

🧱 Tre med 3-lags glass

Antall: 7

Vinduer i fasader, totalt 7 stk fordelt på alle sider

Eksisterende fasadevinduer i tre som inngår i bygningsmassen

Grunnarbeid Privat vann og avløp

Antall: 1

Privat vannforsyning via brønn og privat avløpsanlegg med Biovac system, godkjent utslippstillatelse

Eksisterende privat vann- og avløpssystem

Tak Saltak

🧱 Tretak med takstein eller lignende (ikke spesifisert)

Antall: 1

Saltak over hele bygningen

Eksisterende saltak med trekledning

Terrasse Balkonger

🧱 Tre

Antall: 2

To balkonger på fasadene

Eksisterende balkonger i tre

Dører Ytterdører og balkongdører

🧱 Tre

Antall: 6

Ytterdører og balkongdører i tre, fordelt på alle fasader

Eksisterende ytterdører og balkongdører i tre

Bad Bad med dør

Antall: 1

Bad på 3 m² uten vindu, med dør

Eksisterende bad i første etasje

Tømrer Oppgradering og vedlikehold

Oppgraderinger av vinduer, etterisolering og vedlikehold planlagt for å oppfylle TEK17 over tid

Oppgraderingsarbeider for å forbedre teknisk standard

VVS Balansert ventilasjon

Antall: 1

Krav om installasjon av balansert ventilasjon som vilkår i rammetillatelse

Balansert ventilasjon for å oppfylle krav til luftutskifting

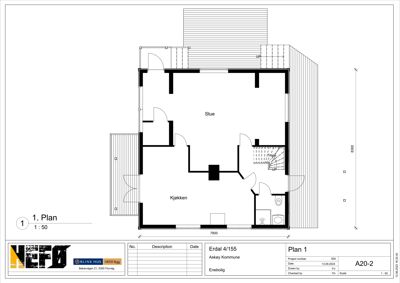
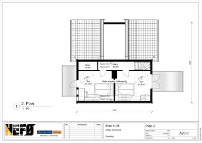
Plantegning

Enebolig 94.0 m²

Etasje 2 49.0 m²

Rom Areal Vinduer Dører
Sov 201 11.4 m² 0 1
Gang 202 4.9 m² 0 0
Skap 203 1.8 m² 0 0
Sov 204 11.4 m² 0 1

Etasje 1 45.0 m²

Rom Areal Vinduer Dører
Stue 101 28.0 m² 1 2
Kjøkken 102 17.0 m² 1 1
Bad 103 3.0 m² 0 1

Fasader

Enebolig

Sør
Materiale
Tre
Taktype
Saltak
Vinduer
1
Dører
1
Balkonger
2
Synlige etasjer
2
Nord
Materiale
Tre
Taktype
Saltak
Vinduer
2
Dører
1
Balkonger
2
Synlige etasjer
2
Øst
Materiale
Tre
Taktype
Saltak
Vinduer
3
Dører
1
Balkonger
2
Synlige etasjer
2
Vest
Materiale
Tre
Taktype
Saltak
Vinduer
2
Dører
1
Balkonger
1
Synlige etasjer
2

Hendelser

14.04.2026 Gbnr 4/155 - Ferdigattest
13.04.2026 Gbnr 4/155 - Søknad om ferdigattest
05.11.2025 Gbnr 4/155 - Igangsettingstillatelse
05.11.2025 Gbnr 4/155 - Søknad om igangsettingstillatelse
11.11.2024 Gbnr 4/155 - Orientering om vedtak
11.11.2024 Gbnr 4/155 - Rammetillatelse
08.10.2024 Gbnr 4/155 - Ber om avklaring
08.10.2024 Gbnr 4/155 - Avklaring
01.10.2024 Gbnr 4/155 - Uttale fra miljø og landbruk
01.10.2024 Gbnr 4/155 - NVE sin generelle uttale - Søknad om dispensasjon for bruksendring fra fritidsbolig til bolig
02.09.2024 Gbnr 4/155 - Intern oversendelse
02.09.2024 Gbnr 4/155 - Oversender søknad til uttalelse
11.01.2024 Gbnr 4/155 - Redegjørelse
23.10.2023 Gbnr 4/155 - Tilleggsopplysninger
19.10.2023 Gbnr 4/155 - Behov for tilleggsopplysninger
11.08.2023 Gbnr 4/155 - Tilleggsdokumentasjon
24.07.2023 Gbnr 4/155 - Ber om tilleggsdokumentasjon
22.06.2023 Gbnr 4/155/0/0 - Søknad om rammetillatelse
07.12.2022 Gbnr 4/155 - Vedtak - Søknad om utvidet bruk av eksisterende avkjørsel - Fv. 563