ChangeOfUse UnderBehandling Enebolig

Bruksendring og rehabilitering av kjeller i Enebolig, Utgårdsveien 19

📍 Utgårdsveien 19 , 1684 VESTERØY

Nøkkelinfo

Sakstype
Bruksendring
Bygningstype
Enebolig
Bruksareal
460 m²
Boenheter
2
Kommune
Hvaler
Fylke
Østfold
Gnr / Bnr
49 / 474
Saksnummer
2020/1283
Fase
Under behandling

Om byggesaken

Bruksendring av kjelleretasjen i en enebolig på Utgårdsveien 19, hvor tilleggsdel er omgjort til hoveddel med opprettelse av egen boenhet. Kjelleretasjen på 126 m² er rehabilitert med omdisponering av boder til soverom og kjøkken, etablering av åpen kjøkken/stueløsning, sammenslåing av bad og vaskerom, samt bygging av nytt trapperom i 1. etasje. Det er montert nye rømningsvinduer, balansert ventilasjon med to aggregater, totalrenovert elektrisk anlegg og lyd-/brannhimling mellom etasjene. Romhøyden i kjelleren er 2,35 m, og det er søkt dispensasjon for dette. Bygningen har saltak og trekledning, med flere vinduer og dører i fasadene. Det foreligger radonmåling og dokumentasjon på ventilasjon og lydisolering.

Produkter og materialer

Dører Innvendige dører

Dører til boder, soverom, bad, kjøkken og trapperom i kjeller og 1. etasje

Nye og omdisponerte innvendige dører i kjeller og 1. etasje

Pipe Eksisterende pipe

Antall: 1

Pipe i kjeller uten montert ildsted

Eksisterende pipe i kjeller

Elektro Elektrisk anlegg

Totalrenovert elektrisk anlegg i kjeller og 1. etasje

Oppgradering av elektrisk anlegg i forbindelse med rehabilitering

Grunnarbeid Rehabilitering av kjeller

Rehabilitering etter fuktskade, omdisponering av rom og tetting av trappeåpning

Oppgradering og omdisponering av kjellerareal

Trapper Innvendig trapp

Antall: 1

Nytt trapperom i 1. etasje med endret inngang og retning på trapp til kjeller

Ny trapp mellom kjeller og 1. etasje

Ventilasjon Balansert ventilasjon

Antall: 2

To ventilasjonsaggregater, SAVE VTR 300/B L og SAVE VSR 300, med varmegjenvinning 83-90%

Balansert ventilasjon installert i begge etasjer

Bad Bad/vaskerom

Antall: 1

Sammenslått bad og vaskerom i kjeller, totalrehabilitert bad i kjeller

Rehabilitert bad/vaskerom i kjeller

Kjøkken Kjøkken i kjeller

Antall: 1

Ny kjøkkenløsning i kjeller, åpen mot kjellerstue

Nytt kjøkken i kjeller som del av åpen løsning

Isolasjon Lyd- og brannisolasjon

🧱 Akustikkskinner, gipsplater

Brann- og lydhimling mellom kjeller og 1. etasje

Isolasjon for lyd og brann mellom etasjer

Gulv Gulv og himling

🧱 GN13 gipsplater, akustikkskinner

Brann- og lydhimling med 2 lag GN13 gips på akustikkskinner til grunnmur

Lyd- og brannisolering mellom etasjer

Vinduer Rømningsvindu

🧱 tre/alu ramme

Antall: 2

Innadslående sidehengslet, tilfredsstiller krav til rømningsvei

Nye rømningsvinduer montert i soverom i kjeller

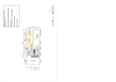
Plantegning

Kjeller-etasje 126.0 m²

Etasje 0 126.0 m²

Rom Areal Vinduer Dører
Bod 25.0 m² 0 1
Bod 11.0 m² 0 1
Bad 8.0 m² 0 1
Soverom 8.0 m² 1 1
Gang 3.7 m² 0 2
Soverom 11.0 m² 1 1
Soverom/Stue 13.0 m² 0 1
Hall 8.0 m² 0 2
Stue/kjøkken 30.0 m² 4 1

Enebolig 333.9 m²

Etasje 0 98.6 m²

Rom Areal Vinduer Dører
Hobby/Redskap 101 23.4 m² 1 1
Bod 102 9.0 m² 1 1
Bad 103 8.1 m² 0 1
Soverom 104 7.5 m² 1 1
Gang 105 3.7 m² 0 2
Soverom/Stue 106 12.7 m² 1 1
Stue/kjøkken 107 30.5 m² 2 1
Hall 108 8.0 m² 1 1
HJ. STUE U01 26.8 m² 1 1
GJEST. U02 9.9 m² 1 1
KJØKKEN U03 2.9 m² 0 1
BOD U04 0.2 m² 0 1
BOD U05 0.2 m² 0 1
TEKNIKK U06 0.4 m² 0 1
REDskap U07 0.2 m² 0 1

Etasje 1 84.5 m²

Rom Areal Vinduer Dører
STUE 101 37.3 m² 2 1
KJØKKEN 102 9.4 m² 1 1
BAD 103 5.7 m² 1 1
SOVEROM 104 12.1 m² 1 1
GANG 105 20.0 m² 0 2

Etasje 2 150.8 m²

Rom Areal Vinduer Dører
Stue 246 50.0 m² 3 1
Kjøkken 247 13.0 m² 0 1
Gang 248 16.0 m² 0 3
Soveværelse 249 7.0 m² 1 1
Soveværelse 250 7.0 m² 1 1
Soveværelse 251 10.0 m² 1 1
Soveværelse 252 14.0 m² 1 1
Bad 253 7.0 m² 0 1
Vaskerom 254 6.0 m² 0 1
Soveværelse 255 13.0 m² 1 1
Hall 245 11.5 m² 0 1

Fasader

Enebolig

Øst
Materiale
Tre
Taktype
Saltak
Vinduer
5
Dører
1
Synlige etasjer
2
Vest
Materiale
Tre
Taktype
Saltak
Vinduer
5
Dører
1
Synlige etasjer
2
Nord
Materiale
Tre
Taktype
Saltak
Vinduer
2
Dører
1
Synlige etasjer
2
Sør
Materiale
Tre
Taktype
Saltak
Vinduer
2
Dører
1
Synlige etasjer
2

Hendelser

26.03.2026 Søknad uten ansvarsrett - bruksendring fra tilleggsdel til hoveddel - 49/474 - Utgårdsveien 19, Vesterøy
25.05.2020 Etterspørsel dokumentasjon - bruksendring fra tilleggsdel til hoveddel - 49/474 - Utgårdsveien 19, Vesterøy
27.04.2020 Søknad ett-trinn - bruksendring fra tilleggsdel til hoveddel - 49/474 - Utgårdsveien 19, Vesterøy