ChangeOfUse Ferdigattest Enebolig

Bruksendring og fasadeendring på enebolig i Vollenlia 63

📍 Vollenlia 63 , 1390 VOLLEN

Nøkkelinfo

Sakstype
Bruksendring
Bygningstype
Enebolig
Bruksareal
148 m²
Boenheter
1
Kommune
Asker
Fylke
Akershus
Gnr / Bnr
73 / 161
Saksnummer
20/2485
Fase
Ferdigattest

Om byggesaken

Bruksendring av kjeller i en enebolig på 147,7 m² fra tilleggsdel til hoveddel med etablering av bad, bod og kjellerstue. Kjelleretasje på 48,9 m² får ny utgang med utvendig trapp i terreng mot fasade, og lysforholdene forbedres med større vindu. Fasadeendring inkluderer ny ytterdør og større vinduer. Bygget har saltak og trekledning, og fasadene vender mot sør, vest og nord med flere vinduer og dører. Det etableres ikke ny boenhet, og tiltaket har ingen endring i BYA. Badet i kjeller er under ferdigstillelse. Prosjektet er i fase ferdigattest.

Produkter og materialer

Tømrer Innvendige konstruksjoner og montering

🧱 tre

Tømrerarbeid inkludert montering av trekonstruksjoner

Tømrerarbeid for innredning og fasadeendring

Grunnarbeid Terrengarbeid for utvendig trapp

Terrengarbeid for plassering av utvendig trapp

Grunnarbeid i terreng for ny kjellerutgang

Fasade Fasadeendring med ny ytterdør og vinduer

🧱 trekledning

Fasade i tre med saltak, ny ytterdør og større vinduer

Oppgradering av fasade med nye vinduer og dør

Trapper Utvendig trapp i terreng

Antall: 1

Trapp plassert i terreng mot fasade for kjellerutgang

Utvendig trapp til ny kjellerutgang

Gulv Kjellergulv

Gulv i kjellerstue og bad, ikke spesifisert materiale

Gulv i kjellerstue og bad som del av innredning

Dører Ytterdør i kjeller

🧱 tre eller tilsvarende

Antall: 1

Ny ytterdør i kjeller med utvendig trapp

Ny ytterdør i kjeller med utvendig trapp mot terreng

Vinduer Større kjellervindu

🧱 tre eller tilsvarende

Antall: 1

Større vindu i kjeller for bedre lysforhold

Etablering av større vindu i kjeller for forbedret lysinnslipp

Maling Fasadebehandling

🧱 maling for trekledning

Overflatebehandling av trekledning på fasade

Maling av fasade i tre

VVS Sanitærinstallasjoner bad kjeller

Godkjent sanitærsøknad for bad i kjeller

Sanitærinstallasjoner for nytt bad i kjeller

Bad Bad i kjeller

Antall: 1

Bad under ferdigstillelse i kjeller

Etablering av bad i kjeller med sanitærinstallasjoner

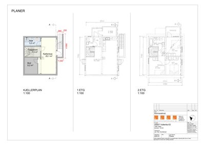
Plantegning

Enebolig 147.7 m²

Etasje 0 48.9 m²

Rom Areal Vinduer Dører
Kjeller 001 48.9 m² 0 1
Trapperom 002 7.0 m² 0 1
Bod 003 9.2 m² 0 1
Kjellerstue 004 25.1 m² 1 1

Etasje 1 50.0 m²

Rom Areal Vinduer Dører
Stue/Kjøkken 101 40.0 m² 2 2
WC 102 2.6 m² 0 1
Vaskerom 103 3.1 m² 0 1
Bod 104 5.2 m² 0 1

Etasje 2 48.8 m²

Rom Areal Vinduer Dører
Sovestue 201 12.4 m² 1 1
Soverom 202 11.0 m² 1 1
Soverom 203 8.3 m² 1 1
Bad/Vask 204 5.4 m² 0 1

Fasader

Enebolig

Sør
Materiale
Tre
Taktype
Saltak
Vinduer
4
Dører
1
Synlige etasjer
2
Vest
Materiale
Tre
Taktype
Saltak
Vinduer
4
Dører
1
Synlige etasjer
2
Nord
Materiale
Tre
Taktype
Saltak
Vinduer
3
Dører
1
Balkonger
1
Synlige etasjer
2

Garasje

Vest
Materiale
Tre
Taktype
Flatt tak
Vinduer
1
Dører
0
Synlige etasjer
1

Hendelser

21.04.2026 73/161 Vollenlia 63 - Svar på mangelbrev - Status for ferdigstillelse
13.04.2026 73/161 Vollenlia 63 - Svar på mangelbrev - Status for ferdigstillelse
25.03.2026 73/161 Fasadeendring og bruksendring av kjeller - Manglende ferdigattest
02.09.2020 76/1 Dialog om krav til utgraving av området - nytt VA anlegg m/tilhørende kummer
08.05.2020 73/161 Informasjon om arealer - Fasadeendring og bruksendring av kjeller
06.05.2020 73/161 Godkjent sanitærsøknad - Fasadeendring og bruksendring av kjeller
28.04.2020 73/161 Mangler beregning av bruksareal - Fasadeendring og bruksendring av kjeller
28.04.2020 73/161 Tillatelse til tiltak bruksendring tilleggsdel til hoveddel i kjeller og fasadeendring
17.03.2020 73/161 Kvitteringsbrev - Fasadeendring og bruksendring av kjeller
16.03.2020 73/161 Søknad om fasadeendring og bruksendring av kjeller