FacadeChange UnderBehandling Enebolig

Fasadeendring, pipeflytting og bruksendring på Andfjordveien 457

📍 Andfjordveien 457 , 8480 ANDENES

Nøkkelinfo

Sakstype
Fasadeendring
Bygningstype
Enebolig
Bruksareal
100 m²
Boenheter
1
Kommune
Andøy
Fylke
Nordland - Nordlánnda
Gnr / Bnr
61 / 39
Saksnummer
2025/1140
Fase
Under behandling

Om byggesaken

Prosjektet omfatter endring av fasade og flytting av pipe på eksisterende enebolig (Saltdalshytta) på Andfjordveien 457, samt bruksendring av en tidligere låve/fjøs til boligformål. Låven er ombygget og restaurert med ferdigattest fra 2013, men bruksendringen krever formell godkjenning og dispensasjon fra LNFR-arealformål. Det er etablert hems til lagringsformål i eneboligen, samt nye vinduer. Det er også etablert en platting med levegg ved garasjen. Tiltaket inkluderer oppdaterte tegninger, geotekniske vurderinger av flom- og leirskredfare, og søknad om unntak fra tekniske krav for eksisterende byggverk. Prosjektet har ansvarlige foretak for prosjektering og utførelse innen tømrerarbeid, sanitærinstallasjoner og montering av skorstein. Det er gitt tillatelse til fasadeendringer, pipeflytting og platting, mens bruksendringen av låven behandles som egen søknad med dispensasjon.

Produkter og materialer

Dører Ytterdører

🧱 Tre

Antall: 5

Eksisterende ytterdører i enebolig og snekkerbod

Dører i enebolig og til tekniske rom

Terrasse Platting med levegg

🧱 Tre og plexiglass

Antall: 1

Platting med levegg i tilknytning til eksisterende garasje

Ny platting med levegg ved garasje på etablert tun

VVS Sanitærinstallasjoner

Sanitærinstallasjoner i ombygget låve og enebolig

Oppgradering og installasjon av sanitærutstyr

Pipe Isolert stålpipe

🧱 Stål

Antall: 1

Ny plassering av isolert stålpipe på enebolig

Flytting og montering av pipe på eneboligen

Grunnarbeid Fundamentering

Fundamentering på fast grunn, vurdert geoteknisk som sikker

Grunnarbeid for eksisterende og ombygde bygg

Vinduer Fasadevindu

🧱 Tre med 3-lags energiglass

Antall: 2

Nye vinduer på enebolig, tilpasset eksisterende arkitektur

To nye fasadevinduer på eneboligen i forbindelse med fasadeendring

Vinduer Vinduer til hems

🧱 Tre

Antall: 2

Vinduer til hems i eneboligen, ikke søknadspliktig

To vinduer til hems brukt til lagringsformål

Tømrer Innvendig snekkerarbeid

Innvendige endringer i låve til boligformål, inkludert skillevegger og hems

Ombygging og tilpasning av låve til boligformål

Isolasjon Radonsperre

Radonsperre ikke etablert, tiltak vurderes for energieffektivitet

Isolasjon og tetting for inneklima og energi

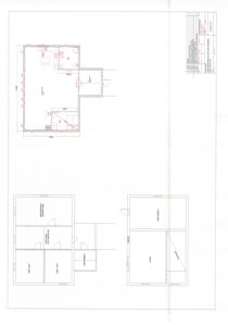
Plantegning

Enebolig 100.3 m²

Etasje 1 100.3 m²

Rom Areal Vinduer Dører
Soverom 101 6.4 m² 2 1
Bad 102 7.3 m² 1 1
Garderobe 103 4.5 m² 0 1
Tekn.rom 104 2.5 m² 0 1
Wc 105 2.3 m² 0 1
Gang 106 5.1 m² 0 2
Vindfang 107 5.3 m² 2 1
Vaskerom 108 7.0 m² 1 1
Hems 109 36.4 m² 2 1
Kjøkken/stue 110 45.2 m² 6 1
Altan 111 37.9 m² 0 0
Altan 112 2.6 m² 0 0

Etasje 0 0.0 m²

Rom Areal Vinduer Dører
Snekkerbod/Teknisk rom 001 0.0 m² 0 1
Gang med lav takhøyde 002 0.0 m² 0 3
Disp./Sov. 003 0.0 m² 0 1
Disp./Sov. 004 0.0 m² 0 1
Disponibelt 005 0.0 m² 0 1
Lager 006 0.0 m² 0 1
Disponibelt 007 0.0 m² 0 1

Garasje 98.8 m²

Etasje 1 69.0 m²

Rom Areal Vinduer Dører
Garasje 69.0 m² 0 0

Etasje 2 29.8 m²

Rom Areal Vinduer Dører
Lager/Disp. 29.8 m² 0 0

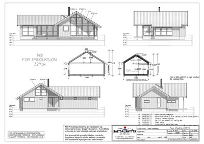
Fasader

Enebolig

Nord
Materiale
Tre
Taktype
Saltak
Takmat.
Tegl
Høyde
4.9 m
Mønehøyde
5.2 m
Vinduer
10
Dører
1
Balkonger
1
Synlige etasjer
2
Sør
Materiale
Tre
Taktype
Saltak
Takmat.
Tegl
Høyde
4.9 m
Mønehøyde
5.2 m
Vinduer
4
Dører
1
Synlige etasjer
2
Vest
Materiale
Tre
Taktype
Saltak
Takmat.
Tegl
Høyde
4.9 m
Mønehøyde
5.2 m
Vinduer
4
Dører
1
Synlige etasjer
2
Øst
Materiale
Tre
Taktype
Saltak
Takmat.
Tegl
Høyde
4.9 m
Mønehøyde
5.2 m
Vinduer
3
Dører
1
Synlige etasjer
2

Hendelser

15.04.2026 Spørsmål angående vedtak - purring
09.03.2026 Spørsmål angående vedtak i sak 25/1140 - Gnr. 61, bnr. 39
04.03.2026 Andfjordveien 457 Søknad om ferdigattest 61/39
25.02.2026 Gnr 61 bnr 39 - Andfjordveien 457 - Endring av bygning
16.02.2026 Andfjordveien 457 Supplering av søknad 61/39
12.12.2025 SV: Bestilling av veiledningsmøte - sak 25/1140
10.12.2025 Bestilling av veiledningsmøte - sak 25/1140
08.12.2025 Gnr 61 bnr 39 - Andfjordveien 457 - Endring av bygning
26.11.2025 Andfjordveien 457 Supplering av søknad 61/39
07.11.2025 Melding om mottatt søknad
06.11.2025 Søknad om tillatelse i ett trinn
16.10.2025 Behov for tilleggsdokumentasjon
25.08.2025 Søknad om endring av gitt tillatelse