FacadeChange Igangsettingstillatelse Enebolig

Fasadeendring og tilbygg på enebolig i Brattlien 36, Bergen

📍 Brattlien 36 , 5019 BERGEN

Nøkkelinfo

Sakstype
Fasadeendring
Bygningstype
Enebolig
Bruksareal
235 m²
Boenheter
1
Kommune
Bergen
Fylke
Vestland
Gnr / Bnr
166 / 87
Saksnummer
BYGG-2025/14713
Fase
Igangsettingstillatelse

Om byggesaken

Tiltaket omfatter omfattende fasadeendringer og tilbygg på en eksisterende tomannsbolig i Brattlien 36, Bergen. Eksisterende ark og karnapp rives og erstattes med et mer tilbaketrukket langstrakt takopplett som følger fasadelivet, med balkonger mot vest og nord. Det bygges et toetasjes tilbygg mot nord som trekkes inn mot fasaden. Byggets totale volum reduseres, og tiltaket gir en arkitektonisk oppgradering med moderne jugendstil-elementer, inkludert sprosseinndeling og skråskåret kledning. Nytt takvindu monteres i sørfasaden. Bygget har saltak med trekledning, og tiltaket inkluderer også oppgradering av bærende konstruksjoner, våtrom og innvendige sanitærinstallasjoner. Arealet er ca. 235 m² fordelt på tre etasjer, med flere soverom, bad, kjøkken og stue. Tiltaket er tilpasset terrenget og hensyntar skredfare, kulturminner og naboforhold, med dispensasjoner gitt for avstand til nabogrense og vei.

Produkter og materialer

Fasade Takopplett og balkong

🧱 Tre, skråskåret kledning med gjærete hjørner

Langstrakt takopplett som følger fasadelivet, balkong med lavt rekkverk i tre og spiler i malt stål, takvinkel 16 grader

Nytt takopplett erstatter eksisterende ark, balkonger mot vest og nord med estetisk tilpasset rekkverk

Gulv Innvendige gulvflater

Oppgradering av gulv i tilbygg og eksisterende bygg

Gulvflater i stue, kjøkken, soverom og gang

Tømrer Trekonstruksjoner og montering

🧱 Tre

Alle overflater, konstruksjoner, bærende og ikke bærende, takarbeid, innsetting av vinduer

Tømrerarbeid for fasadeendring og tilbygg

Dører Ytterdører og balkongdører

🧱 Tre med glassfelt

Dører i fasader og tilbygg, inkludert inngangsparti og balkongdører

Nye dører tilpasset fasadeendringer og tilbygget

Rekkverk Balkongrekkverk i tre og stål

🧱 Tre og malt stål

Lavt rekkverk med spiler i malt stål over trerekkeverk, stolper på utsiden

Sikring og estetisk rekkverk på balkonger

Mur Murarbeid på bad

Murarbeid og fuktsikring på bad

Fuktsikring og murarbeid i våtrom

Vinduer Fasadevindu og takvindu

🧱 Tre/aluminium, 3-lags energiglass

Antall: 7

4 vinduer mot vest reduseres fra 780x1400 til 3 stk 690x980, 1 nytt takvindu mot sør 780x1400, øvrige vinduer med sprosseinndeling i jugendstil

Nye vinduer med tilpasset størrelse og plassering, inkludert takvindu i sørfasade

Betong Plasstøpte betongkonstruksjoner

Plasstøpte betongkonstruksjoner i forbindelse med tilbygg

Fundamenter og bærende konstruksjoner for tilbygget

Grunnarbeid Fundamentering og drenering

Fundamentering på eksisterende grunn, drenering opprettholdes

Grunnarbeider for tilbygg og fasadeendring

Tak Saltak med båndtekking og skifer

🧱 Skifer og båndtekking

Eksisterende skifertak med båndtekking, takopplett med ny takflate

Takoppgradering med nytt takopplett og takvindu

Maling Utvendig og innvendig maling

Maling av fasade, balkongrekkverk og innvendige overflater

Overflatebehandling for beskyttelse og estetikk

VVS Innvendige sanitærinstallasjoner

Alle innvendige rørarbeider for sanitærinstallasjoner

Sanitærinstallasjoner i våtrom og øvrige rom

Isolasjon Isolasjon i vegger og tak

Isolasjon i nye vegger, tak og gulv i tilbygg og fasadeendringer

Termisk isolasjon for energieffektivitet og komfort

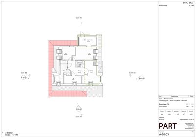
Plantegning

Enebolig 235.0 m²

Etasje 3 78.5 m²

Rom Areal Vinduer Dører
Sov 301 11.3 m² 2 1
Sov 302 13.8 m² 2 1
Sov 303 9.4 m² 2 1
Gang 304 10.0 m² 0 4
Bad 305 9.3 m² 0 1
Walk-in garderobe 306 7.4 m² 0 1
Loftstue 307 17.1 m² 2 1

Etasje 1 98.5 m²

Rom Areal Vinduer Dører
Stue 101 20.3 m² 1 1
Kjøkken 102 20.4 m² 1 1
Gang 103 5.5 m² 0 2
Sov 104 19.8 m² 1 1
Sov 105 10.6 m² 1 1
Sov 106 10.2 m² 1 1
VF 107 2.0 m² 0 1

Etasje 0 58.0 m²

Rom Areal Vinduer Dører
Bod 001 5.2 m² 0 1
Sov 002 10.2 m² 1 1
Sov 003 10.3 m² 1 1
Sov 004 13.3 m² 1 1
Gang 005 8.9 m² 0 0
Dusj 006 1.9 m² 0 1
Bad 007 3.0 m² 0 1
WC 008 1.8 m² 0 1

Fasader

Enebolig

Vest
Materiale
Tre
Taktype
Saltak
Vinduer
8
Dører
1
Synlige etasjer
2

Eksisterende

Øst
Materiale
Tre
Taktype
Saltak
Vinduer
2
Dører
1
Balkonger
1
Synlige etasjer
1

Hendelser

13.04.2026 Igangsettingstillatelse, 166/87, Brattlien 36
25.03.2026 Brattlien 36 Søknad om igangsettingstillatelse 166/87
16.10.2025 ubw ordre 20679587/kreditnota 20679588
15.10.2025 BYGG-2025/14713-12 - Ber om reduksjon av gebyr
14.10.2025 Ber om reduksjon av gebyr
06.10.2025 Fakturagrunnlag
06.10.2025 ubw ordre 20678629
26.09.2025 Rammetillatelse. 166/87. Brattlien 36.
02.09.2025 Byantikvarens uttalelse, Brattlien 36, gnr 166/ bnr 87. Fasadeendring og tilbygg bolig - BYGG-2025/14713
21.08.2025 Ber om veiledning- 166/87/0/0 Brattlien 36, fasade og tilbygg bolig
01.08.2025 Intern høring, Brattlien 36, fasade og tilbygg bolig
31.07.2025 Brattlien 36 Supplering av søknad 166/87
24.07.2025 Brattlien 36, foreløpig tilbakemelding på søknad om fasade og tilbygg bolig
22.07.2025 Bekreftelse på mottatt søknad
21.07.2025 Brattlien 36 Søknad om rammetillatelse 166/87