FacadeChange UnderBehandling Enebolig

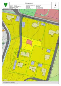
Fasadeendring og bruksendring i enebolig, Camilla Colletts veg 5

📍 Camilla Colletts veg 5 , 2080 EIDSVOLL

Nøkkelinfo

Sakstype
Fasadeendring
Bygningstype
Enebolig
Bruksareal
169 m²
Boenheter
1
Kommune
Eidsvoll
Fylke
Akershus
Gnr / Bnr
63 / 189
Saksnummer
2026/1005
Fase
Under behandling

Om byggesaken

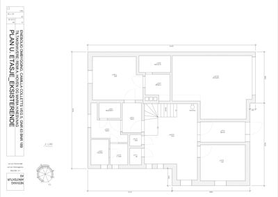
Prosjektet omfatter fasadeendring og bruksendring i en enebolig fra 1959 på Camilla Colletts veg 5. Fasadeendringene inkluderer nye vinduer og verandadører på øst- og nordfasaden, samt utskifting av vinduer med bedre energivinduer og fjerning av midtsprosser. Det monteres også et nytt takvindu på østfasaden. Bruksendringen innebærer omgjøring av tilleggsdel til hoveddel i underetasjen, med nye vaskerom og bad, samt innlemming av tidligere fyrrom og oljetank i garasjearealet. I 2. etasje skjer det bruksendring fra kaldloft til oppholdsrom, med ny rominndeling og isolering. Totalt areal er ca. 169 m² med 3 etasjer, og prosjektet inkluderer også nye ytterdører i brannklasse EI30 mot garasje. Fasadeendringene er tilpasset områdets karakter og reguleringsplanens krav.

Produkter og materialer

Grunnarbeid Garasjeareal innlemming

Eksisterende fyrrom og oljetank innlemmes i garasjeareal

Ombygging og tilpasning av garasjeareal

Vinduer Energivindu med vertikal inndeling

Antall: 9

Utskifting av gamle vinduer til bedre energivinduer, fjerning av horisontal midtsprosse, tilpasset eksisterende vindusdimensjoner

Nye vinduer på øst- og nordfasade, inkludert verandadører og skyvedør i hagestue

Isolasjon Innvendig etterisolering

Etterisolering i 2. etasje i forbindelse med bruksendring av kaldloft til oppholdsrom

Isolering av tak og vegger for å gjøre kaldloft til oppvarmet boligrom

Vinduer Takvindu

Antall: 1

Takvindu på østfasade, størrelse ca. 1,2m x 1,9m

Nytt takvindu for bedre lysinnslipp til trapperom

Tømrer Innvendig ombygging og rominndeling

Endring av rominndeling i underetasje og 2. etasje, inkludert nye vaskerom, bad og soverom

Innvendige konstruksjoner for bruksendring fra tilleggsdel til hoveddel

Fasade Trepanel

🧱 Tre

Fasadeendring med videreføring av husets stiluttrykk og eksisterende vindusdimensjoner

Oppgradering og vedlikehold av trefasader på øst-, nord-, vest- og sørfasade

Dører Ytterdør i brannklasse EI30

Antall: 2

Nye dører fra entré og bod inn til garasje

Brannklassifiserte ytterdører til garasje

Hendelser

17.04.2026 Gbnr. 63/189 - Camilla Colletts veg 5 - Akershus fylkeskommunes uttalelse - Fasadeendring og bruksendring fra tilleggsdel til hoveddel - uttalelse fra fylkeskommune
24.03.2026 Supplering av tidligere forespørsel: Gbnr. 63/189 - Camilla Colletts veg 5 - Fasadeendring og bruksendring fra tilleggsdel til hoveddel
24.03.2026 Gbnr. 63/189 - Camilla Colletts veg 5 - Supplering av søknad - bruksendring 2. etg, oppdatert tegning og ny BRA utregning
24.03.2026 Forespørsel om uttalelse fra antikvariske myndigheter - Gbnr. 63/189 - Camilla Colletts veg 5 - Fasadeendring og bruksendring fra tilleggsdel til hoveddel
17.02.2026 Gbnr. 63/189 - Søknad om tillatelse i ett trinn - fasadeendring og bruksendring