FacadeChange Igangsettingstillatelse Enebolig

Fasadeendring, bruksendring og tilbygg i Espens vei 17, Asker

📍 Espens vei 17 , 1391 VOLLEN

Nøkkelinfo

Sakstype
Fasadeendring
Bygningstype
Enebolig
Bruksareal
432 m²
Boenheter
1
Kommune
Asker
Fylke
Akershus
Gnr / Bnr
67 / 149
Saksnummer
23/2450
Fase
Igangsettingstillatelse

Om byggesaken

Prosjektet omfatter omfattende fasadeendringer og bruksendringer i en eksisterende enebolig på Espens vei 17 i Asker. Boligens fasader etterisoleres med 100 mm steinull og får ny vertikal trekledning, inkludert underetasjen. Eksisterende langsgående balkong på østfasaden rives, og det bygges ny balkong på ca. 3 m² ved foreldresoverommet i 1. etasje. Det etableres nytt karnapp på kjøkkenet (2,7 m²) og nye takoverbygg over hovedinngang og bi-inngang. Bruksendring i underetasjen innebærer omdisponering av rom, blant annet ombygging av lagerrom til treningsrom/gjesterom. Det installeres balansert ventilasjon med varmegjenvinning. Totalt areal er ca. 432 m², med flere rom i underetasje og 1. etasje, én trapp og én balkong. Tiltaket inkluderer også reetablering og justering av eksisterende terrengtrapper og repos. Prosjektet er delt opp i flere igangsettingsfaser med midlertidige brukstillatelser underveis.

Produkter og materialer

Fasade Vertikal trekledning

🧱 Tre, ny vertikal trekledning med krysslekting

Etterisolering med 100 mm steinull, ny trekledning også i underetasje

Fasade etterisoleres og kles med ny trekledning

Balkong Ny balkong med glassrekkverk

🧱 Glassrekkverk, søylefundament

Antall: 1

Ny balkong ca. 3 m² ved foreldresoverom i 1. etasje

Ny balkong med glassrekkverk for optimal utsikt

Dører Ytterdører og innerdører

Nye ytterdører med god isolasjon, endret plassering av dører i fasade og innvendig

Utskifting og ny plassering av dører i fasade og innvendig

Bruksendring Innvendig romomdisponering

Endret romarrondering i underetasje, lagerrom omgjort til treningsrom/gjesterom, bod økt til 12,8 m²

Bruksendring fra tilleggsdel til hoveddel i deler av underetasjen

VVS Balansert ventilasjonssystem

Antall: 1

System for balansert ventilasjon med varmegjenvinning, aggregat i underetasje, inntak/avkast i vestfasade

Etablering av balansert ventilasjon for bedre inneklima og energimerke B

Tak Takoverbygg

🧱 Tre, levegger og søyler

Antall: 2

Nye takoverbygg over hovedinngang (5,4 m²) og bi-inngang (3,7 m²)

Takoverbygg for værbeskyttelse og fasadeoppdeling

Vinduer Fasadevindu med 3-lags energiglass

🧱 Tre/alu ramme, 3-lags energiglass

Antall: 18

Nye vinduer med bedre åpning for gjennomlufting, endret plassering og størrelse

Utskifting av alle vinduer med nye energivinduer

Gulv Innvendige gulvflater

Ingen spesifikke detaljer, men ombygging og bruksendring i underetasje kan medføre nye gulvflater

Oppgradering og tilpasning av gulv i bruksendrede rom

Trapper Eksisterende terrengtrapp og repos

🧱 Tre og betong/støttemur

Antall: 1

Reetablering og justering av eksisterende terrengtrapp og repos ved hovedinngang, ingen nye trapper omsøkt

Terrengtrapp og repos opprettholdes med mindre modifikasjoner

Isolasjon Fasadeisolasjon

🧱 Steinull 100 mm

Etterisolering av fasader og lokal isolering av ringmur/fundamenter

Isolasjon for bedre energiytelse

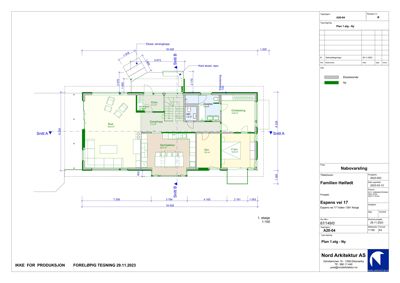
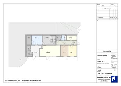
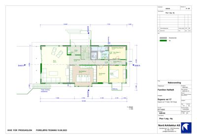
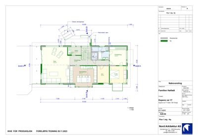
Plantegning

Enebolig 432.1 m²

Etasje 0 247.8 m²

Rom Areal Vinduer Dører
Kjellerstue 101 23.2 m² 1 1
Trening/gjest 102 13.5 m² 0 1
Bod 103 12.8 m² 0 1
Vask 104 11.4 m² 0 1
Gang/trapp 105 6.5 m² 0 2
Tekn 106 2.2 m² 0 1
Dusj/wc 107 4.7 m² 0 1
Hobbyrom 108 4.8 m² 1 1
Gang 109 9.7 m² 0 2
Sov 110 9.9 m² 1 1
Sov 111 9.9 m² 1 1
VF 112 1.3 m² 0 1
Trening/gjest 001 13.5 m² 0 1
Bod 002 12.8 m² 0 1
Vask 003 11.4 m² 0 1
Kjellerstue 004 23.2 m² 0 1
Sov 005 9.9 m² 0 1
Sov 006 9.9 m² 0 1
Gang/trapp 007 6.5 m² 0 1
Bod 008 4.1 m² 0 1
Tekn 009 2.2 m² 0 1
Dusj/wc 010 4.7 m² 0 1
Hobbyrom 011 4.8 m² 0 1
Gang 012 9.7 m² 0 1
VF 013 1.3 m² 0 1
Kjellerstue Kjellerstue 23.2 m² 0 1
Trening/gjest Trening/gjest 13.5 m² 2 0
Bod Bod 12.8 m² 1 1
Vaskerom Vask 11.4 m² 0 1
Gang Gang/trapp 6.5 m² 0 2
Teknisk rom Tekn 2.2 m² 0 1
Bad Dusj/wc 4.7 m² 0 1
Hobbyrom Hobbyrom 4.8 m² 0 1
Gang Gang 9.7 m² 0 2
Soverom Sov 9.9 m² 1 1
VVS-faskinett VF 1.3 m² 0 1
Trening/gjest U01 13.5 m² 0 1
Kjellerstue U02 23.2 m² 0 1
Sov U03 9.9 m² 0 1
Sov U04 9.9 m² 0 1
Bod U05 12.8 m² 0 1
Vask U06 11.4 m² 0 1
Gang/trapp U07 6.5 m² 0 2
Bod U08 4.1 m² 0 1
Tekn U09 2.2 m² 0 1
Dusj/wc U10 4.7 m² 0 1
Hobbyrom U11 4.8 m² 0 1
Gang U12 9.7 m² 0 3
VF U13 1.3 m² 0 1
Gang Trapp/gang 14.3 m² 0 2
Bad Bad 3.7 m² 0 2
Verksted Verksted 5.9 m² 1 1
Hobbyrom Hobby 10.9 m² 1 2
Kjøkken Kjøkken 9.2 m² 1 1

Etasje 1 184.3 m²

Rom Areal Vinduer Dører
Stue 101 43.4 m² 2 1
Spis/kjøkken 102 23.4 m² 1 1
Sov 103 9.0 m² 1 1
F.sov 104 12.6 m² 1 1
Gang/trapp 105 17.0 m² 0 0
Eatre 106 4.7 m² 0 0
WC 107 1.8 m² 0 1
Dusj/wc 108 7.4 m² 0 1
Omkledning 109 13.6 m² 0 1
Sov/kontor 110 9.0 m² 1 1
P.sov 111 12.6 m² 1 1
Balkong 112 0.0 m² 0 0
Stue Stue 43.4 m² 3 1
Spis/kjøkken Spis/kjøkken 23.4 m² 0 0
Sov Sov 9.0 m² 1 1
F.sov F.sov 12.6 m² 1 1
Entre Entre 4.7 m² 0 2
Gang/trapp Gang/trapp 17.0 m² 0 0
WC WC 1.8 m² 0 1
Dusj/wc Dusj/wc 7.4 m² 0 1
Omkledning Omkledning 13.6 m² 0 2
Kjøkken Kjøkken 18.4 m² 0 1
Trapp/gang Trapp/gang 16.2 m² 0 3
Vaskerom VF 2.2 m² 0 1
Gang Gang 5.3 m² 0 2

Fasader

Enebolig

Øst
Materiale
Tre
Taktype
Saltak
Takmat.
Tegl
Høyde
5.6 m
Mønehøyde
79.3 m
Vinduer
10
Dører
2
Balkonger
1
Synlige etasjer
2
Vest
Materiale
Tre
Taktype
Saltak
Takmat.
Tegl
Høyde
4.3 m
Mønehøyde
79.3 m
Vinduer
4
Dører
1
Synlige etasjer
1
Sør
Materiale
Tre
Taktype
Saltak
Takmat.
Tegl
Høyde
4.6 m
Mønehøyde
79.3 m
Vinduer
2
Dører
1
Balkonger
1
Synlige etasjer
1
Nord
Materiale
Tre
Taktype
Saltak
Takmat.
Tegl
Høyde
5.8 m
Mønehøyde
79.3 m
Vinduer
2
Dører
1
Balkonger
1
Synlige etasjer
2

Hendelser

15.04.2026 67/149 Espens vei 17 - Supplering av søknad
03.03.2026 67/149 Espens vei 17 - Midlertidig brukstillatelse 1 - Fasadeendring, bruksendring, ny veranda og nye takoverbygg
05.02.2026 67/149 Espens vei 17 - Søknad om midlertidig brukstillatelse
14.03.2024 67/149 Espens vei 17 - Spørsmål om faktura/gebyrer
28.02.2024 67/149 Espens Vei 17 - Igangsettingstillatelse 1 - Fasadeendring, bruksendring, ny veranda og nye takoverbygg
13.02.2024 67/149 Espens vei 17 - Søknad om igangsettingstillatelse
04.12.2023 67/149 Espens Vei 17 - Rammetillatelse
01.12.2023 67/149 Espens vei 17 - Supplering av søknad
05.10.2023 67/149 Ufullstendig søknad - Fasadeendring, bruksendring, ny veranda og nye takoverbygg
14.08.2023 67/149 Søknad om fasadeendring, ny balkong og nye takoverbygg
14.08.2023 67/149 Kvitteringsbrev - Fasadeendring, ny balkong og nye takoverbygg