FacadeChange Ferdigattest Enebolig

Fasadeendring med ny skyvedør på Gravabakken 5B, Porsgrunn

📍 Gravabakken 5A , 3940 PORSGRUNN

Nøkkelinfo

Sakstype
Fasadeendring
Bygningstype
Enebolig
Bruksareal
120 m²
Boenheter
1
Kommune
Porsgrunn
Fylke
Telemark
Gnr / Bnr
67 / 36
Saksnummer
2026/389
Fase
Ferdigattest

Om byggesaken

Fasadeendring på en eksisterende enebolig på 120,5 m² med saltak og trekledning. Endringen består i etablering av en ny heve-/skyvedør i bygningens langvegg mot øst og fjerning av verandadør på fasaden mot nord. Den nye skyvedøren har samme materialbruk, profilering og farge som eksisterende vinduer og dører, og gir økt dagslysinnslipp og bedre forbindelse mellom innvendige oppholdsrom og uteareal. Tiltaket medfører ingen endring i byggets volum, form eller arkitektoniske uttrykk, og er tilpasset bygningens opprinnelige formspråk. Fasaden består av tre med saltak tekket med tegl, og bygningen har to etasjer. Det er en eksisterende pipe og garasjeport på bygget. Tiltaket er gjennomført med hensyn til støyforhold og brannsikkerhet, og er ferdigstilt med godkjent ferdigattest.

Produkter og materialer

Fasade Trekledning

🧱 Tre

Fasade i tre med saltak tekket med tegl, ny dør tilpasses eksisterende materialbruk

Opprettholde helhetlig fasadeuttrykk med treverk og tegl tak

Tak Saltak med tegl

🧱 Tegl

Eksisterende saltak tekket med tegl

Takmateriale og konstruksjon opprettholdes

Dører Heve-/skyvedør

🧱 Tre med samme profilering og farge som eksisterende vinduer og dører

Antall: 1

Ny skyvedør i langvegg mot øst, tilpasset eksisterende fasade

Heve-/skyvedør som gir økt dagslys og bedre forbindelse til uteareal

Tømrer Fasadeendring og montering dør

Arbeid med å etablere ny skyvedør og fjerne verandadør

Tømrerarbeid knyttet til fasadeendring

Vinduer Fasadevindu

🧱 Tre

Antall: 10

Eksisterende vinduer i fasader, ny dør har samme profilering og farge

Vinduer i fasade, tilpasning til ny skyvedør

Dører Verandadør (fjernes)

Antall: 1

Fjerning av eksisterende verandadør på fasade mot nord

Fjerning av verandadør som del av fasadeendring

Grunnarbeid Terrasseinngrep

Tilpasning av uteareal ved ny skyvedør

Eventuelle mindre grunnarbeider for tilpasning av uteareal

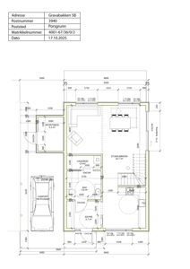
Plantegning

Enebolig 120.5 m²

Etasje 1 120.5 m²

Rom Areal Vinduer Dører
Stue/Kjøkken 101 42.5 m² 3 2
Bad 102 5.9 m² 0 1
Vaskerom 103 5.9 m² 0 1
Bod/Vask 104 2.9 m² 0 1
Soverom 105 0.0 m² 0 1

Fasader

Enebolig

Øst
Materiale
Tre
Taktype
Saltak
Takmat.
Tegl
Høyde
6.0 m
Mønehøyde
7.5 m
Vinduer
1
Dører
1
Synlige etasjer
2
Nord
Materiale
Tre
Taktype
Saltak
Takmat.
Tegl
Høyde
6.0 m
Mønehøyde
7.5 m
Vinduer
4
Dører
1
Synlige etasjer
2
Sør
Materiale
Tre
Taktype
Saltak
Vinduer
2
Dører
2
Synlige etasjer
2
Vest
Materiale
Tre
Taktype
Saltak
Vinduer
3
Dører
0
Synlige etasjer
2

Hendelser

21.04.2026 Ferdigattest - Gbnr. 67/36, Gravabakken 5 B - Fasadeendring
21.04.2026 Søknad om ferdigattest - Gbnr. 67/36, Gravabakken 5B
05.02.2026 Tillatelse - Gbnr. 67/36, Gravabakken 5 B - Fasadeendring
02.02.2026 Søknad om tillatelse i ett trinn - Gbnr. 67/36, Gravabakken 5B - fasadeendring
13.01.2026 Svar fra Telemark fylkeskommune på nabovarsel - Gbnr. 67/36, Gravabakken 5B