FacadeChange Soeknad Enebolig

Fasadeendring og ny vinterhage på Guiveien 80, Heggedal

📍 Guiveien 80 , 1389 HEGGEDAL

Nøkkelinfo

Sakstype
Fasadeendring
Bygningstype
Enebolig
Bruksareal
168 m²
Boenheter
1
Kommune
Asker
Fylke
Akershus
Gnr / Bnr
76 / 111
Saksnummer
26/933
Fase
Søknad

Om byggesaken

Prosjektet omfatter fasadeendringer på en eksisterende enebolig fra tidlig 1900-tall, inkludert utskifting og endring av vinduer for å tilbakeføre husets opprinnelige sveitserstil med 4-ramsvinduer. Eksisterende vinterhage og altan rives, og det bygges en ny vinterhage på ca. 11-13 m² sentrert på vestfasaden, tilpasset husets originale stil og proporsjoner. I tillegg oppføres et nytt inngangsparti under tak på østfasaden. Planløsning og trapp justeres for bedre brukbarhet og TEK-krav. Bygget har saltak med trepanel, og gesims- og mønehøyde beholdes uendret. Privat VA-stikkledning omlegges for å unngå konflikt med ny vinterhage.

Produkter og materialer

Trapper Innvendig trapp

Antall: 1

Ny trapp i 1. etasje tilpasset TEK-krav og forbedret brukbarhet

Ombygging og justering av trapp i 1. etasje

Maling Utvendig maling

Maling av nye og endrede fasadeflater for å matche eksisterende og opprinnelig stil

Overflatebehandling av fasade etter endringer

Tak Saltak med teglstein

🧱 Teglstein

Gesims- og mønehøyde beholdes uendret, saltak med teglstein på vestfasade

Tak på eksisterende bygg og tilbygg med saltak og teglstein

Grunnarbeid Fundamentering og drenering

Grunnarbeid for nytt tilbygg vinterhage og inngangsparti, inkl. fundamentering og drenering

Grunnarbeid for tilbygg og riving av eksisterende konstruksjoner

Vinduer Fasadevindu

🧱 Tre, 4-rams sveitserstil

Antall: 14

Vinduer endres og byttes ut for å tilbakeføre opprinnelig stil med 4-ramsvinduer i sveitserstil

Utskifting og endring av vinduer i fasadene for å tilpasse husets opprinnelige uttrykk

Riving Vinterhage og altan

Riving av eksisterende vinterhage og altan på henholdsvis vest- og sørfasade

Fjerning av eksisterende vinterhage og altan for å gi plass til nytt tilbygg

Tilbygg Vinterhage

🧱 Tre og glass

Antall: 1

Ny vinterhage på ca. 11-13 m², plassert sentrert på vestfasaden, med tidstypiske vinduer og detaljer

Oppføring av ny vinterhage som tilbygg til eneboligen

VVS Sanitærinstallasjon

Privat VA-stikkledning omlegges, separat sanitærmelding sendes av rørlegger

Omlegging av vann- og avløpsledninger i forbindelse med ny vinterhage

Tømrer Bygging av tilbygg og fasadeendringer

🧱 Tre

Tømrerarbeid for ny vinterhage, inngangsparti og fasadeendringer

Tømrerarbeid knyttet til tilbygg og fasadeendringer

Dører Ytterdør

🧱 Tre

Antall: 2

Inngangsdør flyttes ut og nytt inngangsparti bygges under tak på østfasaden

Ny inngangsdør og inngangsparti under tak

Tilbygg Inngangsparti under tak

🧱 Tre og taktekking

Antall: 1

Nytt inngangsparti under tak på østfasaden

Oppføring av nytt inngangsparti som tilbygg

Fasade Trepanel

🧱 Tre

Fasadeendring med tilpasning til original utførelse, trepanel på alle fasader

Fasadeendringer for å tilbakeføre originalt uttrykk og tilpasse tilbygg

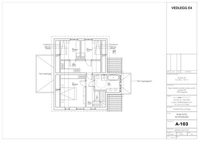
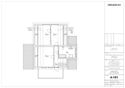
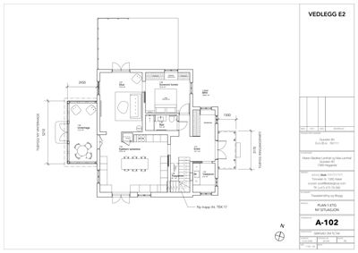
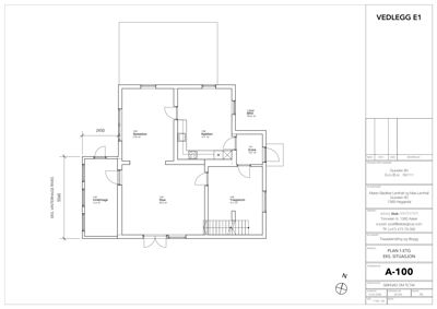
Plantegning

Enebolig 168.3 m²

Etasje 1 101.6 m²

Rom Areal Vinduer Dører
Entré 1.01 13.7 m² 0 2
Trapperom 1.02 17.1 m² 0 2
Stue 1.03 27.0 m² 2 2
Vinterhage 1.04 11.3 m² 2 1
Spisestue 1.05 17.6 m² 1 1
Kjøkken 1.06 17.7 m² 1 1
Stue 1.07 17.8 m² 1 1
Soverom/ kontor 1.08 12.5 m² 1 1

Etasje 2 66.7 m²

Rom Areal Vinduer Dører
Gang 2.01 8.5 m² 0 3
Soverom 2.02 17.9 m² 1 1
Soverom 2.03 14.1 m² 1 1
Soverom 2.04 14.2 m² 1 1
Bad 2.05 10.2 m² 0 1
Kryp loft Kryp loft 2.8 m² 0 0

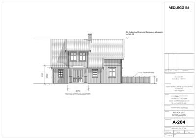
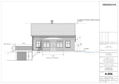
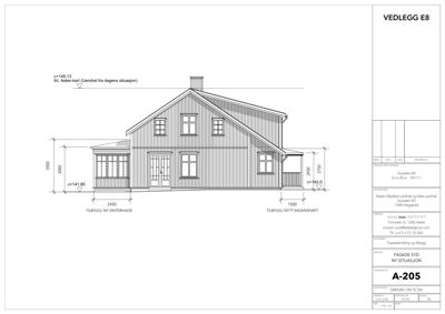
Fasader

Enebolig

Øst
Materiale
Tre
Taktype
Saltak
Høyde
4.2 m
Mønehøyde
8.3 m
Vinduer
4
Dører
1
Synlige etasjer
2
Vest
Materiale
Tre
Taktype
Saltak
Takmat.
Tegl
Høyde
6.0 m
Mønehøyde
8.2 m
Vinduer
5
Dører
1
Balkonger
1
Synlige etasjer
2
Sør
Materiale
Tre
Taktype
Saltak
Høyde
3.0 m
Mønehøyde
6.1 m
Vinduer
6
Dører
1
Balkonger
1
Synlige etasjer
2
Nord
Materiale
Tre
Taktype
Saltak
Høyde
3.0 m
Mønehøyde
8.2 m
Vinduer
5
Dører
1
Balkonger
2
Synlige etasjer
2

Hendelser

13.04.2026 76/111 Guiveien 80 - Mottakskontroll
23.03.2026 76/111 Guiveien 80 - Søknad om rammetillatelse - Fasadeendring, riving og bygging av ny vinterhage