FacadeChange Unknown Enebolig

Fasadeendring og våtromsoppgradering i enebolig på Hankø 23

📍 Hankø 23 , 1622 GRESSVIK

Nøkkelinfo

Sakstype
Fasadeendring
Bygningstype
Enebolig
Boenheter
1
Kommune
Fredrikstad
Fylke
Østfold
Gnr / Bnr
105 / 29
Saksnummer
2026/6332
Fase
Unknown

Om byggesaken

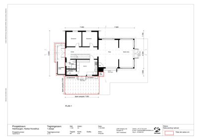
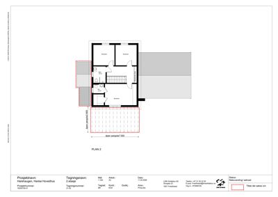
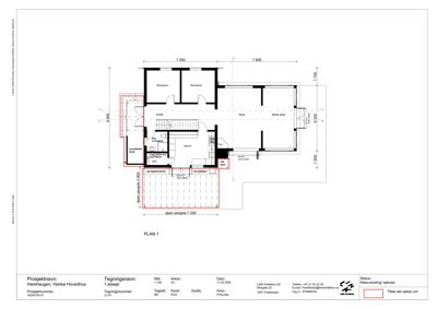
Prosjektet omfatter fasadeendringer på en eksisterende to-etasjes enebolig med saltak i tre, malt gul. Endringene inkluderer utskifting og justering av vinduer og dører, hvor sprosser tilpasses for å harmonere med byggets opprinnelige uttrykk. Taket ved inngangspartiet endres fra pulttak til saltak for å styrke bygningens karakter. Uteområdet får et nytt utekjøkken, en utepeis og en åpen pergola, tilpasset eksisterende bygningsuttrykk for å skape et funksjonelt og estetisk uterom. Innvendig oppgraderes våtrom, inkludert bad og WC, med nye sanitærinstallasjoner. Arealet endres ikke, og tiltaket har tiltaksklasse 1 med ansvarlige foretak for prosjektering, utførelse og VVS.

Produkter og materialer

Grunnarbeid Uteområde for pergola og utekjøkken

Grunnarbeid for oppføring av pergola, utekjøkken og utepeis

Grunnarbeid for uteromsbygg

VVS Sanitærinstallasjoner

Nye innvendige sanitærinstallasjoner i bad og WC

Oppgradering av sanitærinstallasjoner i våtrom

Tømrer Trekonstruksjoner

🧱 tre

Montering av trekonstruksjoner for pergola, takendring og fasadeendringer

Tømrerarbeid for fasadeendring og utebygg

Terrasse Utekjøkken

Antall: 1

Oppføring av utekjøkken i uteområdet

Nytt utekjøkken for uteområde

Dører Ytterdører i tre

🧱 tre, malt gul

Antall: 5

Dører i fasaden endres, inkludert inngangsdør og dører til uteområde

Nye ytterdører tilpasset fasadeendring

Vinduer Fasadevindu med sprosser

🧱 tre, malt gul

Antall: 20

Vinduer tilpasses med sprosser for å harmonere med eksisterende fasade, utskifting av eksisterende vinduer i to-etasjes del og justering i en-etasjes del

Nye fasadevinduer med sprosser for fasadeharmonisering

Tak Saltak ved inngangsparti

🧱 tre, takstein

Antall: 1

Endring fra pulttak til saltak ved inngangspartiet, med samme ytterlinje som tidligere pultak

Nytt saltak ved inngang for å styrke byggets opprinnelige karakter

Bad Våtromsoppgradering

Antall: 2

Oppgradering av bad og WC med nye sanitærinstallasjoner

Innvendig oppgradering av våtrom

Fasade Trepanel, malt gul

🧱 tre

Fasade i tre med gul maling, tilpasning ved vindus- og dørbytte

Fasadeoppgradering med maling og trepanel

Terrasse Åpen pergola

🧱 tre

Antall: 1

Oppføring av åpen pergola i tilknytning til utekjøkken

Ny åpen pergola for uterom

Terrasse Utepeis

Antall: 1

Etablering av utepeis i uteområdet

Ny utepeis for uterom

Fasader

Hovedhus

Sørvest
Materiale
Tre
Taktype
Saltak
Høyde
7.8 m
Vinduer
4
Dører
1
Synlige etasjer
2
Søro
Materiale
Tre
Taktype
Saltak
Høyde
5.0 m
Vinduer
4
Dører
1
Synlige etasjer
2
Nordøst
Materiale
Tre
Taktype
Saltak
Vinduer
4
Dører
0
Synlige etasjer
2
Nordvest
Materiale
Tre
Taktype
Saltak
Høyde
4.3 m
Vinduer
3
Dører
1
Synlige etasjer
2
Sør-vest
Materiale
Tre
Taktype
Saltak
Vinduer
5
Dører
1
Synlige etasjer
2
Sør-øst
Materiale
Tre
Taktype
Saltak
Vinduer
3
Dører
1
Synlige etasjer
2
Nord-øst
Materiale
Tre
Taktype
Saltak
Vinduer
4
Dører
0
Synlige etasjer
2
Nord-vest
Materiale
Tre
Taktype
Saltak
Vinduer
2
Dører
1
Synlige etasjer
2

Hendelser

14.04.2026 Trekker søknad - Hankø 23 - Eiendom 105/29 - Endring - våtrom, Fasadeendring
14.04.2026 Trekker søknad - Hankø 23 - Eiendom 105/29 - Fasadeendring
14.04.2026 Tilbaketrekking av søknad - Hankø 23 - Eiendom 105/29
30.03.2026 Anmodning om uttalelse - eiendom 105/29 - Fasadeendring Hankø
20.03.2026 Status i sak
19.03.2026 Spørsmål om status - Hankø 23 - Eiendom 105/29 - Endring - våtrom, Fasadeendring
25.02.2026 Bekreftelse på mottatt søknad - Ett-trinns søknad - Endring - våtrom, Fasadeendring - Hankø 23 - Eiendom 105/29
25.02.2026 Ett-trinns søknad - Hankø 23 - Eiendom 105/29 - Endring - våtrom, Fasadeendring