FacadeChange Rammetillatelse Enebolig

Fasadeendring med utskifting av vinduer på Isveien 64

📍 Isveien 64 , 1390 VOLLEN

Nøkkelinfo

Sakstype
Fasadeendring
Bygningstype
Enebolig
Boenheter
1
Kommune
Asker
Fylke
Akershus
Gnr / Bnr
63 / 200
Saksnummer
26/1038
Fase
Rammetillatelse

Om byggesaken

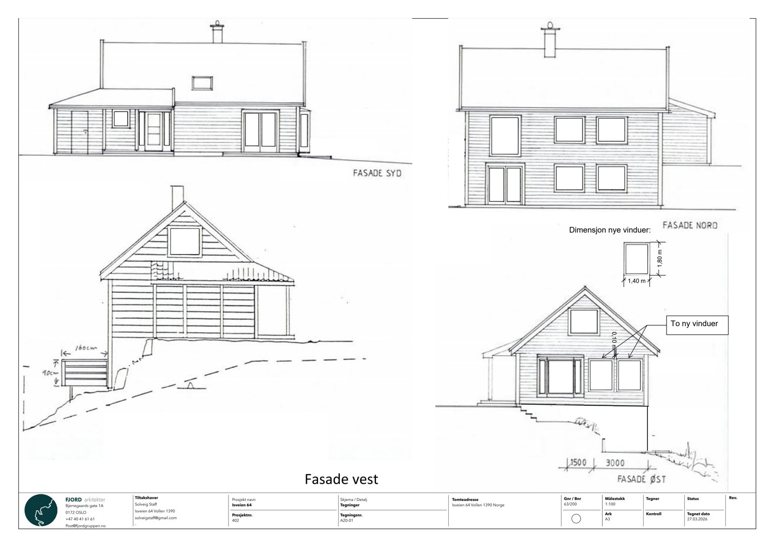
Fasadeendring på en enebolig i Isveien 64 som omfatter utskifting av eksisterende vinduer og dører som er ca. 38 år gamle og i dårlig teknisk stand. To eksisterende vinduer slås sammen, og det settes inn to nye vinduer på østfasaden som er marginalt høyere enn de tidligere. De nye vinduene tilpasses øvrige vinduer i utforming og plassering for å sikre en helhetlig fasade. Det er ingen innvendige endringer, og tiltaket medfører bedre energistandard og forbedret teknisk tilstand. Fasaden er i tre med saltak, og bygningen har vinduer og dører fordelt på alle fasader. Nabovarsel er gjennomført uten merknader, og tiltaket er tilpasset eksisterende bebyggelse og terreng.

Produkter og materialer

Fasade Trepanel

🧱 tre

Eksisterende trepanel på fasadene opprettholdes og tilpasses nye vinduer

Fasaden er i tre og skal tilpasses nye vinduer for helhetlig uttrykk

Tømrer Montering av vinduer og dører

Montering av nye vinduer og dører, inkludert tilpasning til eksisterende fasade

Utførelse av tømrerarbeid knyttet til utskifting og montering av vinduer og dører

Vinduer Utskifting av fasadevinduer

🧱 tre/kompositt eller tilsvarende, uten sprosser

Antall: 14

Nye vinduer tilpasses eksisterende i utforming og plassering, uten sprosser, inkludert to nye vinduer på østfasaden som er marginalt høyere enn tidligere

Utskifting av alle eksisterende vinduer på eneboligen, inkludert sammenslåing av to vinduer og nye vinduer på østfasaden

Tak Saltak

🧱 ukjent

Eksisterende saltak opprettholdes, ingen endring i taket

Takets saltakstruktur beholdes uendret

Dører Utskifting av ytterdører

Antall: 6

Nye ytterdører i fasaden, tilpasset eksisterende stil og teknisk standard

Utskifting av eksisterende ytterdører som er i dårlig teknisk stand

Fasader

Enebolig

Syd
Materiale
Tre
Taktype
Saltak
Vinduer
3
Dører
2
Synlige etasjer
1
Nord
Materiale
Tre
Taktype
Saltak
Vinduer
6
Dører
1
Synlige etasjer
2
Vest
Materiale
Tre
Taktype
Saltak
Vinduer
1
Dører
0
Synlige etasjer
1
Øst
Materiale
Tre
Taktype
Saltak
Vinduer
4
Dører
1
Synlige etasjer
1
Sør
Materiale
Tre
Taktype
Saltak
Vinduer
3
Dører
2
Synlige etasjer
1

Eksisterende

Vest
Materiale
Tre
Taktype
Saltak
Vinduer
1
Dører
0
Synlige etasjer
2

Hendelser

21.04.2026 63/200 Isveien 64 - Tillatelse til tiltak i ett trinn - fasadeendring
30.03.2026 63/200 Isveien 64 - Søknad om tillatelse i ett trinn - Fasadeendring - Vinduer