FacadeChange UnderBehandling Enebolig

Fasadeendring og bruksendring av loft i Jacob Aalls vei 4, Bergen

📍 Jacob Aalls vei 4 , 5063 BERGEN

Nøkkelinfo

Sakstype
Fasadeendring
Bygningstype
Enebolig
Bruksareal
136 m²
Boenheter
1
Kommune
Bergen
Fylke
Vestland
Gnr / Bnr
159 / 409
Saksnummer
BYGG-2025/17379
Fase
Under behandling

Om byggesaken

Prosjektet omfatter bruksendring av loft i en eksisterende enebolig på 135,9 m², hvor loftet på ca. 35,9 m² endres fra tilleggsdel til hoveddel. Det installeres to nye takvinduer av typen Velux 78x140 cm, og det utføres fasadeendringer på vest- og østfasade, inkludert montering av utfellbar brannstige med ryggbøyle. Det er også gjennomført endringer i bærende konstruksjoner i 2. etasje, hvor en bærevegg erstattes med bærebjelke. Brannkonseptet er oppdatert med automatisk slokkeanlegg, og det etableres brannskiller i første etasje. Fasaden består av mur og tre, med saltak. Prosjektet inkluderer også montering av takbro og rekkverk i forbindelse med rømningsvei. Bygget har to etasjer pluss loft, med rom som stue, kjøkken, soverom og bad.

Produkter og materialer

Brannvern Automatisk slokkeanlegg

Antall: 1

Automatisk slokkeanlegg installert i loftsboenhet

Brannsikkerhetstiltak i forbindelse med bruksendring av loft

Dører Ytterdør i branncellebegrensende yttervegg

Antall: 1

Benevnt som vindu/luftelukeventil i branntegning plan 1

Ytterdør i branncellebegrensende vegg i første etasje

Elektro Elektrisk anlegg

Oppgradering av elektrisk anlegg i loftsboenhet i forbindelse med bruksendring

Tømrer Bærebjelke

🧱 Tre/stål

Erstatning av bærevegg med bærebjelke i 2. etasje

Endring av bærende konstruksjon i 2. etasje i forbindelse med bruksendring

VVS Rørinstallasjon

Oppgradering av VVS-anlegg i forbindelse med bruksendring av loft

Trapper Brannstige med ryggbøyle

🧱 Lakkert metall

Antall: 1

Utfellbar brannstige med ryggbøyle, montert på konsoller støpt i murvegg

Brannstige som rømningsvei fra loft, med takbro og rekkverk

Vinduer Takvindu

Antall: 2

Velux 78 x 140 cm

To nye takvinduer for loftsetasje

Fasade Mur og tre

🧱 Mur og tre

Fasadeendring på vest- og østfasade, inkludert montering av utfellbar brannstige med ryggbøyle

Fasadeendringer med nye vinduer og brannstige, samt fjerning av eksisterende brannstige

Brannvern Brannskille i første etasje

Brannskille i gang og trapperom i første etasje

Brannskille for å oppfylle brannsikkerhetskrav ved bruksendring

Gulv Innvendige gulv

Oppgradering eller tilpasning av gulv i loftsboenhet (antatt nødvendig ved bruksendring)

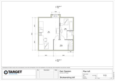
Plantegning

Enebolig 135.9 m²

Etasje 2 100.0 m²

Rom Areal Vinduer Dører
Stue 201 24.3 m² 2 1
Gang 202 4.8 m² 0 2
Kjøkken 203 8.6 m² 1 1
Sov. 204 9.2 m² 1 1

Etasje 3 35.9 m²

Rom Areal Vinduer Dører
Sov 301 20.0 m² 0 1
Bad 302 9.4 m² 0 1
Gang 303 6.5 m² 0 1

Blok 0.0 m²

Etasje 1 0.0 m²

Rom Areal Vinduer Dører
Stue 101 0.0 m² 0 0
Sove 102 0.0 m² 0 0
Kjøkken 103 0.0 m² 0 0
Bad 104 0.0 m² 0 0
Gang 105 0.0 m² 0 0

Fasader

Bruksendring loft

Vest
Materiale
Mur
Taktype
Saltak
Vinduer
11
Dører
4
Balkonger
4
Synlige etasjer
2

Blok

Nord
Materiale
Mur
Taktype
Saltak
Vinduer
16
Dører
4
Synlige etasjer
2
Sør
Materiale
Mur
Taktype
Saltak
Vinduer
16
Dører
4
Synlige etasjer
2

Bolig

Øst
Materiale
Mur
Taktype
Saltak
Vinduer
12
Dører
3
Synlige etasjer
2

Enebolig

Vest
Materiale
Tre
Taktype
Saltak
Vinduer
10
Dører
1
Balkonger
4
Synlige etasjer
2
Nord
Materiale
Mur
Taktype
Saltak
Vinduer
4
Dører
2
Balkonger
1
Synlige etasjer
2

Hendelser

08.04.2026 Mangler uttale Bergen Vann- 159/409/0/0 Jacob Aalls vei 4, endring av bygg - utvendig - Fasade
07.04.2026 Jacob Aalls vei 4 Supplering av søknad 159/409
07.04.2026 Jacob Aalls vei 4 Supplering av søknad 159/409
13.02.2026 Tilbakemelding fra byantikvar og spørsmål om revisjon - emailkorrespondanse
02.02.2026 Tilbakemelding fra byantikvar og spørsmål om revisjon
28.01.2026 Byantikvarens tilbakemelding BYGG-2025/17379, 159/409, Jacob Aalls vei 4, fasadeendring og bruksendring
20.01.2026 Jacob Aalls vei 4 Supplering av søknad 159/409
20.01.2026 Jacob Aalls vei 4 Supplering av søknad 159/409
11.12.2025 Intern korrespondanse, BYGG-2025/17379, 159/409, Jacob Aalls vei 4, fasadeendring og bruksendring
11.12.2025 Behov for tilleggsopplysninger, 159/409, Jacob Aalls vei 4
11.11.2025 Bekreftelse på mottatt søknad
08.11.2025 Jacob Aalls vei 4 Søknad om tillatelse i ett trinn 159/409