FacadeChange Soeknad Enebolig

Endring og fasadeendring på enebolig i Knut Auberts Vei 26, Drammen

📍 Knut Auberts vei 26 , 3035 DRAMMEN

Nøkkelinfo

Sakstype
Fasadeendring
Bygningstype
Enebolig
Bruksareal
82 m²
Boenheter
1
Kommune
Drammen
Fylke
Buskerud
Gnr / Bnr
23 / 157
Saksnummer
22/29900
Fase
Søknad

Om byggesaken

Prosjektet omfatter en enebolig med totalt bruksareal på 81,66 m² fordelt på en etasje med rom som stue, kjøkken, bad, vaskerom, sportsbod og entre, samt en liten terrasse på 2,2 m². Bygget har to etasjer med fasader i tre, flatt tak på nordfasade og valmtak på sørfasade, samt pipe. Det er én trapp i bygget. Endringene inkluderer fasadeendringer og bytte av leverandør for huset, men husets rammer og volum er uendret. Bygget skal oppføres med tømmerpanel og har flere vinduer og dører fordelt på rommene. Prosjektet inkluderer også grunnarbeid, betongkonstruksjoner, radonsikring, sanitærarbeider og montasje av pipe og ildsted.

Arbeidsomfang

- Nybygg med betongkonstruksjoner og grunnarbeid (VA, innmåling) - Radonsikring i nybygget - Montasje av precut byggeselementer - Installasjon av pipe og ildsted - Sanitærarbeider og våtromsdetaljer - Vindusmontering og fasadebehandling

Produkter og materialer

Pipe Pipe og ildsted

Antall: 1

Montasje av pipe og ildsted utført av NBC-GROUP NORGE

Pipe og ildsted til enebolig

Grunnarbeid Grunnarbeid og VA

Grunnarbeid og vann- og avløpsarbeider utført av HAGA ANLEGGSERVICE AS

Grunnarbeid og VA-installasjoner for bolig

Trapper Innvendig trapp

Antall: 1

Innvendig trapp i enebolig

Trapp mellom etasjer i enebolig

Maling Innvendig og utvendig maling

Maling av innvendige og utvendige flater

VVS Sanitærarbeider

Sanitærarbeider utført av DRANGEDAL RØR AS

Sanitærinstallasjoner i bolig

Gulv Innvendige gulv

Innvendige gulv i bolig, antatt parkett eller tilsvarende

Tak Flatt tak og valmtak

Flatt tak på nordfasade, valmtak på sørfasade

Taktekking for to forskjellige taktyper på enebolig

Fasade Trepanel

🧱 Tømmerpanel

Fasader i tre, nordfasade med flatt tak, sørfasade med valmtak

Trepanel til fasade på enebolig med to etasjer

Elektro Elektriske installasjoner

Elektriske installasjoner antatt nødvendig for bolig

Tømrer Montasje precutt byggesett

🧱 Tømmer

Montasje av precutt byggesett levert av Finnlammeli - Den Finland OY

Tømrerarbeid for oppføring av enebolig i tømmer

Betong Betongkonstruksjoner

Betongarbeider utført av NORDISK SPRØYTEBETONG AS

Betongkonstruksjoner for bolig

Dører Ytterdører

Antall: 4

2 dører på nordfasade, 2 dører på sørfasade

Ytterdører til enebolig

Radonsikring Radonsikring

Radonsikring utført av RADONMANNEN AS

Radonsikring i bolig

Vinduer Fasadevindu

🧱 Tre/Aluminium ramme

Antall: 8

4 vinduer på nordfasade, 4 vinduer på sørfasade

Fasadevinduer med sikkerhetsglass

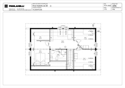
Plantegning

Enebolig 81.7 m²

Etasje 1 81.7 m²

Rom Areal Vinduer Dører
Stue1 101 41.8 m² 1 1
Kjøkken 102 11.9 m² 1 1
Bad 103 3.9 m² 0 1
Vask 104 3.7 m² 0 1
Sportsbod 105 6.9 m² 1 1
Entre 106 10.8 m² 0 2
Terrasse 107 2.2 m² 0 1

Fasader

Enebolig

Nord
Materiale
Tre
Taktype
Flatt tak
Vinduer
4
Dører
2
Synlige etasjer
2
Sør
Materiale
Tre
Taktype
Valmtak
Vinduer
4
Dører
2
Synlige etasjer
2

Hendelser

21.04.2026 Knut Auberts vei 26, endret tiltakshaver tas til orientering
07.04.2026 Knut Auberts vei 26 Supplering av søknad 23/157 supplering
31.10.2022 Knut Auberts vei 26, endringene tas til orientering
18.10.2022 Knut Auberts Vei 26 Supplering av søknad 23/157 rammetillatelse
04.10.2022 Knut Auberts Vei 26, melding om mottatt søknad vedtak
03.10.2022 Knut Auberts Vei 26 Søknad om endring av gitt tillatelse eller godkjenning 23/157 søknad