FacadeChange Rammetillatelse Enebolig

Fasadeendringer og terrasseutvidelse på enebolig i Kranveien 44, Risør

📍 Kranveien 44 , 4950 RISØR

Nøkkelinfo

Sakstype
Fasadeendring
Bygningstype
Enebolig
Bruksareal
146 m²
Boenheter
1
Kommune
Risør
Fylke
Agder
Gnr / Bnr
16 / 942
Saksnummer
2026/730
Fase
Rammetillatelse

Om byggesaken

Fasadeendringer på en enebolig i Kranveien 44 inkluderer riving av to tilbygg og deler av veranda, samt utvidelse av veranda/terrasse mot hage og sjø med inntil 2 meter. Eksisterende takoverbygg ved inngang og hagestue rives, og det etableres et mindre inngangsparti. Etter endringene får huset et bebygd areal på 145,5 m² inkludert terrasser og inngang, med garasje på ca. 38 m². Fasaden er i tre med saltak, og tiltaket innebærer endring av vindusplassering og størrelser, samt nye skyvedører på gavlvegg mot hage og sjø. Terrassen bygges inntil nabogrense med krav om nabosamtykke eller alternativ avstand på 1 meter. Tiltaket er tilpasset eksisterende bolig og landskap, og ligger innenfor 100-metersbeltet til sjø med dispensasjon.

Produkter og materialer

Terrasse Veranda/terrasse utvidelse

🧱 Tre

Utvidelse av eksisterende terrasse med inntil 2 meter mot hage og sjø, høyde 0,5 m over terreng

Utvidelse av terrasse/veranda med krav om nabosamtykke eller 1 m avstand til nabogrense

Vinduer Fasadevindu

Antall: 11

Endring av plassering og størrelser på vinduer

Nye og endrede fasadevinduer i tre på alle fasader

Tømrer Bygningsarbeid

Utførelse av terrasse, veranda, fasadeendringer og riving

Tømrerarbeid knyttet til fasadeendringer, terrasseutvidelse og riving

Fasade Kledning

🧱 Tre

Bytte av kledning på fasade i tre

Grunnarbeid Terrengplanering

Planering og opparbeidelse av terreng rundt terrasse som vist på fasadetegninger

Terrengarbeid for tilpasning av ny terrasse og uteareal

Riving Tilbygg og overbygg

Riving av to tilbygg, takoverbygg ved inngang, hagestue og deler av veranda, totalt ca. 34 m²

Riving av eksisterende tilbygg og overbygg som del av fasadeendring

Dører Skyvedør på gavlvegg

Antall: 2

Skyvedører mot hage og sjø

Nye skyvedører på gavlvegg mot hage og sjø

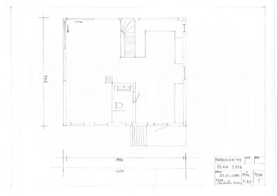
Plantegning

Enebolig 75.8 m²

Etasje 1 75.8 m²

Rom Areal Vinduer Dører
Stue 101 58.5 m² 2 1
Bad 102 17.3 m² 0 1

Fasader

Enebolig

Nord
Materiale
Tre
Taktype
Saltak
Vinduer
3
Dører
1
Balkonger
1
Synlige etasjer
1
Sør
Materiale
Tre
Taktype
Saltak
Vinduer
2
Dører
1
Balkonger
1
Synlige etasjer
1
Vest
Materiale
Tre
Taktype
Saltak
Vinduer
4
Dører
1
Balkonger
1
Synlige etasjer
1
Øst
Materiale
Tre
Taktype
Saltak
Vinduer
2
Dører
1
Balkonger
1
Synlige etasjer
1

Hendelser

01.04.2026 Kranveien 44, godkjent søknad om fasadeendringer