FacadeChange UnderBehandling Enebolig

Fasadeendring og bruksendring på enebolig i Mulelia 22, Ålesund

📍 Mulelia 22 , 6018 ÅLESUND

Nøkkelinfo

Sakstype
Fasadeendring
Bygningstype
Enebolig
Bruksareal
70 m²
Boenheter
1
Kommune
Ålesund
Fylke
Møre og Romsdal
Gnr / Bnr
50 / 267
Saksnummer
2026/3939
Fase
Under behandling

Om byggesaken

Eksisterende enebolig i Mulelia 22 gjennomgår fasadeendring og mindre bruksendring. Endringene inkluderer flytting og utskifting av vinduer og dører i nordfasaden, etablering av nye balkongdører, og utvidelse av innhukk i nordfasade. Innvendig rives deler av bærevegg i underetasjen som erstattes med drager i tak, og gangareal mot nord endres fra tilleggsdel til hoveddel, noe som gir to store soverom på ca. 16 m² hver med vindu og balkongdør. Byggets totale areal er ca. 69,6 m² i underetasjen, med en trapp og flere rom. Fasaden er i tre med saltak, og tiltaket inkluderer tekniske tilpasninger i henhold til TEK17. Det foreligger godkjent ansvarsrett for arkitektur og konstruksjon.

Produkter og materialer

Dører Innvendige og utvendige dører

🧱 tre eller tilsvarende

Antall: 4

Ny dør i ny utsparing i underetasje, dør erstattes med vindu i fasade

Flytting og utskifting av dører i underetasje og fasade

Fasade Trepanel

🧱 tre

Fasade i tre, nordfasade endres med utvidelse av innhukk

Endring av fasade med utvidelse av innhukk og flytting av vinduer/dører

Gulv Innvendige gulv

Ingen spesifikk informasjon, men sannsynlig behov for tilpasning ved bruksendring

Gulvtilpasning i forbindelse med bruksendring og ombygging

VVS Sanitærinstallasjoner

Ingen spesifikke endringer oppgitt, men bad og vaskerom eksisterer

Mulig tilpasning av VVS i forbindelse med bruksendring

Tak Saltak

🧱 tre, antatt tekket med takstein eller tilsvarende

Eksisterende saltak opprettholdes

Takstruktur beholdes, ingen endring oppgitt

Tømrer Bærekonstruksjon og drager

🧱 tre/stål drager

Riving av deler av bærevegg i underetasje, erstattes med drager i tak

Endring av bærende konstruksjon i underetasje

Trapper Innvendig trapp

Antall: 1

Eksisterende trapp i bolig, ingen endring oppgitt

Eksisterende trapp i bolig, sannsynlig tilpasning ved ombygging

Elektro Elektriske installasjoner

Ingen spesifikke opplysninger, men normalt nødvendig ved ombygging

Elektriske tilpasninger i forbindelse med fasade- og bruksendring

Vinduer Fasadevindu og balkongdør

🧱 tre med 3-lags energiglass

Antall: 6

Eksisterende balkongdør erstattes med vindu, nye balkongdører settes inn i nordfasade

Bytte og flytting av vinduer og balkongdører i nordfasade

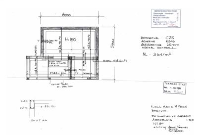
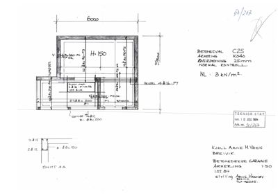
Plantegning

Enebolig 69.6 m²

Etasje 0 69.6 m²

Rom Areal Vinduer Dører
Soverom 1 001 16.1 m² 1 1
Soverom 2 002 16.1 m² 1 1
Mellomgang 003 3.7 m² 0 2
Bad 004 0.0 m² 0 1
Gang 005 0.0 m² 0 1
Soverom 006 0.0 m² 1 1
Soverom 007 0.0 m² 1 1
Gang 101 0.0 m² 0 0
Vaskerom 102 0.0 m² 0 0
WC 103 0.0 m² 0 0
Sov 104 0.0 m² 0 0
Bod 105 0.0 m² 0 0
Hobby 106 0.0 m² 0 0

Etasje 1 0.0 m²

Rom Areal Vinduer Dører
Gang 201 0.0 m² 0 0
Stue 202 0.0 m² 0 0
Kjøkken 203 0.0 m² 0 0
Sov 204 0.0 m² 0 0
Bad 205 0.0 m² 0 0

Fasader

Enebolig

Nord
Materiale
Tre
Taktype
Saltak
Vinduer
6
Dører
4
Balkonger
2
Synlige etasjer
2

Garasje

Øst
Materiale
Tre
Taktype
Saltak
Vinduer
1
Dører
1
Balkonger
1
Synlige etasjer
2

Hovedbygg

Nord
Materiale
Tre
Taktype
Saltak
Vinduer
3
Dører
1
Synlige etasjer
2

Hendelser

21.04.2026 Gbnr. 50/267 - Ansvarsområdet i gjennomføringsplan - Mulelia 22 - Fasadeendring og mindre bruksendring
20.04.2026 Gbnr. 50/267 - Ansvarsområder i gjennomføringsplan - Mulelia 22 - Fasadeendring og mindre bruksendring
03.03.2026 Gbnr. 50/267 - Søknad om rammetillatelse - Mulelia 22 - Fasadeendring og mindre bruksendring