FacadeChange Soeknad Enebolig

Fasadeendring og nytt VA-anlegg på Munarvollveien 1, Bodø

📍 Munarvollveien 1 , 8030 BODØ

Nøkkelinfo

Sakstype
Fasadeendring
Bygningstype
Enebolig
Bruksareal
120 m²
Boenheter
1
Kommune
Bodø
Fylke
Nordland - Nordlánnda
Gnr / Bnr
43 / 1018
Saksnummer
2026/16619
Fase
Søknad

Om byggesaken

Prosjektet omfatter fasadeendring på en eksisterende enebolig med totalt 120,5 m² fordelt på to etasjer, samt etablering av et nytt utvendig vann- og avløpsanlegg inkludert en oljeutskiller av typen OLEOPATOR P. Fasadeendringen inkluderer nye porter og endringer på flere fasader med glassmateriale. Oljeutskilleren er en PEHD-tank med integrert sandfang og koalesensfilter, dimensjonert for behandling av oljeholdig spillvann. Prosjektet inkluderer også grunnarbeider og sanitærinstallasjoner knyttet til VA-anlegget. Det er en trapp i boligen, og fasadene har flere glassvinduer og dører. Det foreligger en nabomerknad mot etablering av port på nordsiden, men tiltaket vurderes ikke å medføre vesentlige ulemper utover dagens situasjon.

Produkter og materialer

Fasade Port

🧱 Glass og metall

Antall: 3

Nye porter 45x49 meter på fasade, inkludert port på nordsiden

Nye porter i fasaden for adkomst og gjennomkjøring

VVS Oljeutskiller

🧱 PEHD plast

Antall: 1

OLEOPATOR P oljeutskiller med integrert sandfang, koalesensfilter, automatisk avstångningsventil og lukttett betäckning klasse D400

Nytt utvendig oljeutskilleranlegg for behandling av oljeholdig spillvann

Sanitærinstallasjon VA-installasjon

Prosjektering og utførelse av sanitærinstallasjoner knyttet til nytt utvendig VA-anlegg

Sanitærinstallasjoner for vann og avløp tilknyttet oljeutskiller

Grunnarbeid Grunnarbeider for VA-anlegg

Prosjektering og utførelse av grunnarbeider for vann- og avløpsanlegg inkludert oljeutskiller

Grunnarbeid for etablering av nytt VA-anlegg med oljeutskiller

Tømrer Fasadeendring

🧱 Glass, metall

Endring av fasade med glassvinduer og dører, inkludert nye porter

Arbeid med fasadeendring på eksisterende enebolig

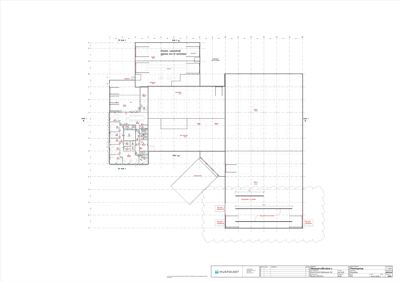
Plantegning

Enebolig 120.5 m²

Etasje 1 120.5 m²

Rom Areal Vinduer Dører
Stue 101 35.2 m² 3 2
Kjøkken 102 18.5 m² 1 1
Gang 103 12.0 m² 0 3
Bad 104 8.5 m² 0 1
Toalett 105 3.5 m² 0 1
Soverom 1 106 14.2 m² 1 1
Soverom 2 107 12.8 m² 1 1
Soverom 3 108 11.5 m² 1 1
Vaskerom 109 6.5 m² 0 1

Fasader

Hovedbygg

Sørøst
Materiale
Glass
Vinduer
12
Dører
1
Synlige etasjer
2
Nordøst
Materiale
Glass
Vinduer
9
Dører
0
Synlige etasjer
2
Nordvest
Materiale
Glass
Vinduer
0
Dører
0
Synlige etasjer
2
Sørvest
Materiale
Glass
Vinduer
0
Dører
0
Synlige etasjer
2

Hendelser

20.04.2026 Ett-trinns søknad - Munarvollveien 1
20.04.2026 Bekreftelse på mottatt søknad - Munarvollveien 1