FacadeChange Ferdigattest Enebolig

Fasadeendring og ny innvendig trapp i Olav Trygvasons gate 4

📍 Olav Trygvasons gate 4 , 3046 DRAMMEN

Nøkkelinfo

Sakstype
Fasadeendring
Bygningstype
Enebolig
Bruksareal
241 m²
Boenheter
1
Kommune
Drammen
Fylke
Buskerud
Gnr / Bnr
19 / 25
Saksnummer
24/44517
Fase
Ferdigattest

Om byggesaken

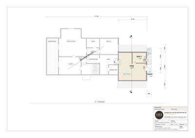
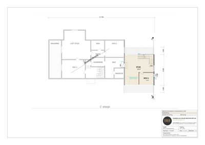
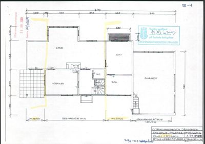
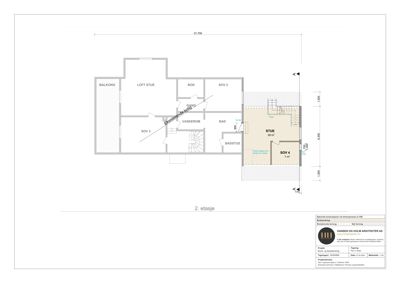
Prosjektet omfatter fasadeendring ved innsetting av ny dør og vindu i 2. etasje på sørøstfasaden, samt fjerning av eksisterende innvendig trapp fra garasje til hobbyrom og innsetting av ny innvendig trapp fra garasje til ny stue. Det er også installert ny dør fra stue til bad. Fasadeendringene er små og tilpasset eksisterende trehus med saltak. Trappen har et areal på ca. 4 m². Bygget er en to-etasjes enebolig med saltak og trefasade, med totalt ca. 241 m² BRA. Tiltaket inkluderer også bruksendring av hobbyrom til stue og soverom. Prosjektet er gjennomført med selvbyggeransvar og ansvarlig søker Hansen og Holm Arkitekter AS.

Produkter og materialer

Vinduer Fasadevindu

🧱 Tre, 3-lags energiglass (antatt)

Antall: 1

Nytt vindu i 2. etasje på sørøstfasade i soverom 4

Nytt fasadevindu i eksisterende bolig

Fasade Trepanel

🧱 Tre

Fasadeendring med trepanel tilpasset eksisterende fasade

Opprettholde og tilpasse eksisterende trefasade ved fasadeendring

Betong Bærende konstruksjoner

🧱 Betong/stål dimensjonert av RIB

Endring i bærende konstruksjon ved fjerning av eksisterende trapp og innsetting av ny trapp

Bærende konstruksjoner for trapp og fasadeendring

Dører Ytterdør og innvendig dør

🧱 Tre eller tilsvarende, i henhold til tegninger

Antall: 2

Ny ytterdør i 2. etasje på sørøstfasade, ny innvendig dør fra stue til bad

Innsetting av ny ytterdør og ny innvendig dør

Trapper Innvendig trapp

🧱 Tre og bærende konstruksjoner dimensjonert av RIB

Antall: 1

Ny innvendig trapp fra garasje til ny stue, ca. 4 m² BYA, i samsvar med TEK17

Fjerning av eksisterende trapp og innsetting av ny innvendig trapp mellom 1. og 2. etasje

Maling Utvendig og innvendig maling

Maling av fasade og innvendige flater etter endring

Overflatebehandling av fasade og innvendige flater

Grunnarbeid Fundamentering for trapp

Fundamentering for ny innvendig trapp og eventuell bæring

Grunnarbeid for ny trapp og bærende konstruksjoner

Elektro Elektrisk oppvarming

Elektriske panelovner og varmekabler som varmesystem

Oppgradering eller tilpasning av elektrisk varme i forbindelse med tiltaket

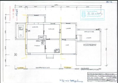
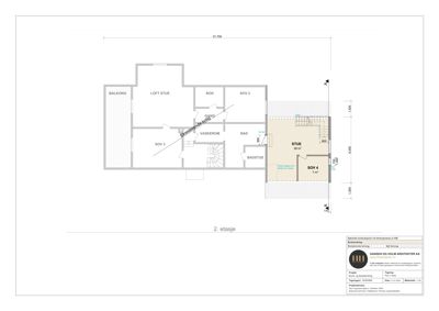
Plantegning

Enebolig 241.0 m²

Etasje 2 120.5 m²

Rom Areal Vinduer Dører
Balkong 201 0.0 m² 0 0
Loft stue 202 0.0 m² 1 1
Bod 203 0.0 m² 0 1
Sov 2 204 0.0 m² 1 1
Gang 205 0.0 m² 0 3
Vaskerom 206 0.0 m² 0 2
Sov 3 207 0.0 m² 1 1
Bad 208 0.0 m² 0 1
Badstue 209 0.0 m² 0 1
Stue 210 28.0 m² 1 1
Sov 4 211 7.0 m² 1 1
Trapp 212 4.0 m² 0 0

Etasje 1 120.5 m²

Rom Areal Vinduer Dører
Stue 101 35.2 m² 3 2
Sov 102 18.5 m² 1 2
Kjøkken 103 15.0 m² 1 2
Bad 104 8.5 m² 0 2
WC 105 3.5 m² 0 1
Gang 106 12.0 m² 0 3
Garasje 107 42.8 m² 1 1

Etasje 0 0.0 m²

Rom Areal Vinduer Dører
Fyrrom 001 0.0 m² 0 1
Kjeller 002 0.0 m² 0 1
Kjeller 003 0.0 m² 0 1
Lager 004 0.0 m² 0 1
Disp. 005 0.0 m² 0 1
Lager 006 0.0 m² 0 0
Dekke over 007 0.0 m² 0 0
GUP 008 0.0 m² 0 0

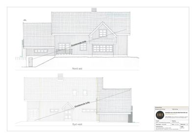
Fasader

Eksisterende bolig

Nord øst
Materiale
Tre
Taktype
Saltak
Takmat.
Tegl
Høyde
6.0 m
Vinduer
5
Dører
1
Balkonger
1
Synlige etasjer
2
Syd vest
Materiale
Tre
Taktype
Saltak
Takmat.
Tegl
Vinduer
4
Dører
1
Synlige etasjer
2

Enebolig

Nordvest
Materiale
Tre
Taktype
Saltak
Vinduer
4
Dører
1
Balkonger
1
Synlige etasjer
2
Sydøst
Materiale
Tre
Taktype
Saltak
Vinduer
3
Dører
1
Balkonger
1
Synlige etasjer
2
Nordøst
Materiale
Tre
Taktype
Saltak
Vinduer
5
Dører
1
Balkonger
1
Synlige etasjer
2
Sørvest
Materiale
Tre
Taktype
Saltak
Vinduer
5
Dører
1
Synlige etasjer
2
Ukjent
Materiale
Tre
Taktype
Saltak
Høyde
4.3 m
Mønehøyde
8.0 m
Vinduer
1
Dører
1
Balkonger
1
Synlige etasjer
2
Vest
Materiale
Tre
Taktype
Saltak
Høyde
5.6 m
Mønehøyde
8.4 m
Vinduer
4
Dører
1
Synlige etasjer
2
Øst
Materiale
Tre
Taktype
Saltak
Høyde
5.6 m
Mønehøyde
8.4 m
Vinduer
4
Dører
1
Balkonger
1
Synlige etasjer
2

Hendelser

09.04.2026 Olav Trygvasons gate 4 Søknad om ferdigattest 19/25
15.04.2025 Olav Trygvasons gate 4, igangsettingstillatelse for fasadeendring og innsetting av ny innvendig trapp
27.03.2025 Olav Trygvasons gate 4 Søknad om igangsettingstillatelse 19/25
13.03.2025 Olav Trygvasons gate 4, rammetillatelse til fasadeendring og innsetting av ny innvendig trapp
31.01.2025 Olav Trygvasons gate 4, tilleggsdokumentasjon til søknad
31.01.2025 Olav Trygvasons gate 4, tilbakemelding på spørsmål
23.01.2025 Olav Trygvasons gate 4, fristutsettelse for søknad
23.01.2025 Olav Trygvasons gate 4, Ber om fristutsettelse
21.01.2025 Olav Trygvasons gate 4, spørsmål vedr. omprosjektering
20.12.2024 Olav Trygvasons gate 4, vi vurderer å avslå søknaden din
05.12.2024 Olav Trygvasons gate 4 Søknad om rammetillatelse 19/25