FacadeChange UnderBehandling Enebolig

Fasadeendring med rømningsvei og takvinduer på Øvre Dynnersmauet 7, Bergen

📍 Øvre Dynnersmauet 7 , 5011 BERGEN

Nøkkelinfo

Sakstype
Fasadeendring
Bygningstype
Enebolig
Bruksareal
0 m²
Boenheter
1
Kommune
Bergen
Fylke
Vestland
Gnr / Bnr
165 / 950
Saksnummer
BYGG-2024/15309
Fase
Under behandling

Om byggesaken

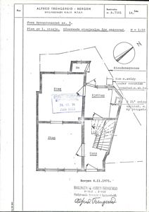
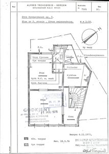
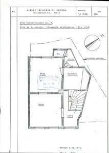
Tiltaket omfatter fasadeendring på en eldre enebolig i Øvre Dynnersmauet 7, Bergen, inkludert innsetting av to takvinduer med dimensjon 78x118 cm, utvidet nedover mot gesims, og etablering av en utvendig rømningsvei fra takvindu over tak til en utfellbar rømningsstige. Rømningsveien inkluderer en plattform og nedfellbart rekkverk, som skal males i farger som harmonerer med taksteinen for å minimere visuell påvirkning. Bygningen er del av et verneverdig kulturmiljø, og tiltaket er tilpasset for å ivareta kulturhistoriske verdier. Det foreligger nabosamtykke for plassering nær nabogrense, og tiltaket er prosjektert og utført med ansvarlige foretak med sentral godkjenning. Tiltaket har også en brannteknisk oppgradering for å sikre loftsrommets rømningsmuligheter.

Produkter og materialer

Vinduer Takvinduer

Antall: 2

78 x 118 cm, utvidet nedover mot gesims, tilsvarende godkjente tiltak fra 20.11.2024

To takvinduer for bedre lysforhold i loftsetasje

Fasade Rømningsvei med plattform og rekkverk

🧱 Metall, malt i farge som takstein

Antall: 1

Utvendig rømningsvei fra takvindu over tak til utfellbar rømningsstige, plattform med nedfellbart rekkverk, fargebehandlet for å harmonere med takstein

Rømningsvei for loftsrommets brannsikkerhet

Brannvern Brannteknisk prosjektering

Prosjektering av rømningsvei og brannsikkerhet for loftsrom

Brannteknisk prosjektering for oppgradering av rømningsforhold

Fasade Utfellbar rømningsstige

🧱 Metall, delvis hvitmalt

Antall: 1

Utfellbar stige montert på fasade, delvis hvitmalt for minimal visuell påvirkning

Rømningsstige for sikker utgang fra loft

Tømrer Montering og tilpasning av takvinduer og rømningsvei

Montering av takvinduer og utvendig rømningsvei med plattform og stige

Utførelse av fasadeendring og brannteknisk oppgradering

Maling Fasadebehandling

🧱 Maling tilpasset takstein farge

Overflatebehandling av plattform og rekkverk for å minimere visuell kontrast

Maling av rømningsplattform og rekkverk

Hendelser

30.03.2026 Fakturagrunnlag
30.03.2026 Ubw ordre 20693065
19.02.2026 Tillatelse til endring 165/950 Øvre Dynnersmauet 7
17.02.2026 Tilleggsopplysninger
17.02.2026 Mangler meddelt - 165/950/0/0 Øvre Dynnersmauet 7, fasadeendring, etablere rømningsvei fra takvindu over tak fram til utfellbar rømningsstige
12.02.2026 Øvre Dynnersmauet 7 Søknad om endring av gitt tillatelse eller godkjenning 165/950
26.11.2024 Fakturagrunnlag 2024
26.11.2024 Ubw ordre 20655845
20.11.2024 Øvre Dynnersmauet 7 Supplering av søknad 165/950
20.11.2024 Status om innsending- 165/950/0/0 Øvre Dynnersmauet 7, fasadeendring, etablere rømningsvei fra takvindu over tak fram til utfellbar rømningsstige
20.11.2024 Vedrørende mangler meddelt og mulighet til å søke dispensasjon - 165/950/0/0 Øvre Dynnersmauet 7, fasadeendring, etablere rømningsvei fra takvindu over tak fram til utfellbar rømningsstige
20.11.2024 Ber om utsatt frist innsending mangler - 165/950/0/0 Øvre Dynnersmauet 7, fasadeendring, etablere rømningsvei fra takvindu over tak fram til utfellbar rømningsstige
20.11.2024 Mangler meddelt - purring - 165/950/0/0 Øvre Dynnersmauet 7, fasadeendring, etablere rømningsvei fra takvindu over tak fram til utfellbar rømningsstige
20.11.2024 Øvre Dynnersmauet 7 Tillatelse til deler av tiltaket, avslag på deler av tiltaket
13.11.2024 Mangler meddelt - 165/950/0/0 Øvre Dynnersmauet 7, fasadeendring, etablere rømningsvei fra takvindu over tak fram til utfellbar rømningsstige
12.11.2024 2024/119443 Byantikvarens tilbakemelding 165/950/0/0 Øvre Dynnersmauet 7, søknad om fasadeendring
12.11.2024 Byantikvarens uttale - 165/950/0/0 Øvre Dynnersmauet 7, fasadeendring ved å etablere rømningsvei fra takvindu over tak fram til ufellbar rømningsstige
30.10.2024 Øvre Dynnersmauet 7 Supplering165/950
30.10.2024 Til informasjon- 165/950/0/0 Øvre Dynnersmauet 7, fasadeendring ved å etablere rømningsvei fra takvindu over tak fram til ufellbar rømningsstige
10.10.2024 Intern høring
12.09.2024 Øvre Dynnersmauet 7 Supplering av søknad 165/950
12.09.2024 Tilleggsopplysninger - 165/950/0/0 Øvre Dynnersmauet 7, fasadeendring ved å etablere rømningsvei fra takvindu over tak fram til ufellbar rømningsstige
30.08.2024 Tilleggsopplysninger - 165/950/0/0 Øvre Dynnersmauet 7, fasadeendring ved å etablere rømningsvei fra takvindu over tak fram til ufellbar rømningsstige
09.08.2024 Mangler meddelt - 165/950/0/0 Øvre Dynnersmauet 7, fasadeendring ved å etablere rømningsvei fra takvindu over tak fram til ufellbar rømningsstige
07.08.2024 Bekreftelse på mottatt søknad
05.08.2024 Øvre Dynnersmauet 7 Søknad om rammetillatelse 165/950