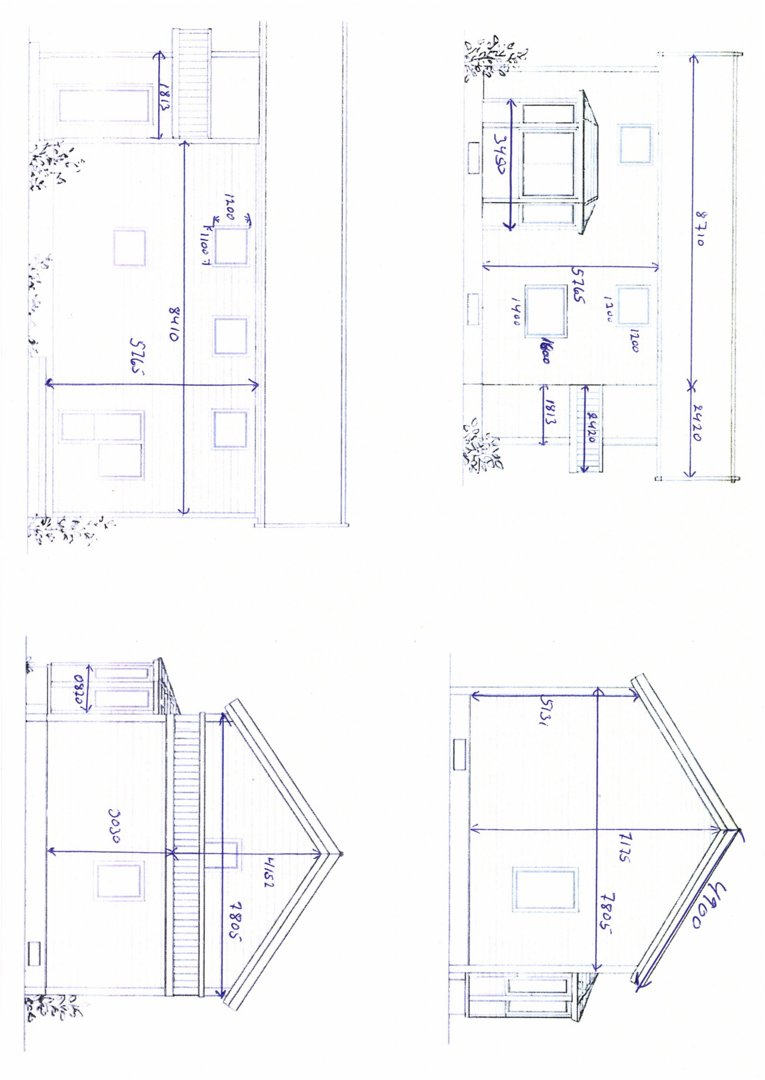
Facade
Fasadetegning med mål for en bygning sett fra flere vinkler
1 / 1
FacadeChange
Soeknad
Enebolig
Renovering, fasadeendring og takoverbygg på enebolig, Gnr 42 Bnr 31
📍 Runden 7 , 8250 ROGNAN
Nøkkelinfo
- Sakstype
- Fasadeendring
- Bygningstype
- Enebolig
- Boenheter
- 1
- Kommune
- Saltdal
- Fylke
- Nordland - Nordlánnda
- Gnr / Bnr
- 42 / 31
- Saksnummer
- 2026/11049
- Fase
- Søknad
Om byggesaken
Eneboligen på eiendommen Gnr 42 Bnr 31 gjennomgår en omfattende renovering som inkluderer fasadeendringer og oppføring av et takoverbygg. Bygget har to etasjer med saltak og trekledning på alle fasader. Fasadene har til sammen 11 vinduer, 4 dører og 2 balkonger. Gesimshøyden er 3,03 meter og mønehøyden 7,805 meter. Endringene vil påvirke byggets ytre uttrykk og funksjon, med nye konstruksjoner på taket og oppgraderinger av fasadematerialer.
Produkter og materialer
Tømrer
Bygningskonstruksjoner
🧱 Tre
Tømrerarbeid for fasadeendring og takoverbygg
Grunnarbeid
Fundamentering for takoverbygg
Grunnarbeid for oppføring av takoverbygg
Tak
Saltak og takoverbygg
Saltak med nytt takoverbygg
Oppføring av takoverbygg og vedlikehold/renovering av saltak
Fasade
Trekledning
🧱 Tre
Trekledning på alle fasader
Materiale for fasadeendring og renovering av yttervegger
Dører
Ytterdører
Antall: 4
Dører i fasader nord (1), sør (1), vest (1) og øst (1)
Vinduer
Fasadevindu
Antall: 11
Vinduer i fasader nord (5), sør (4), vest (1) og øst (1)
Balkong
Balkong med rekkverk
Antall: 2
Balkonger på fasade nord og vest
Fasader
Enebolig
Nord
- Materiale
- Tre
- Taktype
- Saltak
- Høyde
- 3.0 m
- Mønehøyde
- 7.8 m
- Vinduer
- 5
- Dører
- 1
- Balkonger
- 1
- Synlige etasjer
- 2
Sør
- Materiale
- Tre
- Taktype
- Saltak
- Høyde
- 3.0 m
- Mønehøyde
- 7.8 m
- Vinduer
- 4
- Dører
- 1
- Synlige etasjer
- 2
Vest
- Materiale
- Tre
- Taktype
- Saltak
- Høyde
- 3.0 m
- Mønehøyde
- 7.8 m
- Vinduer
- 1
- Dører
- 1
- Balkonger
- 1
- Synlige etasjer
- 2
Øst
- Materiale
- Tre
- Taktype
- Saltak
- Høyde
- 3.0 m
- Mønehøyde
- 7.8 m
- Vinduer
- 1
- Dører
- 1
- Synlige etasjer
- 2
Hendelser
08.04.2026
Gnr. 42/31. Søknad om tillatelse til tiltak uten ansvarsrett. Renovering/fasadeendring/takoverbygg